Prodej rodinného domu, Česká Kamenice, 152 m2 (ID: 2444487)

Česká Kamenice

8 900 000 Kč HYPOTÉKA od 39 778 Kč /za měsíc

(včetně provize RK)

Doporučené firmy v České Kamenici

Okna a dveře

Rekonstrukce

Zámečnické práce

Informace k domu

Prodej novostavby RD 5+kk, 120 m² ve výstavbě - Česká Kamenice

Prodej dvou moderních rodinných domů ve výstavbě – Česká Kamenice

Nabízíme ke koupi dvě vznikající novostavby samostatně stojících rodinných domů v klidné části obce Česká Kamenice. Domy se nacházejí v atraktivní lokalitě na okraji obce, v sousedství přírody a zároveň s dobrou dostupností do centra města. Výstavba právě probíhá, s plánovaným dokončením a kolaudací k datu 30. 4. 2026.

Základní informace:
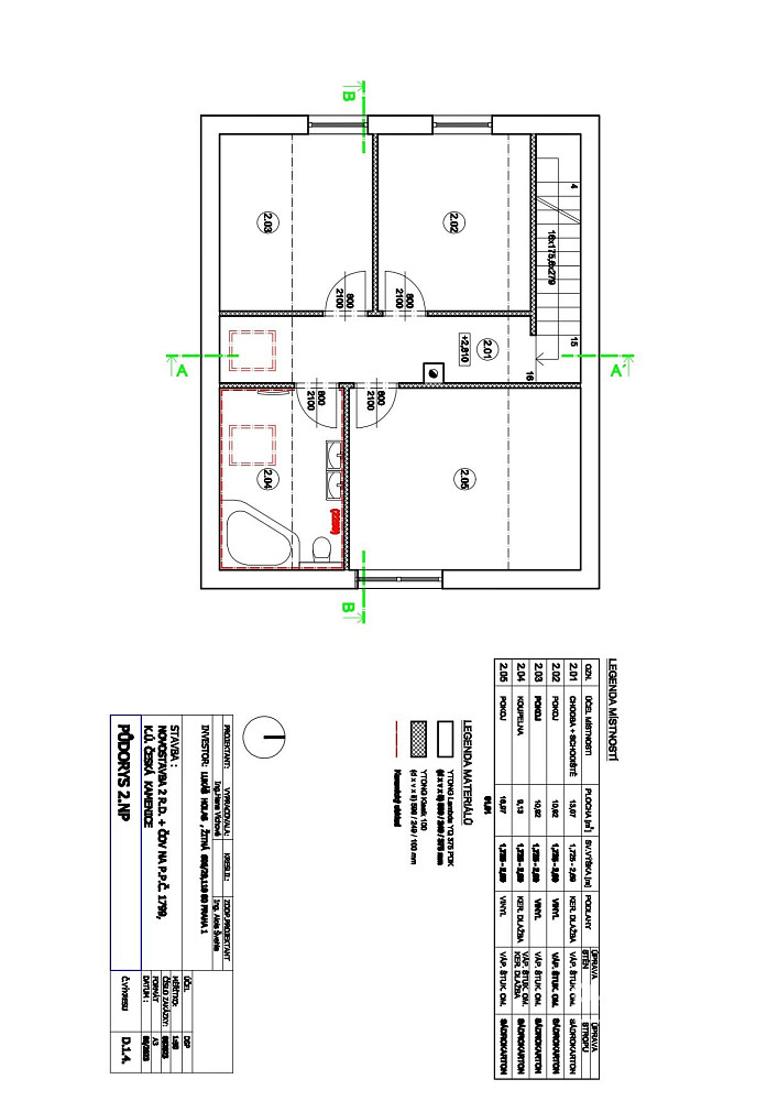
Dispozice: 5+kk

Zastavěná plocha: 76 m²

Užitná plocha: cca 120 m²

Pozemek: cca 850 m² každý

Vytápění: tepelné čerpadlo, podlahové topení

Energetická náročnost budovy: třída B – velmi úsporná (dle PENB)

Střecha: sedlová, betonová taška

Zdivo: tvárnice Porfix

Okna: plastová s izolačním trojsklem

Podlahové krytiny: vinylová krytina

Domy budou dokončeny v kvalitním standardu s důrazem na nízké provozní náklady a moderní technologie. Každý dům nabízí prostorný obývací pokoj s kuchyňským koutem, tři ložnice, pracovnu, koupelnu, technickou místnost a samostatné WC. Před domem bude zpevněná plocha pro parkování dvou vozidel.

Výhody:
Krásné a klidné prostředí vhodné pro rodiny s dětmi

Moderní nízkoenergetické řešení domu

Možnost ovlivnit vnitřní úpravy v průběhu výstavby

Výborná občanská vybavenost v blízkém okolí

Tato nabídka je ideální volbou pro ty, kteří hledají nové bydlení v krásném prostředí s možností individuálních úprav dle svých představ.

K náhledu pro Vás máme připravenou kompletní projektovou dokumentaci.

Podmínky zvýhodněného financování při koupi ve fázi výstavby a další informace na vyžádání.

Parametry domu

Cena
8 900 000 Kč Spočítat hypotéku
Poznámka k ceně
včetně provize RK
Aktualizováno
18. 10. 2025
Adresa
Česká Kamenice
ID
100287
Stavba
Cihlová
Stav objektu
Ve výstavbě
Vybaveno
Ne
Druh objektu
Samostatný
Lokalita objektu
Klidná část obce
Užitná plocha
152 m2
Plocha pozemku
890 m2
Třída energetické náročnosti
B - Velmi úsporná
Ukazatel energetické náročnosti
68 kWh/m2 za rok

Kontaktovat makléře

Máte zájem o tento dům?

Tímto, v souladu s nařízením Evropského parlamentu a Rady (EU) 2016/679, v platném znění, prohlašuji, že mi je alespoň 16 let a uděluji tak svůj souhlas se zpracováním zadaných údajů (jméno, telefon, e-mail, ip adresa) společnosti B3 Technology, s.r.o., IČ: 07330600, se sídlem Novostavby 126/23, 435 11 Lom (správce dat), za účelem předání dotazu z tohoto formuláře Vámi vybranému inzerentovi a zpětného kontaktování mé osoby. Osobní údaje bude správce zpracovávat manuálně i automaticky přímo prostřednictvím svých zaměstnanců. Informace předané tímto formulářem budou uloženy v databázi správce maximálně po dobu 10 let. Odvolání souhlasu s uložením a zpracováním poskytnutých dat lze e-mailem na info@bydlisnami.cz. V případě podezření na neoprávněné použití Vámi poskytnutých údajů máte právo předat podnět k šetření Úřadu pro ochranu osobních údajů. Více informací
Chystáte se prodat nemovitost?
Pomůžeme Vám!

Inzerát si prohlédlo 1 lidí

Prodejce

Jan Richter

Jan Richter

Hlídací pes

Chcete dostávat emailem podobné nabídky prodeje rodinných domů v České Kamenici?

Podobné nemovitosti