Pronájem bytu 2+1, Uherské Hradiště - Jarošov, 57 m2

Uherské Hradiště, Jarošov

12 400 Kč /za měsíc Získejte výhodnou HYPOTÉKU

(+ zálohy na služby a energie 2.104 Kč, elektřinu 800 Kč a plyn 1.100 Kč si přepisuje nájemce na sebe, cena k jednání)

Doporučené firmy v Uherském Hradišti

Informace k bytu

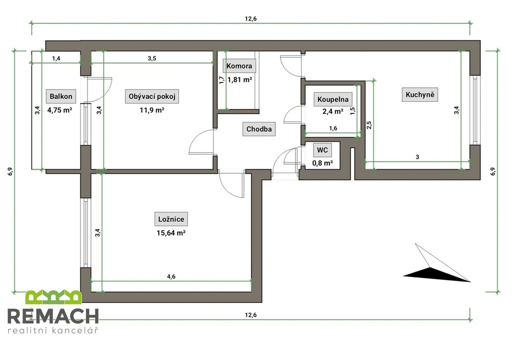
Zrekonstruovaný byt o dispozici 2+1 s rozlohou 56,8 m2, s balkonem o rozloze 5 m2 a velmi prostorným sklepem o rozloze 16 m2, umístění v lokalitě se spoustou zeleně, třemi dětskými hřišti a venkovním sportovištěm, umístěným ihned u domu.
Velkou výhodou je veškerá občanská vybavenost, kdy za jedním rohem máte mateřskou školku a za druhým rohem obchod.
Velmi prakticky byla provedena rekonstrukce bytu, kdy byla rozšířena kuchyně s jídelním koutem a jsou zbudovány samostatné vstupy do koupelny a na toaletu přímo z chodby.
Dva neprůchozí pokoje, kdy z jednoho máte vstup na zasklený balkon, s orientací na jižní stranu.
V suterénu na vás čeká opravdu prostorný sklep, kočárkárna, kolárna a sušárna. K nastěhování od 1.10.2025.

Parametry bytu

Cena
12 400 Kč /za měsíc
Poznámka k ceně
+ zálohy na služby a energie 2.104 Kč, elektřinu 800 Kč a plyn 1.100 Kč si přepisuje nájemce na sebe, cena k jednání
Aktualizováno
23. 10. 2025
Adresa
Uherské Hradiště, Jarošov
ID
03364
Stavba
Panelová
Stav objektu
Velmi dobrý
Patro
4. z 4
Vybaveno
Částečně
Lokalita objektu
Klidná část obce
Vlastnictví
Osobní
Užitná plocha
57 m2
Třída energetické náročnosti
G - Mimořádně nehospodárná
Elektřina
230V
Plyn
Plynovod
Odpad
Veřejná kanalizace
Komunikace
Betonová, Asfaltová
Telekomunikace
Internet, Kabelové rozvody
Doprava
Vlak, Silnice, MHD, Autobus
Voda
Vodovod
Lodžie
Převod do OV

Kontaktovat makléře

Realitní kancelář

Logo REMACH s.r.o.

REMACH s.r.o.

Palackého náměstí 175, Uherské Hradiště

Chystáte se prodat nemovitost?
Pomůžeme Vám!

Máte zájem o tento byt?

Tímto, v souladu s nařízením Evropského parlamentu a Rady (EU) 2016/679, v platném znění, prohlašuji, že mi je alespoň 16 let a uděluji tak svůj souhlas se zpracováním zadaných údajů (jméno, telefon, e-mail, ip adresa) společnosti B3 Technology, s.r.o., IČ: 07330600, se sídlem Novostavby 126/23, 435 11 Lom (správce dat), za účelem předání dotazu z tohoto formuláře Vámi vybranému inzerentovi a zpětného kontaktování mé osoby. Osobní údaje bude správce zpracovávat manuálně i automaticky přímo prostřednictvím svých zaměstnanců. Informace předané tímto formulářem budou uloženy v databázi správce maximálně po dobu 10 let. Odvolání souhlasu s uložením a zpracováním poskytnutých dat lze e-mailem na info@bydlisnami.cz. V případě podezření na neoprávněné použití Vámi poskytnutých údajů máte právo předat podnět k šetření Úřadu pro ochranu osobních údajů. Více informací
Chystáte se prodat nemovitost?
Pomůžeme Vám!

Inzerát si prohlédlo 5 lidí

Prodejce

Ing. Michal Macháček

Ing. Michal Macháček

Hlídací pes

Chcete dostávat emailem podobné nabídky pronájmu bytů 2+1 v Uherském Hradišti?

Podobné nemovitosti