Pronájem bytu 2+1, Ostrava, Petra Křičky, 58 m2 (ID: 2446664)

Petra Křičky, Moravská Ostrava

11 000 Kč /za měsíc Získejte výhodnou HYPOTÉKU

(Cena nájmu BEZ služeb, kauce a provize)

Doporučené firmy v Ostravě

Informace k bytu

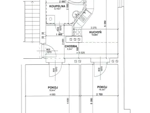
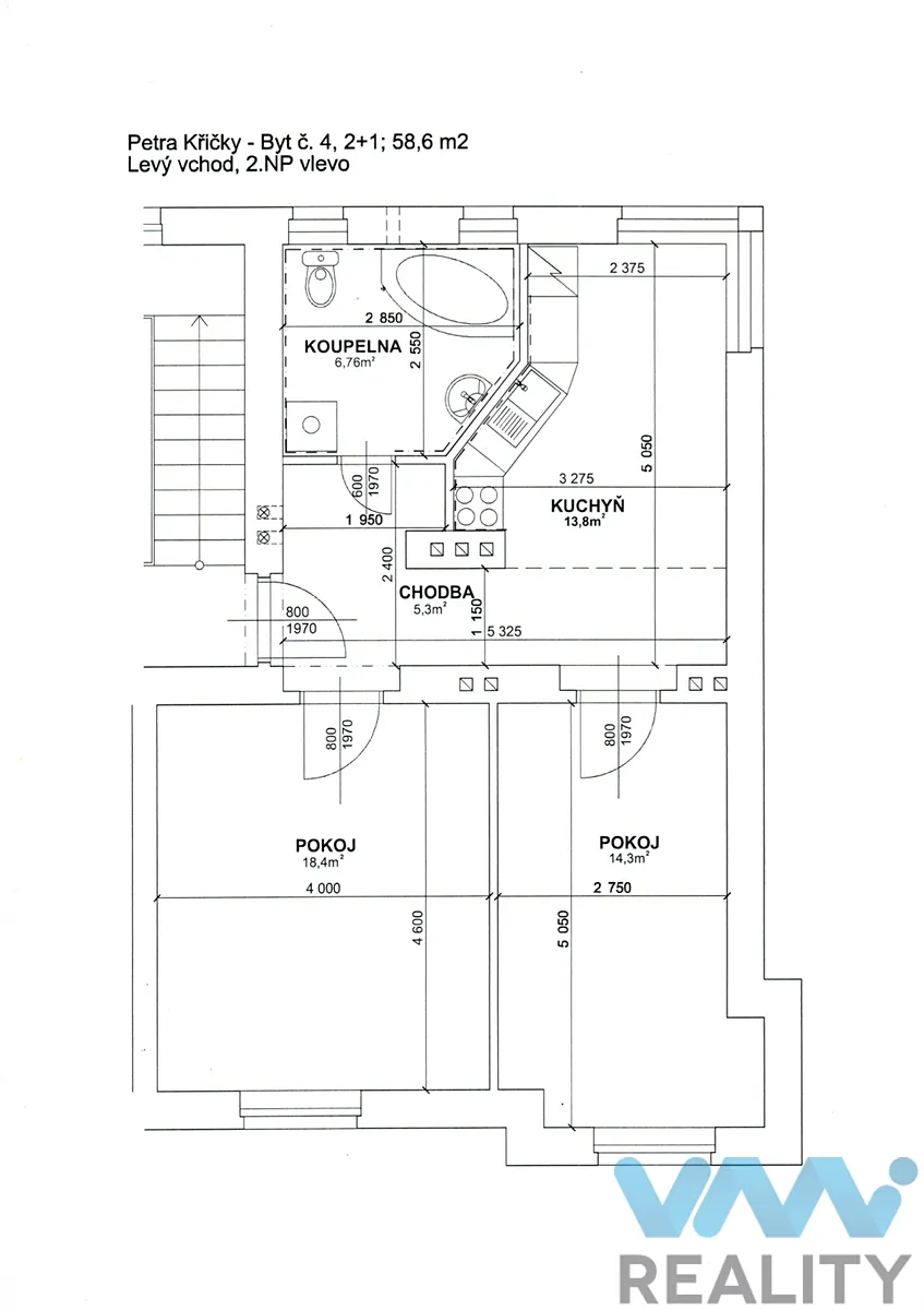
Nabízíme k pronájmu byt 2+1 o celkové ploše 58 m2 v I. poschodí (II. NP) jednopatrového domu na ul. Petra Křičky v Moravské Ostravě, ve vchodě jsou vždy 4 byty. Byt i dům je po celkové rekonstrukci, má prostornou kuchyň, součástí kuchyňské linky je kombinovaný sporák s digestoří, pod linkou je prostor pro volně stojící myčku. Byt má dva samostatné pokoje a koupelnu s toaletou. Mimo kuchyňskou linku je byt nezařízený. Podlahy v bytě jsou v kombinaci dlažba a plovoucí podlahy, dále jsou v celém bytě světla a žaluzie. Celkově je byt velmi prostorný a světlý, má vlastní plynový kotel. Byt má k dispozici také sklepní kóji.

Dům je v osobním vlastnictví firmy, možnost dlouhodobého pronájmu a trvalého bydliště.

Cena pronájmu je Kč 11.000,- bez služeb, které činí cca 5.000,- (elektřina pro byt a společné prostory, plyn - vytápění+ohřev vody, voda, úklid spol. prostor, internet, televize), je požadována vratná kauce ve výši Kč 25.000,- a provize ve výši Kč 11.000,-. Výše služeb závisí na aktuální ceně energií - plynu a elektřiny, kdy tyto dvě energie přepisujeme na nájemce.

Je možné parkování na vlastním pozemku u domu za cenu Kč 800,- měsíčně.

K dispozici od 1. 11. 2025.

Parametry bytu

Cena
11 000 Kč /za měsíc
Poznámka k ceně
Cena nájmu BEZ služeb, kauce a provize
Aktualizováno
23. 10. 2025
Adresa
Petra Křičky, Moravská Ostrava
ID
0361
Stavba
Cihlová
Stav objektu
Velmi dobrý
Patro
2. z 2
Vybaveno
Ne
Lokalita objektu
Centrum obce
Vlastnictví
Osobní
Užitná plocha
58 m2
Podlahová plocha
58 m2
Třída energetické náročnosti
D - Méně úsporná
Elektřina
230V
Plyn
Plynovod
Odpad
Veřejná kanalizace
Komunikace
Asfaltová
Doprava
Vlak, Dálnice, Silnice, MHD, Autobus
Voda
Vodovod
Topné těleso
Radiátory
Zdroj topení
Plynový kotel
Zdroj teplé vody
Plynový kotel
Parkování

Kontaktovat makléře

Máte zájem o tento byt?

Tímto, v souladu s nařízením Evropského parlamentu a Rady (EU) 2016/679, v platném znění, prohlašuji, že mi je alespoň 16 let a uděluji tak svůj souhlas se zpracováním zadaných údajů (jméno, telefon, e-mail, ip adresa) společnosti B3 Technology, s.r.o., IČ: 07330600, se sídlem Novostavby 126/23, 435 11 Lom (správce dat), za účelem předání dotazu z tohoto formuláře Vámi vybranému inzerentovi a zpětného kontaktování mé osoby. Osobní údaje bude správce zpracovávat manuálně i automaticky přímo prostřednictvím svých zaměstnanců. Informace předané tímto formulářem budou uloženy v databázi správce maximálně po dobu 10 let. Odvolání souhlasu s uložením a zpracováním poskytnutých dat lze e-mailem na info@bydlisnami.cz. V případě podezření na neoprávněné použití Vámi poskytnutých údajů máte právo předat podnět k šetření Úřadu pro ochranu osobních údajů. Více informací
Chystáte se prodat nemovitost?
Pomůžeme Vám!

Inzerát si prohlédlo 7 lidí

Prodejce

Lenka Bernatíková

Lenka Bernatíková

Hlídací pes

Chcete dostávat emailem podobné nabídky pronájmu bytů 2+1 v Ostravě?

Podobné nemovitosti