Prodej vily, Praha - Březiněves, 155 m2

Praha, Březiněves

21 880 000 Kč /za nemovitost HYPOTÉKA od 97 790 Kč /za měsíc
Doporučené firmy v Praze 8

Stěhovací služby

Výkup a prodej starého nábytku

Informace k domu

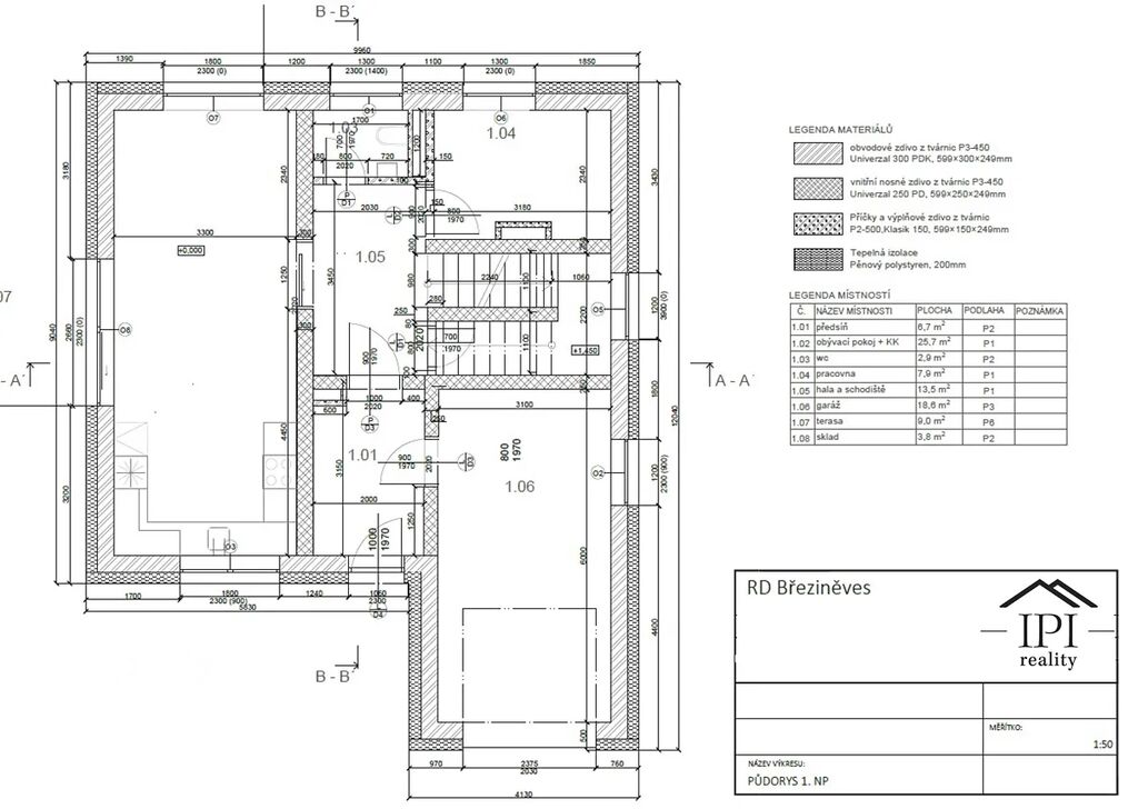
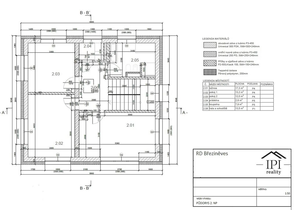
Dovoluji si Vám nabídnout k prodeji novostavbu domu - vily v klidné části Prahy 8 - Březiněves. Tento nový, patrový dům je ideální volbou pro ty, kteří hledají komfortní bydlení s velkým důrazem na soukromí a kvalitu. Vila nabízí nejméně pět pokojů, tři koupelny (přiložený plánek byl následně stavebně upraven) i prádelnu, což poskytuje dostatek prostoru pro rodinné zázemí i pro hosty. Fotografie budou doplněny.

Vila se nachází na samostatném pozemku o celkové ploše 620 m², z čehož zahrada zaujímá 513 m². Tato rozlehlá zahrada nabízí mnoho možností pro rekreaci i relaxaci. Dům je vybaven garáží pro jedno vozidlo a dvěma dalšími parkovacími místy, což zajišťuje pohodlné parkování pro celou rodinu. Díky své poloze v klidné části obce si můžete užívat klidu, přesto však zůstáváte v dostupné vzdálenosti od centra města díky dobrému dopravnímu spojení, včetně dostupnosti dálnice, silnice, MHD - autobusové dopravy.

Energetická třída domu C zajišťuje vyvážené náklady na energie a pohodlné bydlení s ohledem na životní prostředí. Na základě toho lze očekávat vyrovnané náklady na provoz této nemovitosti.

Prohlídky jsou možné po předchozí domluvě. Pro více informací o této nemovitosti nebo sjednání prohlídky mě prosím kontaktujte nebo vyplňte níže uvedený formulář.

Parametry domu

Cena
21 880 000 Kč /za nemovitost Spočítat hypotéku
Aktualizováno
23. 10. 2025
Adresa
Praha, Březiněves
Stavba
Cihlová
Stav objektu
Novostavba
Druh objektu
Samostatný
Lokalita objektu
Klidná část obce
Užitná plocha
155 m2
Zastavěná plocha
107 m2
Plocha pozemku
620 m2
Plocha zahrady
513 m2
Třída energetické náročnosti
C - Úsporná
Elektřina
230V
Odpad
Veřejná kanalizace
Komunikace
Asfaltová
Telekomunikace
Internet, Kabelové rozvody
Doprava
Dálnice, Silnice, MHD, Autobus
Voda
Vodovod
Topné těleso
Podlahové vytápění
Zdroj topení
Elektrokotel
Zdroj teplé vody
Bojler - elektro
Garáž
Parkování

Kontaktovat makléře

Máte zájem o tento dům?

Tímto, v souladu s nařízením Evropského parlamentu a Rady (EU) 2016/679, v platném znění, prohlašuji, že mi je alespoň 16 let a uděluji tak svůj souhlas se zpracováním zadaných údajů (jméno, telefon, e-mail, ip adresa) společnosti B3 Technology, s.r.o., IČ: 07330600, se sídlem Novostavby 126/23, 435 11 Lom (správce dat), za účelem předání dotazu z tohoto formuláře Vámi vybranému inzerentovi a zpětného kontaktování mé osoby. Osobní údaje bude správce zpracovávat manuálně i automaticky přímo prostřednictvím svých zaměstnanců. Informace předané tímto formulářem budou uloženy v databázi správce maximálně po dobu 10 let. Odvolání souhlasu s uložením a zpracováním poskytnutých dat lze e-mailem na info@bydlisnami.cz. V případě podezření na neoprávněné použití Vámi poskytnutých údajů máte právo předat podnět k šetření Úřadu pro ochranu osobních údajů. Více informací
Chystáte se prodat nemovitost?
Pomůžeme Vám!

Inzerát si prohlédlo 1 lidí

Prodejce

Ivana Peterková Imik

Ivana Peterková Imik

Hlídací pes

Chcete dostávat emailem podobné nabídky prodeje vil v Praze 8?

Podobné nemovitosti