Pronájem kanceláře, Bílovice nad Svitavou, Žižkova, 198 m2

Žižkova, Bílovice nad Svitavou

23 500 Kč /za měsíc Získejte výhodnou HYPOTÉKU

(+ elektřina, plyn a služby)

Doporučené firmy v Bílovicích nad Svitavou

Informace k nemovitosti

Dobrý den,

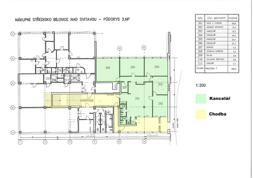
rádi bychom Vám představili kancelář k pronájmu v centru Bílovic nad Svitavou. Tento cihlový objekt se nachází ve velmi dobrém stavu a nabízí užitnou plochu o velikosti 198 m², což z něj činí ideální volbu pro podnikatele hledající prostorné a reprezentativní místo pro své podnikání.

Kancelář je situována ve třetím patře domu, který je součástí zástavby, zdravotnického zařízení, obchodů a volnočasových kroužků. Výhodou této nabídky je parkovací místo, které je možné si pronajmout navíc.

Umístění kanceláře v srdci Bílovic nad Svitavou zajišťuje vynikající dostupnost dopravních spojení, mezi které patří vlak, silnice a autobus. Základní cena nájmu 23500 Kč. Nezahrnuje elektřinu, plyn a služby. Kancelář bude k dispozici od 1. listopadu 2025.

Prohlídky jsou možné po předchozí domluvě. Pro více informací o této nemovitosti nebo sjednání prohlídky nás prosím kontaktujte nebo vyplňte níže uvedený formulář, rádi Vám pomůžeme.

Parametry nemovitosti

Cena
23 500 Kč /za měsíc
Poznámka k ceně
+ elektřina, plyn a služby
Aktualizováno
24. 10. 2025
Adresa
Žižkova, Bílovice nad Svitavou
Stavba
Cihlová
Stav objektu
Velmi dobrý
Patro
3.
Vybaveno
Ne
Lokalita objektu
Centrum obce
Užitná plocha
198 m2
Doprava
Vlak, Silnice, Autobus
Parkování

Kontaktovat makléře

Máte zájem o tuto nemovistost?

Tímto, v souladu s nařízením Evropského parlamentu a Rady (EU) 2016/679, v platném znění, prohlašuji, že mi je alespoň 16 let a uděluji tak svůj souhlas se zpracováním zadaných údajů (jméno, telefon, e-mail, ip adresa) společnosti B3 Technology, s.r.o., IČ: 07330600, se sídlem Novostavby 126/23, 435 11 Lom (správce dat), za účelem předání dotazu z tohoto formuláře Vámi vybranému inzerentovi a zpětného kontaktování mé osoby. Osobní údaje bude správce zpracovávat manuálně i automaticky přímo prostřednictvím svých zaměstnanců. Informace předané tímto formulářem budou uloženy v databázi správce maximálně po dobu 10 let. Odvolání souhlasu s uložením a zpracováním poskytnutých dat lze e-mailem na info@bydlisnami.cz. V případě podezření na neoprávněné použití Vámi poskytnutých údajů máte právo předat podnět k šetření Úřadu pro ochranu osobních údajů. Více informací
Chystáte se prodat nemovitost?
Pomůžeme Vám!

Inzerát si prohlédlo 11 lidí

Prodejce

Jakub Janok

Jakub Janok

Hlídací pes

Chcete dostávat emailem podobné nabídky pronájmu kanceláří v Bílovicích nad Svitavou?

Podobné nemovitosti