Pronájem bytu 1+kk, Praha - Nusle, Petra Rezka, 23 m2

Petra Rezka, Nusle - Praha 4

14 900 Kč /za měsíc Získejte výhodnou HYPOTÉKU

(vratná jistota, náklady na bydlení 3.000,-Kč, poplatek za podnájem)

Doporučené firmy v Praze 4

Stěhovací služby

Výkup a prodej starého nábytku

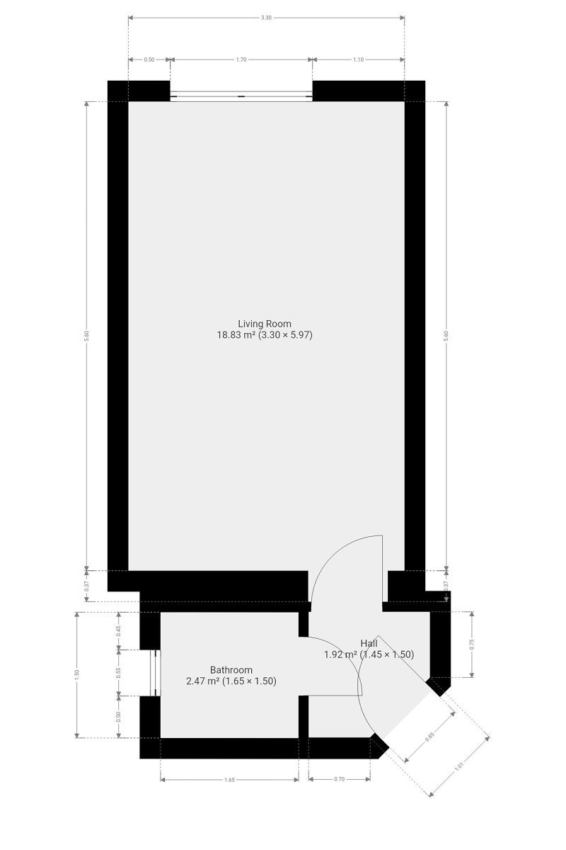
Informace k bytu

K dlouhodobému podnájmu nabízíme světlý a útulný byt (ateliér) 1+kk v oblíbené a klidné lokalitě Praha 4 – Nusle. Byt o velikosti 23 m² se nachází ve 4. patře udržovaného bytového domu a je ideální pro jednotlivce či pár, kteří hledají pohodlné a stylové bydlení s výbornou dostupností do centra.

Byt je plně vybavený, takže se můžete ihned nastěhovat bez nutnosti dalších investic do zařízení. Moderní kuchyň je vybavena lednicí, elektrickou a mikrovlnnou troubou, myčkou, digestoří, varnou deskou a jídelním koutem. Prosvětlená obytná část nabízí pohodlný gauč, konferenční stolek a dostatek úložného prostoru. Stylová koupelna je vybavena sprchovým koutem, umyvadlem, pračkou a WC.

V okolí najdete kompletní občanskou vybavenost – supermarket Albert a Tesco, útulné kavárny, restaurace, poštu, zdravotní péči i možnosti sportovního vyžití. Pro odpočinek a procházky je ideální Park Jezerka, který se nachází jen pár minut chůze od domu.
Skvělou dopravní dostupnost zajišťují nedaleké tramvajové a autobusové zastávky s rychlým spojením do centra města i na metro.

Byt je k nastěhování ihned.

Energetická třída: G (průkaz nedodán)

Parametry bytu

Cena
14 900 Kč /za měsíc
Poznámka k ceně
vratná jistota, náklady na bydlení 3.000,-Kč, poplatek za podnájem
Aktualizováno
24. 10. 2025
Adresa
Petra Rezka, Nusle - Praha 4
ID
N6878
Stavba
Cihlová
Stav objektu
Po rekonstrukci
Patro
4. z 4
Vybaveno
Ano
Typ objektu
Patrový
Lokalita objektu
Klidná část obce
Vlastnictví
Osobní
Užitná plocha
23 m2
Podlahová plocha
23 m2
Třída energetické náročnosti
G - Mimořádně nehospodárná
Elektřina
230V
Topení
Lokální elektrické
Doprava
Silnice, MHD, Autobus
Výtah
Bezbarierový přístup

Kontaktovat makléře

Máte zájem o tento byt?

Tímto, v souladu s nařízením Evropského parlamentu a Rady (EU) 2016/679, v platném znění, prohlašuji, že mi je alespoň 16 let a uděluji tak svůj souhlas se zpracováním zadaných údajů (jméno, telefon, e-mail, ip adresa) společnosti B3 Technology, s.r.o., IČ: 07330600, se sídlem Novostavby 126/23, 435 11 Lom (správce dat), za účelem předání dotazu z tohoto formuláře Vámi vybranému inzerentovi a zpětného kontaktování mé osoby. Osobní údaje bude správce zpracovávat manuálně i automaticky přímo prostřednictvím svých zaměstnanců. Informace předané tímto formulářem budou uloženy v databázi správce maximálně po dobu 10 let. Odvolání souhlasu s uložením a zpracováním poskytnutých dat lze e-mailem na info@bydlisnami.cz. V případě podezření na neoprávněné použití Vámi poskytnutých údajů máte právo předat podnět k šetření Úřadu pro ochranu osobních údajů. Více informací
Chystáte se prodat nemovitost?
Pomůžeme Vám!

Inzerát si prohlédlo 6 lidí

Prodejce

Miloslava Kačerová

Miloslava Kačerová

Hlídací pes

Chcete dostávat emailem podobné nabídky pronájmu bytů 1+kk v Praze 4?

Podobné nemovitosti