Remax Monarcha

Pronájem skladu, Šternberk, Nádražní, 665 m2

Nádražní, Šternberk

Cena na vyžádání /za měsíc Získejte výhodnou HYPOTÉKU
Doporučené firmy v Šternberku

Pojištění a finance

Informace k nemovitosti

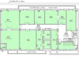
Pronajmeme větší nebytový prostor ve 2. nadzemním podlaží. Přístup je po širokém dvouramenném schodišti. Dříve prostor sloužil jako jídelna. K dispozici je sociální zázemí. Je zde možnost skladovat, vyrábět, zřídit prostory na cvičení apod. Samostatné měření spotřeby elektřiny, tepla, vody, topení plynovým kotlem a radiátory. Volné ihned pro skladování. V případě jiného využití a nutnosti úprav je možné domluvit posunutí zahájení placení nájemného.

Parametry nemovitosti

Cena
Cena na vyžádání
Aktualizováno
4. 5. 2026
Adresa
Nádražní, Šternberk
Stavba
Cihlová
Stav objektu
Dobrý
Patro
2.
Užitná plocha
665 m2

Kontaktovat makléře

Máte zájem o tuto nemovistost?

Tímto, v souladu s nařízením Evropského parlamentu a Rady (EU) 2016/679, v platném znění, prohlašuji, že mi je alespoň 16 let a uděluji tak svůj souhlas se zpracováním zadaných údajů (jméno, telefon, e-mail, ip adresa) společnosti B3 Technology, s.r.o., IČ: 07330600, se sídlem Novostavby 126/23, 435 11 Lom (správce dat), za účelem předání dotazu z tohoto formuláře Vámi vybranému inzerentovi a zpětného kontaktování mé osoby. Osobní údaje bude správce zpracovávat manuálně i automaticky přímo prostřednictvím svých zaměstnanců. Informace předané tímto formulářem budou uloženy v databázi správce maximálně po dobu 10 let. Odvolání souhlasu s uložením a zpracováním poskytnutých dat lze e-mailem na info@bydlisnami.cz. V případě podezření na neoprávněné použití Vámi poskytnutých údajů máte právo předat podnět k šetření Úřadu pro ochranu osobních údajů. Více informací
Chystáte se prodat nemovitost?
Pomůžeme Vám!
Theleadway banner

Inzerát si prohlédlo 21 lidí

Prodejce

Petr Štolba

Petr Štolba

Hlídací pes

Chcete dostávat emailem podobné nabídky pronájmu skladů v Šternberku?

Podobné nemovitosti