Pronájem skladu, Řepov, 735 m2 (ID: 2459850)

Řepov

215 Kč /za metr čtvereční / měsíc Získejte výhodnou HYPOTÉKU
Doporučené firmy v Řepově

Informace k nemovitosti

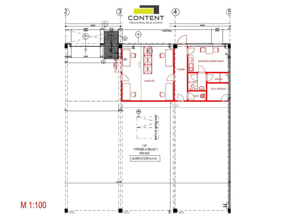
Pronájem skladu, výrobních či obchodních prostor 735 m² Mladá Boleslav.
Exkluzivně a bez provize nabízíme novostavbu skladu nebo výrobních prostor o výměře až 2425 m², umístěných v nově vznikajícím průmyslovo-retailovém areálu Ptáček: topení-voda-plyn a Koupelny Ptáček. Areál je přímo u dálnice D10, exit 44 v blízkosti nákupního centra Olympia Mladá Boleslav.

- k dispozici ihned
- prostory ve stavu Shell & Core,
- možnost vlastní konfigurace sociálního zázemí a kanceláří,
- dostupné 3 jednotky 735 m², 874 m², 816 m² - jednotky jsou propojitelné
- světlá výška 9 m,
- nosnost podlahy minimálně 5 t/m²,
- každá jednotka disponuje 3x přímým vjezdem,
- vytápěné a zateplené prostory, elektřina,
- dostatečné parkovací a manipulační plochy v rámci areálu,
- není možnost hydraulické rampy,
- další úpravy možné dle přání a potřeb konkrétního klienta.

Cena nájmu za skladové plochy je EUR 8.5/m²/měsíc, kanceláře a sociální zázemí EUR 10/m²/měsíc + služby.
Fotografie vnitřních prostor jsou pouze ilustrativní. Pro více informací nás kontaktujte, rádi zodpovíme Vaše dotazy.

Parametry nemovitosti

Cena
215 Kč /za metr čtvereční / měsíc
Aktualizováno
30. 10. 2025
Adresa
Řepov
ID
N5809
Stavba
Skeletová
Stav objektu
Novostavba
Typ objektu
Přízemní
Lokalita objektu
Rušná část obce
Užitná plocha
735 m2
Třída energetické náročnosti
C - Úsporná
Parkování

Kontaktovat makléře

Realitní kancelář

Logo CONTENT REALITY s.r.o.

CONTENT REALITY s.r.o.

Průmyslová 1472/11, Praha 10

Chystáte se prodat nemovitost?
Pomůžeme Vám!

Máte zájem o tuto nemovistost?

Tímto, v souladu s nařízením Evropského parlamentu a Rady (EU) 2016/679, v platném znění, prohlašuji, že mi je alespoň 16 let a uděluji tak svůj souhlas se zpracováním zadaných údajů (jméno, telefon, e-mail, ip adresa) společnosti B3 Technology, s.r.o., IČ: 07330600, se sídlem Novostavby 126/23, 435 11 Lom (správce dat), za účelem předání dotazu z tohoto formuláře Vámi vybranému inzerentovi a zpětného kontaktování mé osoby. Osobní údaje bude správce zpracovávat manuálně i automaticky přímo prostřednictvím svých zaměstnanců. Informace předané tímto formulářem budou uloženy v databázi správce maximálně po dobu 10 let. Odvolání souhlasu s uložením a zpracováním poskytnutých dat lze e-mailem na info@bydlisnami.cz. V případě podezření na neoprávněné použití Vámi poskytnutých údajů máte právo předat podnět k šetření Úřadu pro ochranu osobních údajů. Více informací
Chystáte se prodat nemovitost?
Pomůžeme Vám!

Inzerát si prohlédlo 0 lidí

Prodejce

Matěj Ježek

Matěj Ježek

Hlídací pes

Chcete dostávat emailem podobné nabídky pronájmu skladů v Řepově?

Podobné nemovitosti