Vážného, Brno, Řečkovice
Ve výhradním zastoupení majitele nabízím jedinečnou příležitost koupi stavebního pozemku Brno Řečkovice s projektem, včetně stavebního povolení a vyjádření všech dotčených orgánů (přípojky, vjezd na pozemek a další náležitosti). 
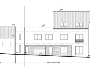
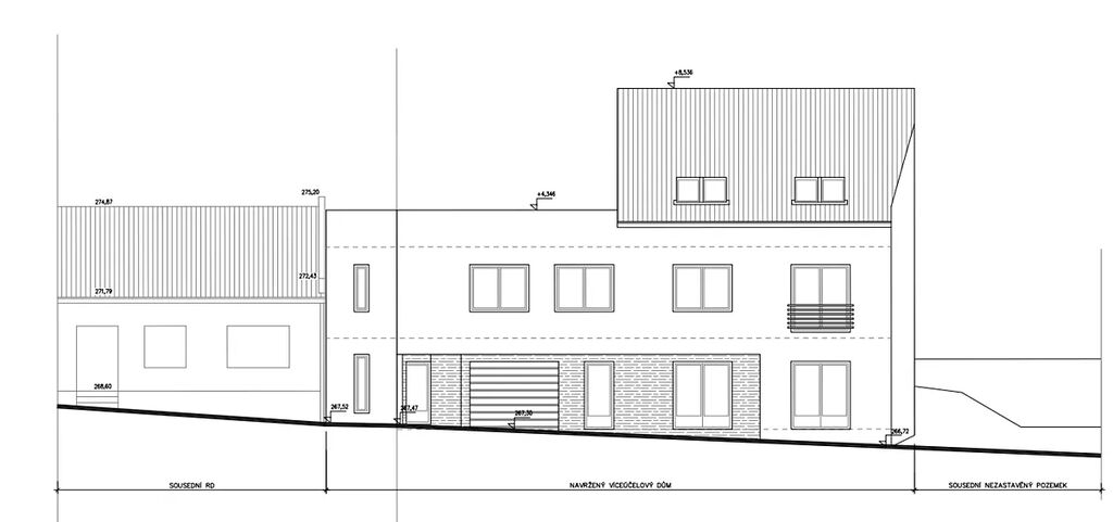
Jedná se o je pozemek na rohu ulice Vážného a Veselá. Je zde počítáno s výstavbou víceúčelového, nebo bytového  domu . V přízemí  domu je počítáno s parkovacími místy  + prostorem na bydlení nebo komerci (cca 55m2), v 1 NP čtyři bytové jednotky o velikosti 1+kk (od 25m2 do 40m2), v 2 NP je možnost velkého bytu + terasa, nebo dva menší byty s terasou. Projekt a stavební povolení je k nahlédnutí po domluvě.
V případě zájmu kontaktuje makléře.
Slavíčkova 827/1a, Brno
Máte zájem o tento pozemek?
Inzerát si prohlédlo 0 lidí
 
                                Stanislava Šudáková
Chcete dostávat emailem podobné nabídky prodeje pozemků pro bydlení v Brně?