Pronájem bytu 2+kk, Praha - Žižkov, Bořivojova, 49 m2

Bořivojova, Praha, Žižkov

19 000 Kč /za měsíc Získejte výhodnou HYPOTÉKU

(Uvedená cena je bez poplatků)

Doporučené firmy v Praze 3

Stěhovací služby

Výkup a prodej starého nábytku

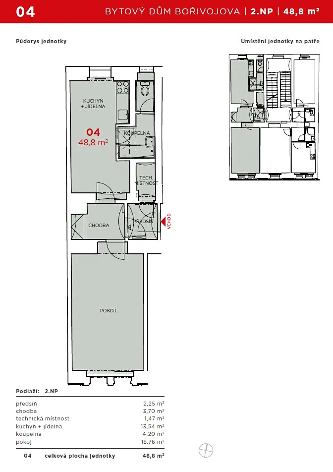
Informace k bytu

Nabízíme pronájem bytu 2+kk o výměře 48,8 m2 ve 3.NP po rekonstrukci. Byt je částečně vybaven, součástí je kuchyňská linka se spotřebiči, lednice s mrazákem. Nájemci mohou využít přístup na společný dvorek ve vnitrobloku.

Topení je elektrické, byt má svůj elektrický kotel a bojler na ohřev vody.

Byt je k nastěhování IHNED.
Provize činí 9 500 Kč, vratná kauce je ve výši 30 000 Kč.
Elektřina není součástí poplatků a převádí se na nájemce.
Poplatky bez elektřiny: 1 500 Kč.

Dům je situován v širším centru města. V okolí domu je veškerá občanská vybavenost. V blízkosti bytu je MHD (tram, BUS a metro), tramvajová zastávka Lipanská je vzdálena 150 m, metro Jiřího z Poděbrad na Lince A je pak vzdáleno cca 10 min pěšky. V blízkém okolí jsou obchody s potravinami, restaurace i oblíbené kavárny. 5 minut autem je dostupné obchodní centrum Atrium Flora. V okolí domu je veškerá občanská vybavenost. Školy, školky dětská hřiště i oblíbená pražská divadla – Divadlo na Vinohradech a Žižkovské divadlo. V docházkové vzdálenosti se nachází oblíbené pražské parky, jako Riegerovy a Mahlerovy sady, Parukářka nebo vrh Vítkov.

Parametry bytu

Cena
19 000 Kč /za měsíc
Poznámka k ceně
Uvedená cena je bez poplatků
Aktualizováno
30. 10. 2025
Adresa
Bořivojova, Praha, Žižkov
ID
BORI 4
Stavba
Cihlová
Stav objektu
Po rekonstrukci
Patro
3.
Vybaveno
Částečně
Vlastnictví
Osobní
Užitná plocha
49 m2
Podlahová plocha
55 m2
Třída energetické náročnosti
G - Mimořádně nehospodárná

Kontaktovat makléře

Máte zájem o tento byt?

Tímto, v souladu s nařízením Evropského parlamentu a Rady (EU) 2016/679, v platném znění, prohlašuji, že mi je alespoň 16 let a uděluji tak svůj souhlas se zpracováním zadaných údajů (jméno, telefon, e-mail, ip adresa) společnosti B3 Technology, s.r.o., IČ: 07330600, se sídlem Novostavby 126/23, 435 11 Lom (správce dat), za účelem předání dotazu z tohoto formuláře Vámi vybranému inzerentovi a zpětného kontaktování mé osoby. Osobní údaje bude správce zpracovávat manuálně i automaticky přímo prostřednictvím svých zaměstnanců. Informace předané tímto formulářem budou uloženy v databázi správce maximálně po dobu 10 let. Odvolání souhlasu s uložením a zpracováním poskytnutých dat lze e-mailem na info@bydlisnami.cz. V případě podezření na neoprávněné použití Vámi poskytnutých údajů máte právo předat podnět k šetření Úřadu pro ochranu osobních údajů. Více informací
Chystáte se prodat nemovitost?
Pomůžeme Vám!

Inzerát si prohlédlo 4 lidí

Prodejce

CREDITAS Real Estate

CREDITAS Real Estate

Hlídací pes

Chcete dostávat emailem podobné nabídky pronájmu bytů 2+kk v Praze 3?

Podobné nemovitosti