U sklárny, Strání, Květná
Nabízíme vám k dlouhodobému podnájmu byt 2+kk o velikosti 66 m². Tento světlý a vzdušný byt se nachází v 2. nadzemním podlaží a součástí nájmu je i garáž přímo u domu. Komfortní bydlení doplňuje zahrada s posezením a pergolou – ideální místo pro relaxaci. Pokud hledáte pohodlí a soukromí, jste na správné adrese.
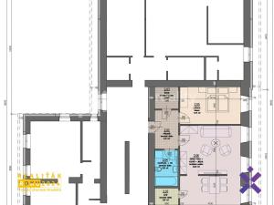
- dispozice 2+kk, užitná plocha 66 m², 2. podlaží
- součástí nájmu je garáž, sklepní kóje, přístup do zahrady a společných prostor, parkovat se dá taky u domu
- vybavený byt kuchyňskou linkou vč. spotřebičů (trouba, sklokeramická deska, digestoř, dřez, myčka) a koupelnou (vanou/sprchou, skříňkou se zrcadlem, umyvadlem a teplovodním žebříkem)
- vlastní elektrický boiler, radiátorové vytápění přes společný plynový kondenzační kotel, samostatné měřiče tepla, vody i elektřiny
- bezpečnostní vstupní dveře, led osvětlení, PVC podlahy v dekoru dřeva
- elektrický vrátný se sluchátkem, příprava na internet (vlastní wifi router)
Byt se nachází v klidné lokalitě s výbornou dostupností a příjemným zázemím. K dispozici je velká oplocená zahrada, kde se nachází pergola s posezením – ideální pro relaxaci nebo grilování. V přízemí domu je kolárna a kočárkárna, uzamykatelná sklepní kóje je součástí pronájmu. Parkování je možné v přidělené garáži, která má vlastní elektro přípojku nebo u domu.
V ceně nájmu je zahrnuto: pronájem bytu a sklepní kóje, garáž, užívání společných prostor (kolárna, kočárkárna, zahrada, pergola), pojištění nemovitosti + drobné pojištění domácnosti, fond oprav.
Měsíční zálohy celkem 4 381 Kč/měsíc: voda 600 Kč, elektřina 1 000 Kč, plyn 950 Kč, internet 350 Kč, garáž 1 300 Kč, pojištění domácnosti a odpovědnosti 181 Kč, rozhlasové a televizní poplatky + svoz komunálního odpadu si musíte zajistit.
Líbí se Vám tato nemovitost? Potkejme se osobně na místě, co Vy na to? Zavolejte mi nebo napište a já Vám sdělím veškeré detaily do poslední cihly. Chtěli byste, abych i Vás zastupoval při prodeji? Stačí mi napsat, jsem tu pro Vás kdekoli a kdykoli.
Těším se na Vás :)
Hladiš - Reality
Máte zájem o tento byt?
Inzerát si prohlédlo 1 lidí
 
                                Filip Hladiš
Chcete dostávat emailem podobné nabídky pronájmu bytů 2+kk v Strání?