Prodej chalupy, Prosečné, 218 m2

Prosečné

3 490 000 Kč /za nemovitost HYPOTÉKA od 15 598 Kč /za měsíc

(včetně poplatků, včetně provize, včetně právního servisu)

Doporučené firmy v Prosečném

Informace k domu

Hledáte nemovitost, která v sobě spojuje kouzlo historie, krásu krkonošské přírody i potenciál do budoucna? Pak vás zaujme tato historická zemědělská usedlost z roku 1815.

Obec Prosečné leží v srdci Podkrkonoší – kraji čistého vzduchu a výhledů na Krkonoše. Místní atmosféra nabízí klid venkova, přesto s vynikající dopravní dostupností do Trutnova či Vrchlabí. V okolí se nachází golfové hřiště, cyklostezky a několik ski areálů včetně Rudníku, Černého Dolu či Janských Lázní.

Jedná se o jednopodlažní stavbu s tradičními okny a sedlovou střechou. Usedlost je z části podsklepená a nabízí také prostornou půdu, která přímo vybízí k přeměně v útulné obytné podkroví s výhledem do krajiny.

Zastavěná plocha činí cca 307 m², k níž náleží pozemek o výměře 1 364 m². Tvoří ho rovinatá travnatá plocha s dostatkem prostoru pro parkování, dvorek i venkovní posezení. Zahrada navazuje na sousední nezastavěné pozemky určené k zástavbě. V případě zájmu lze zprostředkovat také jejich prodej a vytvořit tak jeden celek o výměře až 3 419 m².

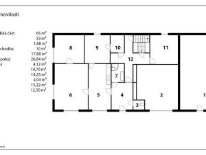
Nemovitost tvoří jeden harmonický celek rozdělený do tří částí – obytnou část (cca 120 m2), prostornou garáž s dílnou (cca 33 m2) a hospodářské zázemí (cca 65 m2), které kdysi sloužilo k chovu zvířat. Každá z těchto částí má samostatný vstup, což otevírá široké možnosti budoucího využití – od rodinného sídla po ubytování či ateliérový prostor.

V obytné části s užitnou plochou cca 120 m2 vás vstupní dveře vás zavedou do prostorné chodby, z níž se doleva otevírá vstup do původní kuchyně. Průchodem dále se dostáváme do největší místnosti celého domu – původního obytného salonu, který je rohový s okny ze dvou stran a tudíž zaplavený denním světlem. Na tuto místnost navazuje menší pokoj, dříve využívaný jako ložnice. Vzadu za kuchyní se nachází ještě dva menší pokoje, respektive jeden poslouží spíše jako sklad či šatna.

V chodbě se po pravé straně nachází samostatná toaleta a dále v čele chodby stojí koupelna, připravená na kompletní modernizaci. Na vstupní chodbu navazuje vstup do odkloněné části přízemí, začínající chodbou s technickým zázemím, schody do sklepa a schody na půdu. Tato část nabízí obrovský potenciál – z půdy lze vybudovat obytné podkroví s výhledem do krajiny, zatímco sklep může posloužit jako vinárna, sklad potravin či wellness zóna s kamennými klenbami a původními stěnami, které si zachovaly přirozený chlad. Na samotném konci domu pak naleznete poslední velký pokoj, odkloněný lehce stranou. Tento prostor, původně hospodářského charakteru, si přímo říká o přeměnu – může z něj vzniknout ateliér, dílna, nebo další obytná jednotka.

Usedlost je napojena na veřejný vodovod, elektřinu i plyn, odpady jsou řešeny vlastní čističkou odpadních vod.
Přístup je po obecní asfaltové komunikaci. Stavba je smíšené konstrukce (cihla, vápenec, kámen) s částečným podsklepením a prostornou půdou, vhodnou pro vestavbu obytného podkroví. Střecha je plechová s imitací pálených tašek, krytina položena před několika lety nová.

Pokud cítíte, že právě tady by mohl začít váš další příběh, zavolejte mi a přijďte se podívat.

Parametry domu

Cena
3 490 000 Kč /za nemovitost Spočítat hypotéku
Poznámka k ceně
včetně poplatků, včetně provize, včetně právního servisu
Aktualizováno
5. 11. 2025
Adresa
Prosečné
ID
00243-2
Stavba
Smíšená
Stav objektu
Před rekonstrukcí
Vybaveno
Ne
Druh objektu
Samostatný
Lokalita objektu
Klidná část obce
Užitná plocha
218 m2
Zastavěná plocha
307 m2
Plocha pozemku
1364 m2
Elektřina
230V
Plyn
Plynovod
Odpad
ČOV pro celý objekt
Komunikace
Asfaltová
Voda
Vodovod
Topné těleso
Radiátory
Zdroj topení
Plynový kotel
Zdroj teplé vody
Plynový kotel
Garáž
Sklep
Výtah
Parkování

Kontaktovat makléře

Realitní kancelář

FIRST HOLD INVEST s.r.o.

Za Pasáží 1429, Pardubice, Zelené Předměstí

Chystáte se prodat nemovitost?
Pomůžeme Vám!

Máte zájem o tento dům?

Tímto, v souladu s nařízením Evropského parlamentu a Rady (EU) 2016/679, v platném znění, prohlašuji, že mi je alespoň 16 let a uděluji tak svůj souhlas se zpracováním zadaných údajů (jméno, telefon, e-mail, ip adresa) společnosti B3 Technology, s.r.o., IČ: 07330600, se sídlem Novostavby 126/23, 435 11 Lom (správce dat), za účelem předání dotazu z tohoto formuláře Vámi vybranému inzerentovi a zpětného kontaktování mé osoby. Osobní údaje bude správce zpracovávat manuálně i automaticky přímo prostřednictvím svých zaměstnanců. Informace předané tímto formulářem budou uloženy v databázi správce maximálně po dobu 10 let. Odvolání souhlasu s uložením a zpracováním poskytnutých dat lze e-mailem na info@bydlisnami.cz. V případě podezření na neoprávněné použití Vámi poskytnutých údajů máte právo předat podnět k šetření Úřadu pro ochranu osobních údajů. Více informací
Chystáte se prodat nemovitost?
Pomůžeme Vám!

Inzerát si prohlédlo 8 lidí

Prodejce

Kryštof Kalhous

Kryštof Kalhous

Hlídací pes

Chcete dostávat emailem podobné nabídky prodeje chalup v Prosečném?

Podobné nemovitosti