Pronájem kanceláře, Brno, Hněvkovského, 46 m2 (ID: 2466857)

Hněvkovského, Brno, Komárov

11 432 Kč /za měsíc Získejte výhodnou HYPOTÉKU

(bez DPH + služby (bez provize RK))

Doporučené firmy v Brně

Pojištění a finance

Informace k nemovitosti

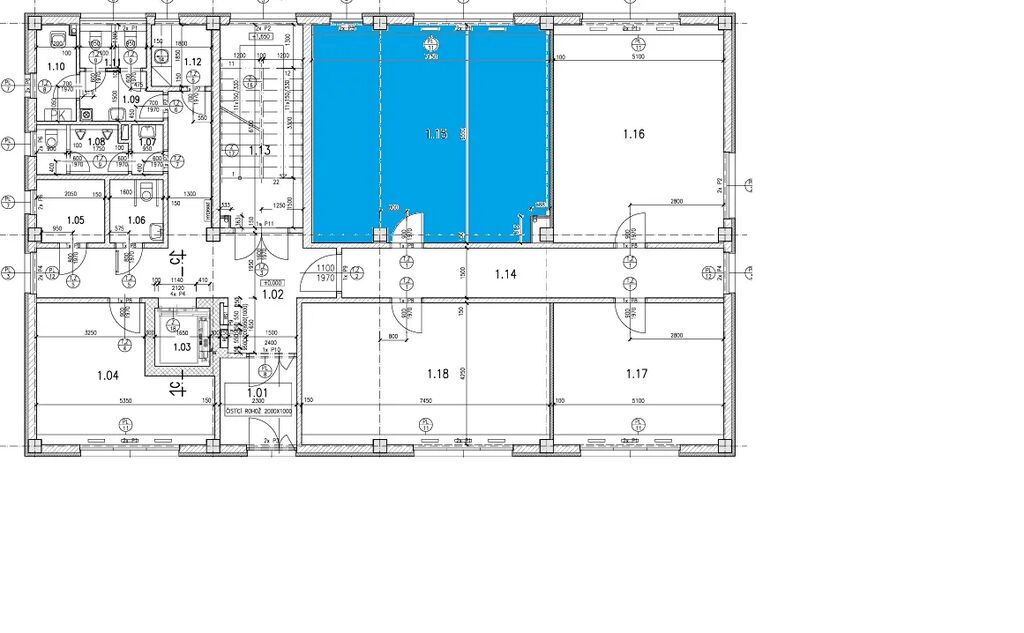
Jako majitel areálu Vám nabízíme k pronájmu kancelář o výměře 46,1 m2 v lokalitě Brno – Komárov. Jedná se o kancelář č.1.15 ve 1. NP Budovy č. 6 na ulici Hněvkovského. Sociální zázemí a kuchyňka jsou sdílené na patře.

Náklady na pronájem:
- nájemné 11.433,- Kč/měsíc bez DPH
- vyhrazené parkovací místo 600,- Kč/měsíc bez DPH
- energie rozúčtované dle pronajaté výměry m2
- servisní poplatek 1.060,- Kč/měsíc bez DPH (zahrnuje režijní náklady spojené se správou)
- je možné objednat i další služby (připojení k internetu, úklid pronajatých prostor)
kauce/jistota 55.000,- Kč

Další výhody areálu Hněvkovského:
- výborná dostupnost areálu autem z centra Brna (4 minuty) i z dálnic D1 a D2 (3 minuty)
- přímo před areálem je zastávka autobusů MHD č. 40, 48, 63, 67, dojezd za 10 minut z hlavního nádraží, 8 minut od Vaňkovky a 5 minut ze Zvonařky
- noční ostraha areálu je zajištěna, přístup do areálu v režimu 24/7
- naproti areálu se nachází volnočasové centrum Komec a cyklostezka kolem řeky Svratky
- v těsné blízkosti je supermarket Lidl
- po dohodě je možné umístit Vaši reklamu v rámci areálu nebo při ulici Hněvkovského.

Pro bližší informace prosím kontaktujte paní Mazourovou na tel. 739 032 727. Rádi si s Vámi domluvíme prohlídku nabízených prostor.

Parametry nemovitosti

Cena
11 432 Kč /za měsíc
Poznámka k ceně
bez DPH + služby (bez provize RK)
Aktualizováno
7. 4. 2026
Adresa
Hněvkovského, Brno, Komárov
Stavba
Cihlová
Stav objektu
Velmi dobrý
Patro
1. z 3
Vybaveno
Ne
Lokalita objektu
Centrum obce
Užitná plocha
46 m2
Podlahová plocha
46 m2
Třída energetické náročnosti
C - Úsporná
Elektřina
230V
Odpad
Veřejná kanalizace
Topení
Lokální plynové
Komunikace
Asfaltová
Telekomunikace
Telefon, Internet
Doprava
Dálnice, Silnice, MHD, Autobus
Voda
Místní zdroj vody
Topné těleso
Radiátory
Zdroj topení
Plynový kotel
Zdroj teplé vody
Plynový kotel
Výtah
Bezbarierový přístup
Parkování

Kontaktovat makléře

Máte zájem o tuto nemovistost?

Tímto, v souladu s nařízením Evropského parlamentu a Rady (EU) 2016/679, v platném znění, prohlašuji, že mi je alespoň 16 let a uděluji tak svůj souhlas se zpracováním zadaných údajů (jméno, telefon, e-mail, ip adresa) společnosti B3 Technology, s.r.o., IČ: 07330600, se sídlem Novostavby 126/23, 435 11 Lom (správce dat), za účelem předání dotazu z tohoto formuláře Vámi vybranému inzerentovi a zpětného kontaktování mé osoby. Osobní údaje bude správce zpracovávat manuálně i automaticky přímo prostřednictvím svých zaměstnanců. Informace předané tímto formulářem budou uloženy v databázi správce maximálně po dobu 10 let. Odvolání souhlasu s uložením a zpracováním poskytnutých dat lze e-mailem na info@bydlisnami.cz. V případě podezření na neoprávněné použití Vámi poskytnutých údajů máte právo předat podnět k šetření Úřadu pro ochranu osobních údajů. Více informací
Chystáte se prodat nemovitost?
Pomůžeme Vám!
Theleadway banner

Inzerát si prohlédlo 23 lidí

Prodejce

Jarmila Mazourová

Jarmila Mazourová

Hlídací pes

Chcete dostávat emailem podobné nabídky pronájmu kanceláří v Brně?

Podobné nemovitosti