Prodej pozemku pro bydlení, Brumovice, 858 m2

Brumovice

2 863 350 Kč /za nemovitost HYPOTÉKA od 12 797 Kč /za měsíc

(včetně DPH, včetně poplatků, včetně provize, včetně právního servisu)

Doporučené firmy v Brumovicích

Informace k pozemku

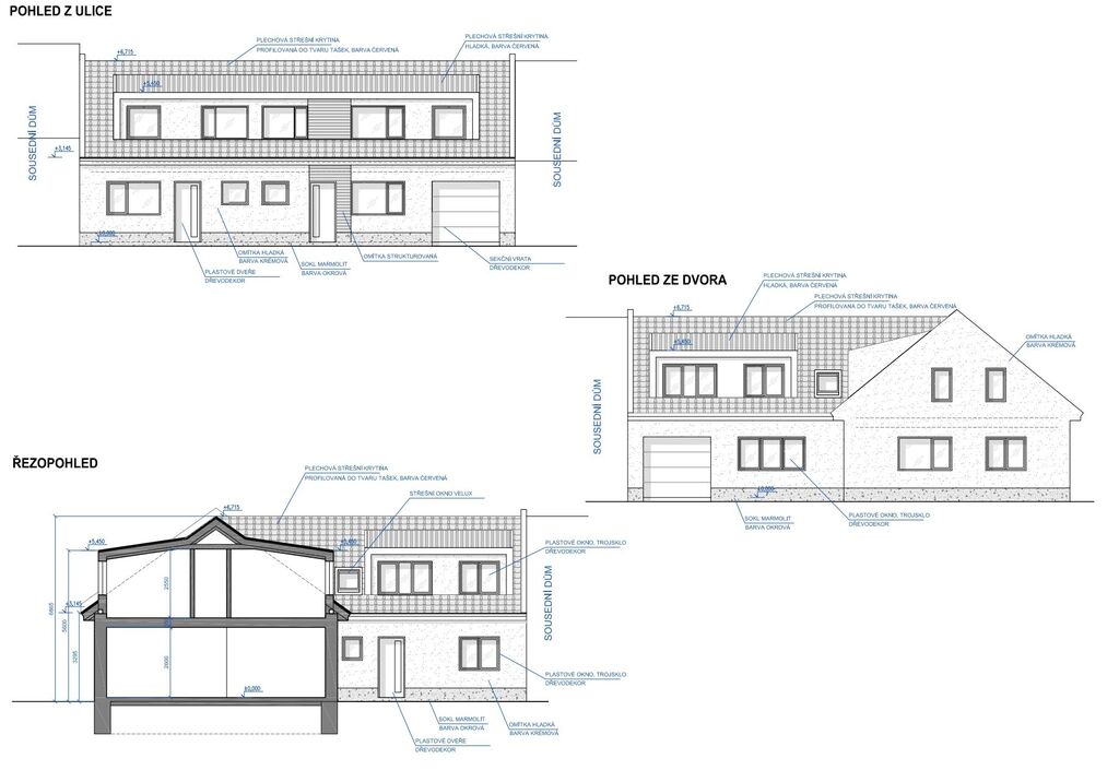
Ve výhradním zastoupení majitele nabízíme k prodeji rodinný dům v obci Brumovice, určený k kompletní rekonstrukci nebo demolici a následné nové výstavbě. Součástí prodeje je studie na přestavbu objektu na tři bytové jednotky a samostatný rodinný dům v zadní části zahrady, což dává nemovitosti velký investiční potenciál. Pozemek má navíc přístup i ze zadní části, a to po obecním pozemku, což výrazně usnadňuje případné rozdělení a samostatné využití zadní části parcely. Za zahradou je dle územního plánu plánovaná nová lokalita pro výstavbu. Celková plocha pozemku činí 858m2 a uliční šíře je 16 metrů. Všechny inženýrské sítě (voda, elektřina, plyn, kanalizace) jsou k dispozici jak u domu, tak i v zadní části pozemku. Brumovice se nacházejí v atraktivní vinařské oblasti a nabízejí výborné možnosti turistiky a cykloturistiky v malebném okolí. V případě zájmu o tuto nemovitost kontaktujte makléře.

Parametry pozemku

Cena
2 863 350 Kč /za nemovitost Spočítat hypotéku
Poznámka k ceně
včetně DPH, včetně poplatků, včetně provize, včetně právního servisu
Aktualizováno
11. 11. 2025
Adresa
Brumovice
ID
120098JV-1
Druh objektu
Řadový
Plocha pozemku
858 m2
Odpad
Veřejná kanalizace
Komunikace
Asfaltová
Doprava
Silnice, Autobus
Voda
Vodovod

Kontaktovat makléře

Máte zájem o tento pozemek?

Tímto, v souladu s nařízením Evropského parlamentu a Rady (EU) 2016/679, v platném znění, prohlašuji, že mi je alespoň 16 let a uděluji tak svůj souhlas se zpracováním zadaných údajů (jméno, telefon, e-mail, ip adresa) společnosti B3 Technology, s.r.o., IČ: 07330600, se sídlem Novostavby 126/23, 435 11 Lom (správce dat), za účelem předání dotazu z tohoto formuláře Vámi vybranému inzerentovi a zpětného kontaktování mé osoby. Osobní údaje bude správce zpracovávat manuálně i automaticky přímo prostřednictvím svých zaměstnanců. Informace předané tímto formulářem budou uloženy v databázi správce maximálně po dobu 10 let. Odvolání souhlasu s uložením a zpracováním poskytnutých dat lze e-mailem na info@bydlisnami.cz. V případě podezření na neoprávněné použití Vámi poskytnutých údajů máte právo předat podnět k šetření Úřadu pro ochranu osobních údajů. Více informací
Chystáte se prodat nemovitost?
Pomůžeme Vám!

Inzerát si prohlédlo 2 lidí

Prodejce

Jan Vystoupil, MRE

Jan Vystoupil, MRE

Hlídací pes

Chcete dostávat emailem podobné nabídky prodeje pozemků pro bydlení v Brumovicích (okr. Břeclav)?

Podobné nemovitosti