Pronájem obchodního prostoru, Ludgeřovice, Hlučínská, 302 m2 (ID: 2467848)

Hlučínská, Ludgeřovice

Cena na vyžádání /za měsíc Získejte výhodnou HYPOTÉKU
Doporučené firmy v Ludgeřovicích

Informace k nemovitosti

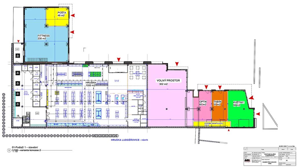
Dovolujeme si Vám nabídnout obchodní prostory v připravovaném projektu Centra služeb v Ludgeřovicích s plánovaným dokončením ve 2. čtvrtletí roku 2026.

Samotné centrum bude mít moderní a poutavý design a strategickou polohu v centru Ludgeřovic, v blízkosti kostela a hlavní silnice. Hlavním nájemcem a zároveň investorem je společnost Hruška, která zde otevře moderní prodejnu reflektující nový designový směr společnosti. Dále zde vznikne velké lékařské středisko, fitness centrum, bistro, pošta, trafika a s dalšími nájemci aktivně jednáme.

Nabízený prostor má výměru 302 m², je umístěn přímo u hlavní prodejny Hruška a disponuje velkými výlohami. Prostor bude ve stavu „shell & core“, případně je možná dohoda o úpravách formou kontribuce.

V případě dotazů mě neváhejte kontaktovat.

Parametry nemovitosti

Cena
Cena na vyžádání
Aktualizováno
8. 11. 2025
Adresa
Hlučínská, Ludgeřovice
Stavba
Skeletová
Stav objektu
Novostavba
Patro
1.
Užitná plocha
302 m2
Parkování

Kontaktovat makléře

Máte zájem o tuto nemovistost?

Tímto, v souladu s nařízením Evropského parlamentu a Rady (EU) 2016/679, v platném znění, prohlašuji, že mi je alespoň 16 let a uděluji tak svůj souhlas se zpracováním zadaných údajů (jméno, telefon, e-mail, ip adresa) společnosti B3 Technology, s.r.o., IČ: 07330600, se sídlem Novostavby 126/23, 435 11 Lom (správce dat), za účelem předání dotazu z tohoto formuláře Vámi vybranému inzerentovi a zpětného kontaktování mé osoby. Osobní údaje bude správce zpracovávat manuálně i automaticky přímo prostřednictvím svých zaměstnanců. Informace předané tímto formulářem budou uloženy v databázi správce maximálně po dobu 10 let. Odvolání souhlasu s uložením a zpracováním poskytnutých dat lze e-mailem na info@bydlisnami.cz. V případě podezření na neoprávněné použití Vámi poskytnutých údajů máte právo předat podnět k šetření Úřadu pro ochranu osobních údajů. Více informací
Chystáte se prodat nemovitost?
Pomůžeme Vám!

Inzerát si prohlédlo 1 lidí

Prodejce

Martin Maček

Martin Maček

Hlídací pes

Chcete dostávat emailem podobné nabídky pronájmu obchodních prostor v Ludgeřovicích?

Podobné nemovitosti