Pronájem výrobních prostor, Ostrava - Slezská Ostrava, Podzámčí, 1152 m2 (ID: 2469028)

Podzámčí, Slezská Ostrava

Cena na vyžádání /za metr čtvereční / měsíc Získejte výhodnou HYPOTÉKU
Doporučené firmy v Ostravě

Informace k nemovitosti

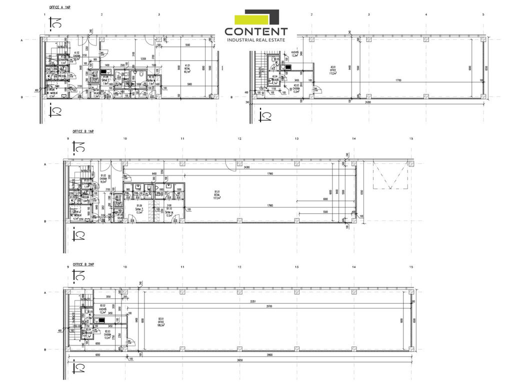
Pronájem skladu, výrobních prostor 1152 m² Ostrava, Slezská - Zárubek.
V zastoupení majitele a bez provize nabízíme industriální prostory ve výstavbě na velice strategickém místě poblíže OC Nová Karolína administrativního komplexu ORGANICA. Budova bude dodána s nejmodernějšími technologiemi a trendy ze stavebnictví. Jednotky se ideálně hodí jako sídlo firmy se showroomem, prodejnou, servisem, skladem, nebo lehkou výrobou. Umístění areálu je dále ideální na city logistiku, distribuci v rámci centra Ostravy, atd.

- jednotka o velikosti 1152 m² ihned k dispozici
- z toho 108 m² showroom + kanceláře v 1.NP a 2.NP
- k dispozici samostatné jednotky od 594 m² - 4608 m² v rámci jedné budovy
- výroba, sklad, servis, dílna, distribuce, kanceláře, výdejny
- možnost klientských změn a úprav dle požadavků nájemníka
- nosnost podlahy minimálně 5 t/m²
- voda, plyn, elektřina, kanalizace
- přímé vjezdy, nakládací rampy
- kanceláře vytápěné tepelným čerpadlem
- hala vytápěná plynovými saharami
- certifikace budovy BREEAM VERY GOOD
- FVE + bateriové úložiště pro udržitelný provoz budovy

Cena bude stanovena dle konkrétních podmínek smlouvy.
Pro více informací nás kontaktujte. V případě zájmu Vám rádi zajistíme prohlídku.

Parametry nemovitosti

Cena
Cena na vyžádání
Aktualizováno
7. 11. 2025
Adresa
Podzámčí, Slezská Ostrava
ID
N5923
Stavba
Skeletová
Stav objektu
Novostavba
Typ objektu
Přízemní
Lokalita objektu
Rušná část obce
Užitná plocha
1152 m2
Třída energetické náročnosti
C - Úsporná
Parkování

Kontaktovat makléře

Realitní kancelář

Logo CONTENT REALITY s.r.o.

CONTENT REALITY s.r.o.

Průmyslová 1472/11, Praha 10

Chystáte se prodat nemovitost?
Pomůžeme Vám!

Máte zájem o tuto nemovistost?

Tímto, v souladu s nařízením Evropského parlamentu a Rady (EU) 2016/679, v platném znění, prohlašuji, že mi je alespoň 16 let a uděluji tak svůj souhlas se zpracováním zadaných údajů (jméno, telefon, e-mail, ip adresa) společnosti B3 Technology, s.r.o., IČ: 07330600, se sídlem Novostavby 126/23, 435 11 Lom (správce dat), za účelem předání dotazu z tohoto formuláře Vámi vybranému inzerentovi a zpětného kontaktování mé osoby. Osobní údaje bude správce zpracovávat manuálně i automaticky přímo prostřednictvím svých zaměstnanců. Informace předané tímto formulářem budou uloženy v databázi správce maximálně po dobu 10 let. Odvolání souhlasu s uložením a zpracováním poskytnutých dat lze e-mailem na info@bydlisnami.cz. V případě podezření na neoprávněné použití Vámi poskytnutých údajů máte právo předat podnět k šetření Úřadu pro ochranu osobních údajů. Více informací
Chystáte se prodat nemovitost?
Pomůžeme Vám!

Inzerát si prohlédlo 9 lidí

Prodejce

Matěj Ježek

Matěj Ježek

Hlídací pes

Chcete dostávat emailem podobné nabídky pronájmu výrobních prostor v Ostravě?

Podobné nemovitosti