Pronájem bytu 1+kk, Tábor, Jordánská, 26 m2 (ID: 2470729)

Jordánská, Tábor

8 000 Kč /za měsíc Získejte výhodnou HYPOTÉKU

(Měsíční služby spojené s užíváním bytu 1.800,- Kč bez elektřiny)

Doporučené firmy v Táboře

Informace k bytu

Nabízíme vám k pronájmu menší garsoniéru  o výměře 26,7 m2 situovanou v 1. PP (přízemí) zděného  domu v Jordánské ulici pod historickým centrem Tábora. Okno je orientováno z druhé strany domu do zahrady.
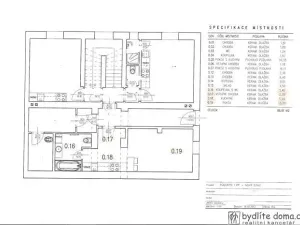
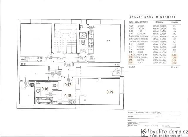
Byt je s kuchyňskou linkou a vestavěnou čtyř plotynkovou sklo keramickou varnou deskou, digestoří, dřezem s odkapávačem a stojankovou baterii. Součástí vybavení je menší barový pultík se dvěma stoličkami a věšáková stěna s botníkem za dveřmi. K dispozici je menší vestavěná chladnička s výparníkem, automatická pračka, nástěnné infrazářičové přídavné topení a odvlhčovač vzduchu. Na podlahách keramická dlažba. Topení a ohřev vody úsporným centrálním kotlem na plyn. Samostatná měřidla médií. Pokoj s kuchyní 18,9 m2, chodba 2,35 m2, koupelna s WC 5,45 m2. Na přiloženém půdoryse jde o byt označený čísly 0.16-0.19. Sklep není k dispozici. Prostor pro odložení kola v technické místnosti vedle kotelny.
Možnost grilováním v altánku a posezení pod venkovní pergolou. Vhodné je využití teras s trvalkovým porostem k venkovní relaxaci. Parkování před domem, na nedalekém placeném parkovišti nebo na velkém neplaceném parkovišti 500 m od domu.
Měsíční nájem 6.200,- Kč, služby spojené s užíváním bytu zálohově - V/S 200,- Kč, TUV 300,- Kč, otop 1.000,- Kč, společná elektřina 200,- Kč a úklid společných prostor 100,- Kč. Celkem služby měsíčně 1.800,- Kč. Nájem včetně služeb bez elektřiny 8.000,- Kč. Elektřina zvlášť samostatnou smlouvou s E.ON. Doporučená výše zálohy 1.200,- Kč.  Kauce 12.400,- Kč. Provize RK 9 tis. Kč. Byt je na dobré adrese.
Bydlení je vhodné pro jednu osobu. Očekáváme solventního zájemce s vlastním dostatečným příjmem, bez exekucí či insolvence, bez adresy trvalého bydliště na městském či obecním úřadu. Bez domácích mazlíčků. Vzhledem k tomu, že je byt v přízemí a pouze s jedním oknem,je třeba často a pravidelně větrat a v zimě pak byt řádně vytápět. Uvítáme proto méně náročného nájemníka, který vezme v potaz, že tento určitý disokonfort je zohledněný ve výši nájmu.
Prohlídky po domluvě s pracovníkem RK nejdříve od 1.12.2025,k nastěhování od 5.12. 2025. Možnost rezervace pořadí prohlídek již nyní.

Parametry bytu

Cena
8 000 Kč /za měsíc
Poznámka k ceně
Měsíční služby spojené s užíváním bytu 1.800,- Kč bez elektřiny
Náklady na bydlení
1800,- Kč měsíčnš bez elektřiny
Aktualizováno
9. 11. 2025
Adresa
Jordánská, Tábor
ID
T122025
Stavba
Cihlová
Stav objektu
Dobrý
Patro
1. z 2
Vybaveno
Částečně
Lokalita objektu
Klidná část obce
Vlastnictví
Osobní
Užitná plocha
26 m2
Třída energetické náročnosti
G - Mimořádně nehospodárná
Elektřina
230V
Plyn
Plynovod
Odpad
Veřejná kanalizace
Telekomunikace
Internet
Voda
Vodovod
Topné těleso
Radiátory
Zdroj topení
Plynový kotel, Ústřední dálkové
Zdroj teplé vody
Plynový kotel
Výtah
Bezbarierový přístup

Kontaktovat makléře

Máte zájem o tento byt?

Tímto, v souladu s nařízením Evropského parlamentu a Rady (EU) 2016/679, v platném znění, prohlašuji, že mi je alespoň 16 let a uděluji tak svůj souhlas se zpracováním zadaných údajů (jméno, telefon, e-mail, ip adresa) společnosti B3 Technology, s.r.o., IČ: 07330600, se sídlem Novostavby 126/23, 435 11 Lom (správce dat), za účelem předání dotazu z tohoto formuláře Vámi vybranému inzerentovi a zpětného kontaktování mé osoby. Osobní údaje bude správce zpracovávat manuálně i automaticky přímo prostřednictvím svých zaměstnanců. Informace předané tímto formulářem budou uloženy v databázi správce maximálně po dobu 10 let. Odvolání souhlasu s uložením a zpracováním poskytnutých dat lze e-mailem na info@bydlisnami.cz. V případě podezření na neoprávněné použití Vámi poskytnutých údajů máte právo předat podnět k šetření Úřadu pro ochranu osobních údajů. Více informací
Chystáte se prodat nemovitost?
Pomůžeme Vám!

Inzerát si prohlédlo 22 lidí

Prodejce

Žárský Kamil

Žárský Kamil

Hlídací pes

Chcete dostávat emailem podobné nabídky pronájmu bytů 1+kk v Táboře?

Podobné nemovitosti