Prodej bytu 3+1, Blansko, Mahenova, 102 m2

Mahenova, Blansko

6 990 000 Kč /za nemovitost HYPOTÉKA od 31 241 Kč /za měsíc

(včetně poplatků, včetně provize, včetně právního servisu)

Doporučené firmy v Blansku

Pojištění a finance

Informace k bytu

Dnes vám ukážu byt, který zvenku působí docela nenápadně, ale uvnitř má víc prostoru, než byste čekali.

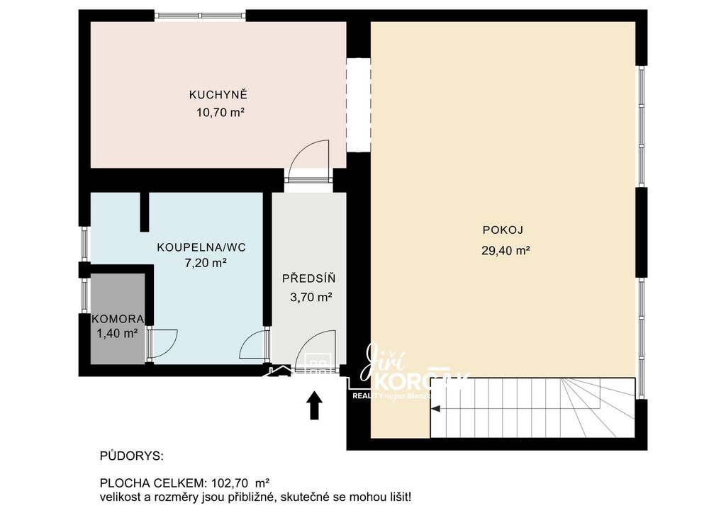
Původně šlo o klasickou 2+1 s 56 m², ale v roce 2014 prošel velkou proměnou.

Díky přístavbě do podkroví se rozšířil na celkových přibližně 102 m² (dle prohlášení vlastníka) a vznikl z něj atraktivní prostorný mezonet.

V podkroví najdete dva samostatné pokoje, ideální třeba jako ložnice a dětský pokoj nebo pracovna.

V dolním patře je velký obývací pokoj volně navazující na kuchyní, kde se pohodlně sejde celá rodina.

Tenhle byt najdete v ulici Mahenova, v klidné části Blanska, kde je přitom vše na dosah.


Jen pár minut chůze odtud máte centrum města, obchody, školu, školku i poštu.

Pro ty, kdo dojíždějí, je to ideální místo — vlakové i autobusové nádraží jsou vzdálené do deseti minut pěšky.

Ať už míříte do Brna nebo kamkoli jinam, dopravní dostupnost je tu opravdu výborná.

K tomu prostorná koupelna, technická místnost a vlastní plynový kotel, takže si sami určujete,
kdy a jak topíte i ohříváte vodu.

Celý dům je klasický podsklepený cihlový objekt ze 70. let, se třemi podlažími, napojený na veřejný vodovod, kanalizaci, elektřinu i plyn.

Okolí domu je klidné, bez rušivých vlivů, se spoustou zeleně a pohodovým sousedstvím.

Pokud hledáte v Blansku byt s pořádným prostorem, dobrou adresou a atmosférou rodinného bydlení, tenhle mezonet na Mahenové si rozhodně zaslouží vaši pozornost.

Zavolejte mi, domluvíme si prohlídku — rád vám ho osobně ukážu.

Parametry bytu

Cena
6 990 000 Kč /za nemovitost Spočítat hypotéku
Poznámka k ceně
včetně poplatků, včetně provize, včetně právního servisu
Aktualizováno
3. 3. 2026
Adresa
Mahenova, Blansko
ID
00051
Stavba
Cihlová
Stav objektu
Velmi dobrý
Patro
3. z 3
Vybaveno
Částečně
Druh objektu
V bloku
Lokalita objektu
Klidná část obce
Vlastnictví
Osobní
Užitná plocha
102 m2
Třída energetické náročnosti
G - Mimořádně nehospodárná
Elektřina
230V
Plyn
Plynovod
Odpad
Veřejná kanalizace
Topení
Ústřední plynové
Doprava
Vlak, Silnice, MHD, Autobus
Voda
Místní zdroj vody
Sklep
Výtah

Kontaktovat makléře

Máte zájem o tento byt?

Tímto, v souladu s nařízením Evropského parlamentu a Rady (EU) 2016/679, v platném znění, prohlašuji, že mi je alespoň 16 let a uděluji tak svůj souhlas se zpracováním zadaných údajů (jméno, telefon, e-mail, ip adresa) společnosti B3 Technology, s.r.o., IČ: 07330600, se sídlem Novostavby 126/23, 435 11 Lom (správce dat), za účelem předání dotazu z tohoto formuláře Vámi vybranému inzerentovi a zpětného kontaktování mé osoby. Osobní údaje bude správce zpracovávat manuálně i automaticky přímo prostřednictvím svých zaměstnanců. Informace předané tímto formulářem budou uloženy v databázi správce maximálně po dobu 10 let. Odvolání souhlasu s uložením a zpracováním poskytnutých dat lze e-mailem na info@bydlisnami.cz. V případě podezření na neoprávněné použití Vámi poskytnutých údajů máte právo předat podnět k šetření Úřadu pro ochranu osobních údajů. Více informací
Chystáte se prodat nemovitost?
Pomůžeme Vám!
Theleadway banner

Inzerát si prohlédlo 74 lidí

Prodejce

Jiří Korčák

Jiří Korčák

Hlídací pes

Chcete dostávat emailem podobné nabídky prodeje bytů 3+1 v Blansku?

Podobné nemovitosti