Pronájem bytu 2+kk, Praha - Nusle, Čiklova, 48 m2

Čiklova, Praha, Nusle

24 900 Kč /za nemovitost Získejte výhodnou HYPOTÉKU
Doporučené firmy v Praze 2

Stěhovací služby

Výkup a prodej starého nábytku

Informace k bytu

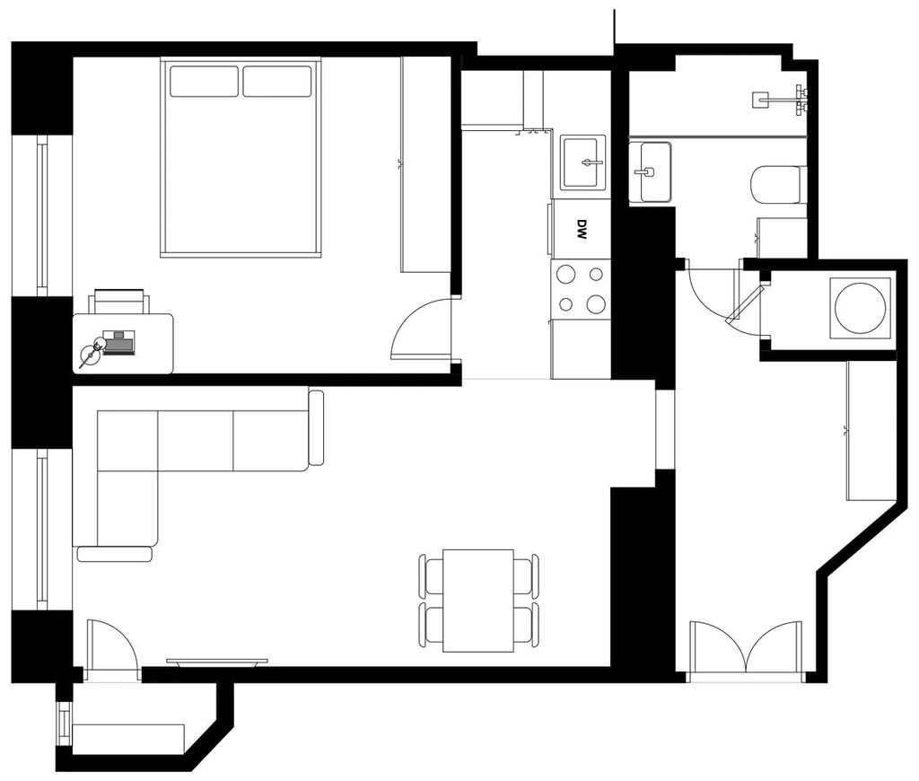
Nabízíme k pronájmu prostorný a světlý byt 2+kk o velikosti 48 m², který se nachází ve 4. nadzemním podlaží udržovaného cihlového domu. Byt je orientován do klidné zahrady se vzrostlými stromy. Díky vyššímu podlaží je výhled zcela otevřený, bez přímých sousedních budov, což zajišťuje příjemné soukromí i dostatek přirozeného světla.
Byt se nachází v prestižní rezidenční části Prahy 2 – Nusle, v ulici Čiklova. Jedná se o velmi žádanou lokalitu v blízkosti vyšehradských hradeb. V docházkové vzdálenosti najdete útulné kavárny, restaurace, menší obchody i veškerou občanskou vybavenost. Oblíbená Náplavka, Vyšehrad s výhledem na Vltavu nebo přilehlý park Folimanka nabízí ideální prostředí pro procházky a volný čas.

Skvělou dopravní dostupnost zajišťuje stanice metra C – Vyšehrad, která je vzdálena jen pár minut chůze, stejně jako tramvajová a autobusová zastávka Ostrčilovo náměstí s přímým spojením do centra.

Byt prošel kompletní rekonstrukcí, která zahrnovala nové rozvody, podlahy, obklady i koupelnu se sprchovým koutem a sanitou Grohe. Součástí je nová kuchyňská linka se spotřebiči značky Gorenje (lednice s mrazákem, trouba, varná deska, myčka, digestoř). Dispozici tvoří obývací pokoj s kuchyňským koutem, samostatná ložnice a koupelna s toaletou. K dispozici je také technická místnost s přípojkou na pračku.

Byt se pronajímá zařízený tak, jak je uvedeno na fotografiích, a bude doplněn o pračku.

Nájemné 24 900 Kč / měsíc,
poplatky: 1 500 Kč / 1 osoba, každá další osoba +700 Kč + elektřina se převádí na nájemníka.
Vratná kauce: 1 měsíc nájmu vč. poplatků
Provize za zprostředkování : 1 měsíc nájmu

Smlouva se uzavírá na 1 rok s možností prodloužení.

Byt je volný ihned, nastěhování dle dohody. V případě zájmu si můžete prohlídnout i virtuální prohlídku. Pro domluvení prohlídky nás prosím kontaktujte.

Parametry bytu

Cena
24 900 Kč /za nemovitost
Náklady na bydlení
1.500 ,- měsíční poplatky + přepis elektrické energie na nájemníka
Aktualizováno
12. 11. 2025
Adresa
Čiklova, Praha, Nusle
ID
1587
Stavba
Cihlová
Stav objektu
Velmi dobrý
Patro
4. z 5
Vybaveno
Ano
Lokalita objektu
Centrum obce
Vlastnictví
Osobní
Užitná plocha
48 m2
Podlahová plocha
48 m2
Třída energetické náročnosti
E - Nehospodárná
Odpad
Veřejná kanalizace
Topení
Lokální elektrické
Komunikace
Asfaltová
Doprava
Vlak, Dálnice, Silnice, MHD, Autobus
Voda
Vodovod
Topné těleso
Podlahové vytápění
Zdroj topení
Jiné
Zdroj teplé vody
Bojler - elektro
Sklep
Výtah
Bezbarierový přístup

Kontaktovat makléře

Realitní kancelář

NOVA ET VETERA, s.r.o.

náměstí Jiřího z Poděbrad 1554/6, Praha

Chystáte se prodat nemovitost?
Pomůžeme Vám!

Máte zájem o tento byt?

Tímto, v souladu s nařízením Evropského parlamentu a Rady (EU) 2016/679, v platném znění, prohlašuji, že mi je alespoň 16 let a uděluji tak svůj souhlas se zpracováním zadaných údajů (jméno, telefon, e-mail, ip adresa) společnosti B3 Technology, s.r.o., IČ: 07330600, se sídlem Novostavby 126/23, 435 11 Lom (správce dat), za účelem předání dotazu z tohoto formuláře Vámi vybranému inzerentovi a zpětného kontaktování mé osoby. Osobní údaje bude správce zpracovávat manuálně i automaticky přímo prostřednictvím svých zaměstnanců. Informace předané tímto formulářem budou uloženy v databázi správce maximálně po dobu 10 let. Odvolání souhlasu s uložením a zpracováním poskytnutých dat lze e-mailem na info@bydlisnami.cz. V případě podezření na neoprávněné použití Vámi poskytnutých údajů máte právo předat podnět k šetření Úřadu pro ochranu osobních údajů. Více informací
Chystáte se prodat nemovitost?
Pomůžeme Vám!

Inzerát si prohlédlo 2 lidí

Prodejce

Bc. Vendy Tranová

Bc. Vendy Tranová

Hlídací pes

Chcete dostávat emailem podobné nabídky pronájmu bytů 2+kk v Praze 2?

Podobné nemovitosti