Pronájem bytu 2+kk, Kutná Hora, Za Lidkou, 59 m2 (ID: 2473134)

Za Lidkou, Kutná Hora, Hlouška

16 900 Kč /za měsíc Získejte výhodnou HYPOTÉKU
Doporučené firmy v Kutné Hoře

Informace k bytu

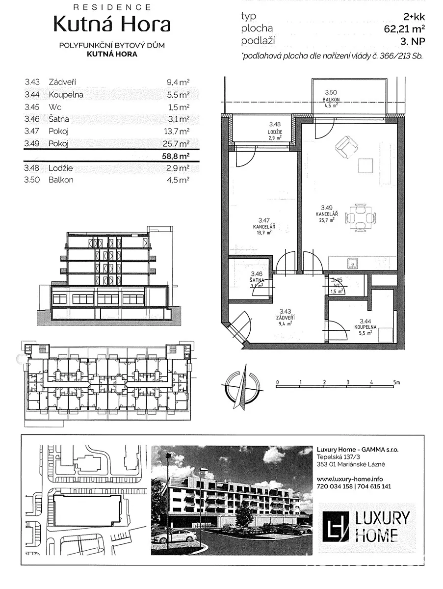
Nabízíme k pronájmu zcela nový, moderně řešený byt o dispozici 2+kk s balkonem a lodžií umístěný ve 3. nadzemním podlaží nově dokončené rezidenční novostavby v projektu Za Lidkou v Kutné Hoře. Tato lokalita spojuje klidné prostředí s vynikající dostupností a kompletní občanskou vybaveností.

Dispozice a vybavení:
Vstupní chodba s prostornou komorou
Koupelna se sprchovým koutem a samostatná toaleta
Obývací pokoj s kuchyňským koutem a vstupem na balkon
Ložnice se vstupem na lodžii

Kuchyňská linka je vybavena:
vestavěnou lednicí
myčkou nádobí
indukční varnou deskou
elektrickou troubou
mikrovlnnou troubou

Byt se pronajímá nezařízený. K jednotce náleží sklepní kóje a garážové parkovací stání v 1. podzemním podlaží.

Lokalita a občanská vybavenost:
Kutná Hora, město zapsané na seznamu světového dědictví UNESCO, nabízí nejen výjimečné kulturní prostředí, ale také plnou občanskou vybavenost:
Obchody, supermarkety, pošta, lékárny, restaurace a další služby
Zastávky MHD a vlakové spojení s Prahou a okolím
Školy, školky a zdravotnická zařízení
Sportovní a volnočasové aktivity, cyklostezky a parky
Rezidence Za Lidkou je moderní, klidný rezidenční projekt navržený s důrazem na pohodlí a kvalitu života.

K nastěhování ihned.

Měsíční nájemné: 16 900 Kč + 1000 Kč garážové stání
Zálohy na služby:
3 000 Kč / měsíc pro 1 osobu
3 500 Kč / měsíc pro 2 osoby
elektřinu si nájemník přepisuje na sebe
Kauce: 25 000 Kč
+ Provize RK ve výši 1 nájmu + DPH

Zavolejte a domluvte si prohlídku v tomto krásném a světlém bytě.

Parametry bytu

Cena
16 900 Kč /za měsíc
Aktualizováno
12. 11. 2025
Adresa
Za Lidkou, Kutná Hora, Hlouška
ID
00632
Stavba
Cihlová
Stav objektu
Novostavba
Patro
3.
Vlastnictví
Osobní
Užitná plocha
59 m2
Třída energetické náročnosti
B - Velmi úsporná
Ukazatel energetické náročnosti
71 kWh/m2 za rok
Odpad
Veřejná kanalizace
Doprava
Vlak, MHD, Autobus
Voda
Vodovod
Topné těleso
Radiátory
Zdroj topení
Centrální dálkové
Zdroj teplé vody
Centrální dálkový ohřev
Balkon
Sklep
Lodžie
Parkování

Kontaktovat makléře

Máte zájem o tento byt?

Tímto, v souladu s nařízením Evropského parlamentu a Rady (EU) 2016/679, v platném znění, prohlašuji, že mi je alespoň 16 let a uděluji tak svůj souhlas se zpracováním zadaných údajů (jméno, telefon, e-mail, ip adresa) společnosti B3 Technology, s.r.o., IČ: 07330600, se sídlem Novostavby 126/23, 435 11 Lom (správce dat), za účelem předání dotazu z tohoto formuláře Vámi vybranému inzerentovi a zpětného kontaktování mé osoby. Osobní údaje bude správce zpracovávat manuálně i automaticky přímo prostřednictvím svých zaměstnanců. Informace předané tímto formulářem budou uloženy v databázi správce maximálně po dobu 10 let. Odvolání souhlasu s uložením a zpracováním poskytnutých dat lze e-mailem na info@bydlisnami.cz. V případě podezření na neoprávněné použití Vámi poskytnutých údajů máte právo předat podnět k šetření Úřadu pro ochranu osobních údajů. Více informací
Chystáte se prodat nemovitost?
Pomůžeme Vám!

Inzerát si prohlédlo 6 lidí

Prodejce

Michaela Šulcová

Michaela Šulcová

Hlídací pes

Chcete dostávat emailem podobné nabídky pronájmu bytů 2+kk v Kutné Hoře?

Podobné nemovitosti