Prodej rodinného domu, Svitavy, Lanškrounská, 178 m2

Lanškrounská, Svitavy, Předměstí

7 990 000 Kč /za nemovitost HYPOTÉKA od 35 710 Kč /za měsíc

(včetně provize)

Doporučené firmy v Svitavách

Informace k domu

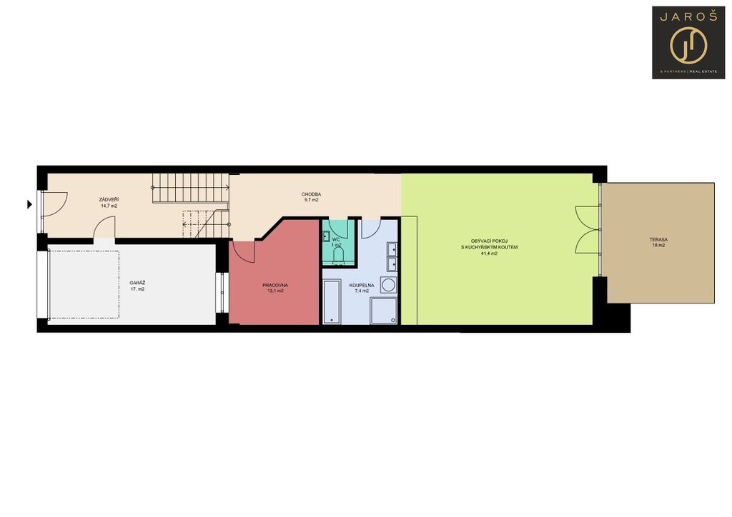
Nabízíme vám k prodeji moderní řadový rodinný dům o dispozici 5+kk s celkovou plochou 234 m² v projektu Rezidence Park Svitavy. Dům nabízí prostorný obývací pokoj s kuchyňským koutem, který přímo navazuje na terasu a zahradu směrem do parku. V přízemí se dále nachází koupelna, pracovna a zádveří. Mezipatro nabízí vstup na terasu směrem do ulice. V patře jsou čtyři samostatné pokoje, koupelna a balkon s příjemným výhledem do zeleně, přístupný z obou pokojů. Součástí je také garáž přístupná ze vstupní chodby a dvě parkovací stání přímo před domem.
Interiér je téměř dokončený, stačí doladit několik detailů a můžete se nastěhovat. Podlahy jsou v kombinaci vinylových dílců a dlažby.
Kompletní nabídku domů naleznete na rezidenceparksvitavy cz.

Stavba je cihlová se zateplením, osazena plastovými okny s trojsklem. Ohřev vody a teplovodní podlahové vytápění v obou patrech zajišťuje plynový kondenzační kotel Baxi. Střešní krytina z PVC fólie se zateplením v kombinaci s šikmou střechou s pálenou taškou. Vnitřní příčky zděné, zdi mezi jednotlivými domy vybudovány z akustických cihel a podhledy v místnostech jsou ze sádrokartonu. Garážová vrata Hörmann na dálkové ovládání.

Rezidence Park Svitavy se nachází v klidné části města s výbornou dostupností do centra. V okolí najdete veškerou občanskou vybavenost – školy, obchody, restaurace, kavárny i sportoviště. Jen pár minut od domu se nachází sportovní areál s atletickým oválem, tenisovými kurty, fotbalovým hřištěm a moderní plavecký bazén.
Zastávka autobusu je pouhé 4 minuty chůze a na vlakovém nádraží jste za 12 minut. Nejbližším větším městem je Olomouc, kde se dostanete za 50 minut autem, dále také Pardubice a Brno, kam vám jízda potrvá zhruba hodinu. Do budoucna se dojezdové časy zkrátí díky dostavbě dálničního úseku D35 z Pardubic do Olomouce.

Nemovitost lze hradit hypotečním úvěrem, vyřízení vám zdarma zajistí naše hypoteční oddělení.
V případě zájmu o doplňující informace či prohlídku mě neváhejte kdykoliv kontaktovat.

Parametry domu

Cena
7 990 000 Kč /za nemovitost Spočítat hypotéku
Poznámka k ceně
včetně provize
Aktualizováno
16. 11. 2025
Adresa
Lanškrounská, Svitavy, Předměstí
ID
03647
Stavba
Cihlová
Stav objektu
Velmi dobrý
Vybaveno
Ne
Typ objektu
Patrový
Druh objektu
Řadový
Lokalita objektu
Centrum obce
Užitná plocha
178 m2
Zastavěná plocha
129 m2
Podlahová plocha
234 m2
Plocha pozemku
295 m2
Třída energetické náročnosti
D - Méně úsporná
Ukazatel energetické náročnosti
107 kWh/m2 za rok
Elektřina
230V, 400V
Plyn
Plynovod
Odpad
Veřejná kanalizace
Topení
Ústřední plynové
Komunikace
Dlážděná, Asfaltová
Doprava
Vlak, Dálnice, Silnice, Autobus
Voda
Vodovod
Balkon
Garáž
Terasa
Výtah
Parkování

Kontaktovat makléře

Máte zájem o tento dům?

Tímto, v souladu s nařízením Evropského parlamentu a Rady (EU) 2016/679, v platném znění, prohlašuji, že mi je alespoň 16 let a uděluji tak svůj souhlas se zpracováním zadaných údajů (jméno, telefon, e-mail, ip adresa) společnosti B3 Technology, s.r.o., IČ: 07330600, se sídlem Novostavby 126/23, 435 11 Lom (správce dat), za účelem předání dotazu z tohoto formuláře Vámi vybranému inzerentovi a zpětného kontaktování mé osoby. Osobní údaje bude správce zpracovávat manuálně i automaticky přímo prostřednictvím svých zaměstnanců. Informace předané tímto formulářem budou uloženy v databázi správce maximálně po dobu 10 let. Odvolání souhlasu s uložením a zpracováním poskytnutých dat lze e-mailem na info@bydlisnami.cz. V případě podezření na neoprávněné použití Vámi poskytnutých údajů máte právo předat podnět k šetření Úřadu pro ochranu osobních údajů. Více informací
Chystáte se prodat nemovitost?
Pomůžeme Vám!

Inzerát si prohlédlo 20 lidí

Prodejce

Mgr. Jakub Doležílek

Mgr. Jakub Doležílek

Hlídací pes

Chcete dostávat emailem podobné nabídky prodeje rodinných domů v Svitavách?

Top nabídky

Podobné nemovitosti