Pronájem bytu 2+1, Praha - Žižkov, Hartigova, 57 m2

Hartigova, Praha 3

23 999 Kč /za měsíc Získejte výhodnou HYPOTÉKU

(S prvním nájmem platíte poplatek RK a vratnou kauci, kompletní právní servis v ceně)

Doporučené firmy v Praze 3

Stěhovací služby

Výkup a prodej starého nábytku

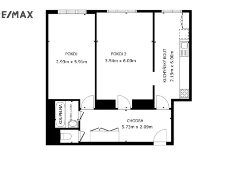
Informace k bytu

Pronájem klidného nově zrekonstruovaného bytu 2+1 – Hartigova ulice, Praha 3
Nabízíme k pronájmu světlý a útulný byt 2+1 o velikosti 57 m², který se nachází ve 3. patře domu v Hartigově ulici.
Byt prošel kompletní rekonstrukcí a je připraven k okamžitému nastěhování.
🛋 Dispozice
• Obývací pokoj (18 m²) – prostorný a vzdušný, ideální pro relax i společenské chvíle.
• Ložnice (13 m²) – klidná místnost s dostatkem prostoru a spaním ve dvou úrovních pro více osob
• Jídelna (10 m2) s kuchyňskou linkou – praktické řešení pro každodenní vaření i stolování.
• Koupelna se sprchovým koutem a pračkou – moderní a funkční
• Samostatné WC – pohodlí pro více osob.
• Úložný prostor – chytré řešení pro ukládání věcí.
🏢 Budova a okolí
• Dům bez výtahu, byt se nachází ve 3. patře.
• Nová kvalitní okna zajišťují klid a tepelný komfort.
• Lokalita nabízí výbornou dostupnost – blízko obchodů, služeb i veřejné dopravy.
🌟 Proč právě tento byt?
• Nově zrekonstruovaný interiér.
• Praktická dispozice 2+1 s odděleným WC.
• Klidné bydlení s výbornou dostupností
• Ideální pro pár nebo rodinu.
• Nájem 23999 Kč + poplatky 1200/osoba nebo 3999 rodina, elektřina se převádí na nájemce
📞 Kontaktujte mě pro prohlídku. Byt je připraven stát se vaším novým domovem – moderní, klidný a na skvělé adrese.

Parametry bytu

Cena
23 999 Kč /za měsíc
Poznámka k ceně
S prvním nájmem platíte poplatek RK a vratnou kauci, kompletní právní servis v ceně
Aktualizováno
12. 11. 2025
Adresa
Hartigova, Praha 3
ID
285-NP00329
Stavba
Smíšená
Stav objektu
Velmi dobrý
Patro
4. z 6
Lokalita objektu
Centrum obce
Vlastnictví
Osobní
Užitná plocha
57 m2
Zastavěná plocha
210 m2
Třída energetické náročnosti
G - Mimořádně nehospodárná
Elektřina
230V
Odpad
Veřejná kanalizace
Komunikace
Asfaltová
Doprava
Silnice, MHD, Autobus
Voda
Vodovod

Kontaktovat makléře

Máte zájem o tento byt?

Tímto, v souladu s nařízením Evropského parlamentu a Rady (EU) 2016/679, v platném znění, prohlašuji, že mi je alespoň 16 let a uděluji tak svůj souhlas se zpracováním zadaných údajů (jméno, telefon, e-mail, ip adresa) společnosti B3 Technology, s.r.o., IČ: 07330600, se sídlem Novostavby 126/23, 435 11 Lom (správce dat), za účelem předání dotazu z tohoto formuláře Vámi vybranému inzerentovi a zpětného kontaktování mé osoby. Osobní údaje bude správce zpracovávat manuálně i automaticky přímo prostřednictvím svých zaměstnanců. Informace předané tímto formulářem budou uloženy v databázi správce maximálně po dobu 10 let. Odvolání souhlasu s uložením a zpracováním poskytnutých dat lze e-mailem na info@bydlisnami.cz. V případě podezření na neoprávněné použití Vámi poskytnutých údajů máte právo předat podnět k šetření Úřadu pro ochranu osobních údajů. Více informací
Chystáte se prodat nemovitost?
Pomůžeme Vám!

Inzerát si prohlédlo 2 lidí

Prodejce

Bc. Petr Kubášek

Bc. Petr Kubášek

Hlídací pes

Chcete dostávat emailem podobné nabídky pronájmu bytů 2+1 v Praze 3?

Podobné nemovitosti