Pronájem bytu 2+kk, Praha - Chodov, Benkova, 41 m2

Benkova, Chodov - Praha 11

20 000 Kč /za měsíc Získejte výhodnou HYPOTÉKU

(vratná jistota, náklady na bydlení 3751 Kč , poplatek za podnájem)

Doporučené firmy v Praze 4

Stěhovací služby

Výkup a prodej starého nábytku

Informace k bytu

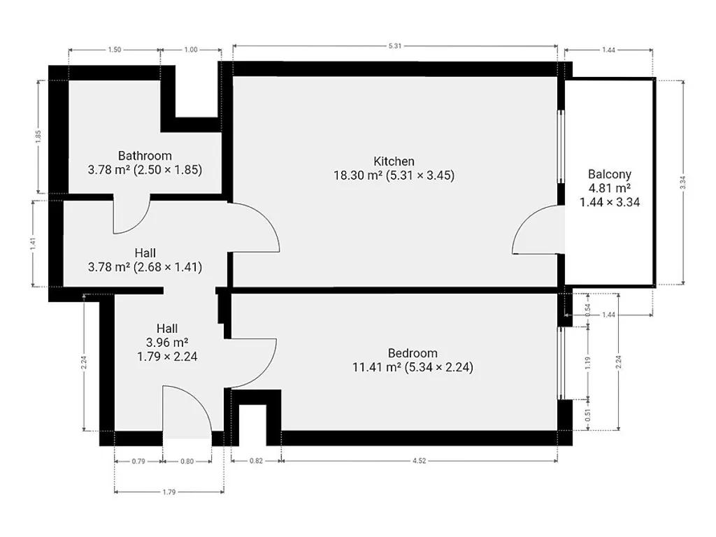
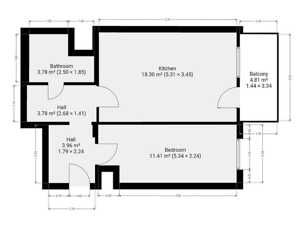
K dlouhodobému podnájmu nabízíme hezký, čerstvě zrekonstruovaný byt o dispozici 2+kk, který se nachází ve velmi klidné a vyhledávané lokalitě pražského Chodova. Byt je situován v 9. patře revitalizovaného panelového domu s výtahem, což zajišťuje nejen dostatek soukromí, ale i příjemný výhled. K bytu náleží také prostorný balkon a praktická sklepní kóje pro uložení sezónních věcí.

Interiér bytu prošel vkusnou rekonstrukcí a je připraven k tomu, aby si jej budoucí nájemníci dovybavili podle vlastních představ. Srdcem domova je nová, velmi prostorná kuchyně, která je kompletně osazena veškerými moderními spotřebiči. Dispozice dále zahrnuje vstupní chodbu, samostatný pokoj a moderní koupelnu se sprchovým koutem, umyvadlem a toaletou. Celý prostor působí svěžím a čistým dojmem.

Lokalita vyniká skvělou dopravní dostupností a kompletní občanskou vybaveností v bezprostředním okolí. Jen dvě minuty chůze od domu se nacházejí autobusové zastávky Benkova, Mokrá nebo Chodovská tvrz, odkud se za pouhých 5 minut dostanete ke stanici metra C Chodov a k oblíbenému obchodnímu centru. V blízkosti domu najdete také menší obchody s potravinami, služby a dostatek prostoru pro volnočasové aktivity.

Byt je volný a připravený k nastěhování od 1. března 2026.

Parametry bytu

Cena
20 000 Kč /za měsíc
Poznámka k ceně
vratná jistota, náklady na bydlení 3751 Kč , poplatek za podnájem
Aktualizováno
23. 2. 2026
Adresa
Benkova, Chodov - Praha 11
ID
N5807
Stavba
Panelová
Stav objektu
Velmi dobrý
Patro
9. z 11
Vybaveno
Částečně
Typ objektu
Patrový
Lokalita objektu
Klidná část obce
Vlastnictví
Osobní
Užitná plocha
41 m2
Podlahová plocha
41 m2
Elektřina
230V
Topení
Ústřední dálkové
Doprava
Vlak, Dálnice, Silnice, MHD, Autobus
Balkon
Sklep
Výtah

Kontaktovat makléře

Máte zájem o tento byt?

Tímto, v souladu s nařízením Evropského parlamentu a Rady (EU) 2016/679, v platném znění, prohlašuji, že mi je alespoň 16 let a uděluji tak svůj souhlas se zpracováním zadaných údajů (jméno, telefon, e-mail, ip adresa) společnosti B3 Technology, s.r.o., IČ: 07330600, se sídlem Novostavby 126/23, 435 11 Lom (správce dat), za účelem předání dotazu z tohoto formuláře Vámi vybranému inzerentovi a zpětného kontaktování mé osoby. Osobní údaje bude správce zpracovávat manuálně i automaticky přímo prostřednictvím svých zaměstnanců. Informace předané tímto formulářem budou uloženy v databázi správce maximálně po dobu 10 let. Odvolání souhlasu s uložením a zpracováním poskytnutých dat lze e-mailem na info@bydlisnami.cz. V případě podezření na neoprávněné použití Vámi poskytnutých údajů máte právo předat podnět k šetření Úřadu pro ochranu osobních údajů. Více informací
Chystáte se prodat nemovitost?
Pomůžeme Vám!

Inzerát si prohlédlo 15 lidí

Prodejce

Miloslava Kačerová

Miloslava Kačerová

Hlídací pes

Chcete dostávat emailem podobné nabídky pronájmu bytů 2+kk v Praze 4?

Podobné nemovitosti