Pronájem bytu 2+kk, Praha - Nové Město, Lípová, 41 m2 (ID: 2478749)

Lípová, Praha, Nové Město

24 000 Kč /za měsíc Získejte výhodnou HYPOTÉKU

(Poplatky za služby a energie se hradí zvlášť)

Doporučené firmy v Praze 2

Stěhovací služby

Výkup a prodej starého nábytku

Informace k bytu

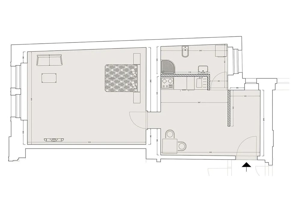
Zrekonstruovaný byt 2+kk, o celkové ploše 40,90m2, je situovaný ve 4.NP reprezentativní budovy s výtahem, v oblíbené lokalitě Praha 2 Nové Město.

Interiér bytu je nezařízený a dispozičně nabízí předsíň (3,93m2), světlý obývací prostor spojený s ložnicí (22,40m2), kuchyňskou část (10,31m2) s novou kuchyňskou linkou a se spotřebiči: lednice s mrazákem, varná deska, elektrická trouba, digestoř. Moderní koupelna disponuje sprchovým koutem, toaletou a pračkou.

Lokalita poskytuje komfortní bydlení s veškerou občanskou vybaveností (množství supermarketů, nákupní galerie Atrium na Karlově náměstí a pod.) a různorodých obchůdků, butiků s nákupní zónou v srdci Prahy, v pěší dostupností na Václavské náměstí.
Bydlení v centru města Prahy, také s dobrou dostupností k nábřeží Vltavy (včetně populární Náplavky a farmářských trzích), historickým památkám (Tančící dům, Národní divadlo, Galerie Mánes, GoetheInstitut, plác Žofín, Vyšehrad, a mnoho dalšího), které umožňuje si vychutnat krásná pražská zákoutí a poskytuje sociální vyžití divadlo, koncerty, plesy, a další kulturní akce. V okolí se nacházejí parky: Kateřinská zahrada, Botanická zahrada,park Folimanka, Riegrovy Sady. V nedaleké dostupností se nachází i koupaliště Podolí, areál se sportovními akcemi, písečnou pláží a občerstvením Žluté lázně nabízející indoboard, slackline, venkovní šachy, pétanque, beach volejbal, stolní tenis, nohejbal a dětský koutek, půjčovnu koloběžek, šlapadel, lodí, kol a bruslí.
Výborná dopravní dostupnost tramvají do veškerých částí Prahy: zastávka tramvaje Štěpánská/Karlovo náměstí nebo metrem: linka B Karlovo náměstí/ linka C I.P. Pavlova.

Zálohové poplatky za služby činí 1.700, Kč/měsíčně/osobu a energie (elektřina a plyn) hradí nájemce přímo dodavatelům. Vratná kauce 2 nájmy bez poplatků. Provize RK.

Parametry bytu

Cena
24 000 Kč /za měsíc
Poznámka k ceně
Poplatky za služby a energie se hradí zvlášť
Aktualizováno
18. 11. 2025
Adresa
Lípová, Praha, Nové Město
ID
967945
Stavba
Smíšená
Stav objektu
Po rekonstrukci
Patro
4.
Vybaveno
Ne
Vlastnictví
Osobní
Užitná plocha
41 m2
Podlahová plocha
40 m2
Třída energetické náročnosti
F - Velmi nehospodárná
Plyn
Plynovod
Doprava
Silnice, MHD
Voda
Vodovod
Sklep
Výtah

Kontaktovat makléře

Máte zájem o tento byt?

Tímto, v souladu s nařízením Evropského parlamentu a Rady (EU) 2016/679, v platném znění, prohlašuji, že mi je alespoň 16 let a uděluji tak svůj souhlas se zpracováním zadaných údajů (jméno, telefon, e-mail, ip adresa) společnosti B3 Technology, s.r.o., IČ: 07330600, se sídlem Novostavby 126/23, 435 11 Lom (správce dat), za účelem předání dotazu z tohoto formuláře Vámi vybranému inzerentovi a zpětného kontaktování mé osoby. Osobní údaje bude správce zpracovávat manuálně i automaticky přímo prostřednictvím svých zaměstnanců. Informace předané tímto formulářem budou uloženy v databázi správce maximálně po dobu 10 let. Odvolání souhlasu s uložením a zpracováním poskytnutých dat lze e-mailem na info@bydlisnami.cz. V případě podezření na neoprávněné použití Vámi poskytnutých údajů máte právo předat podnět k šetření Úřadu pro ochranu osobních údajů. Více informací
Chystáte se prodat nemovitost?
Pomůžeme Vám!

Inzerát si prohlédlo 0 lidí

Prodejce

Eva Cinculová

Eva Cinculová

Hlídací pes

Chcete dostávat emailem podobné nabídky pronájmu bytů 2+kk v Praze 2?

Podobné nemovitosti