Prodej bytu 3+kk, Olomouc, Novosadský dvůr, 73 m2

Novosadský dvůr, Olomouc

6 500 000 Kč /za nemovitost HYPOTÉKA od 29 051 Kč /za měsíc
Doporučené firmy v Olomouci

Informace k bytu

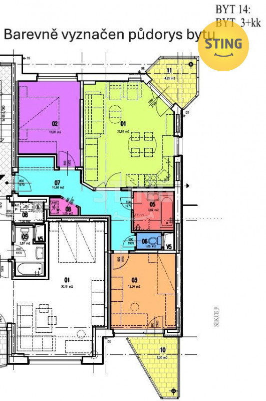
Exkluzivně nabízíme světlý byt 3+kk o celkové výměře cca 73 m², situovaný v 5. NP cihlového domu v žádané lokalitě na ulici Novosadský dvůr v Olomouci. Samotná podlahová plocha bytu činí 64,16 m², k tomu náleží dva balkony (5,20 m² a 4,25 m²). Součástí je také sklep o velikosti 2,03 m² umístěný v suterénu domu.

Všechny pokoje mají samostatný vstup z prostorné chodby, u jejíž vstupní části je umístěna velká vestavná skříň. Byt disponuje obývacím pokojem propojeným s kuchyní ve tvaru L, ložnicí a dětským pokojem. Kuchyňská linka je vybavena vestavnými spotřebiči značky Brand (myčka, indukční deska, horkovzdušná trouba a odsavač par).

Koupelna je velmi vzdušná a vybavena velkou vanou. Nově byl instalován koupelnový nábytek, včetně umyvadla a baterií. V dětském pokoji se nachází vestavný stůl s úložnými boxy a vysoká knihovna. Součástí bytu je také praktická komora s plynovým kotlem, který zajišťuje vytápění a ohřev teplé vody.

V dětském pokoji, ložnici a předsíni je položena vinylová podlaha, v obývacím pokoji s kuchyní pak plovoucí podlaha. Z dětského pokoje je vstup na balkon orientovaný na jižní stranu. Druhý balkon je přístupný z obývacího pokoje a nabízí krásný výhled na Svatý Kopeček a další olomoucké dominanty. Na obou balkonech je nedávno renovované zábradlí. Byt je čerstvě vymalovaný a vstupní dveře jsou bezpečnostní.

Byt se nachází v klidné lokalitě v blízkosti řeky Moravy, která vybízí k procházkám i sportovnímu vyžití. V docházkové vzdálenosti je mateřská a základní škola, zastávky MHD (tramvaj i autobus), centrum města i nákupní galerie Šantovka.

Bytový dům disponuje výtahem a bezbariérovým vstupem.

V případě zájmu o prohlídku nebo jakýchkoliv dotazů mě neváhejte kontaktovat. Financování Vám zajistíme zdarma prostřednictvím našeho finančního specialisty. Do konce listopadu 2025 nabízíme prostřednictvím našeho partnera úrokové sazby od 4,29 % p.a. Více informací Vám sdělí náš specialista na prohlídce.

Parametry bytu

Cena
6 500 000 Kč /za nemovitost Spočítat hypotéku
Aktualizováno
20. 11. 2025
Adresa
Novosadský dvůr, Olomouc
ID
133991
Stavba
Cihlová
Stav objektu
Velmi dobrý
Patro
5. z 7
Vlastnictví
Osobní
Užitná plocha
73 m2
Podlahová plocha
75 m2
Třída energetické náročnosti
C - Úsporná
Balkon
Sklep
Výtah
Bezbarierový přístup
Parkování

Kontaktovat makléře

Máte zájem o tento byt?

Tímto, v souladu s nařízením Evropského parlamentu a Rady (EU) 2016/679, v platném znění, prohlašuji, že mi je alespoň 16 let a uděluji tak svůj souhlas se zpracováním zadaných údajů (jméno, telefon, e-mail, ip adresa) společnosti B3 Technology, s.r.o., IČ: 07330600, se sídlem Novostavby 126/23, 435 11 Lom (správce dat), za účelem předání dotazu z tohoto formuláře Vámi vybranému inzerentovi a zpětného kontaktování mé osoby. Osobní údaje bude správce zpracovávat manuálně i automaticky přímo prostřednictvím svých zaměstnanců. Informace předané tímto formulářem budou uloženy v databázi správce maximálně po dobu 10 let. Odvolání souhlasu s uložením a zpracováním poskytnutých dat lze e-mailem na info@bydlisnami.cz. V případě podezření na neoprávněné použití Vámi poskytnutých údajů máte právo předat podnět k šetření Úřadu pro ochranu osobních údajů. Více informací
Chystáte se prodat nemovitost?
Pomůžeme Vám!

Inzerát si prohlédlo 2 lidí

Prodejce

Jiří Zedník

Jiří Zedník

Hlídací pes

Chcete dostávat emailem podobné nabídky prodeje bytů 3+kk v Olomouci?

Podobné nemovitosti