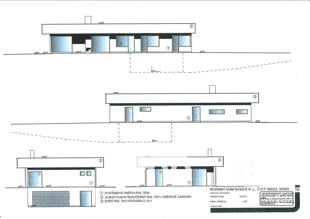
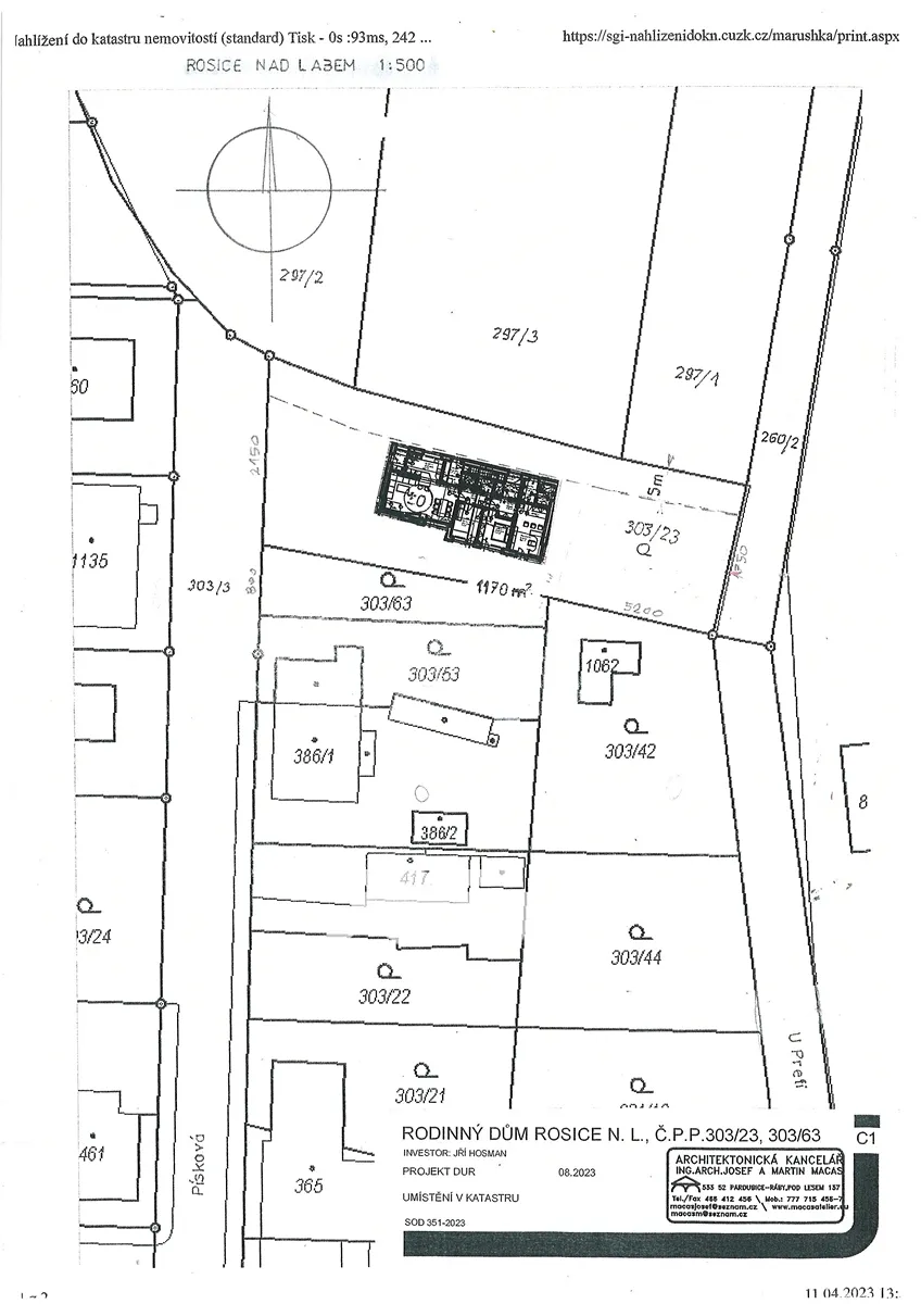
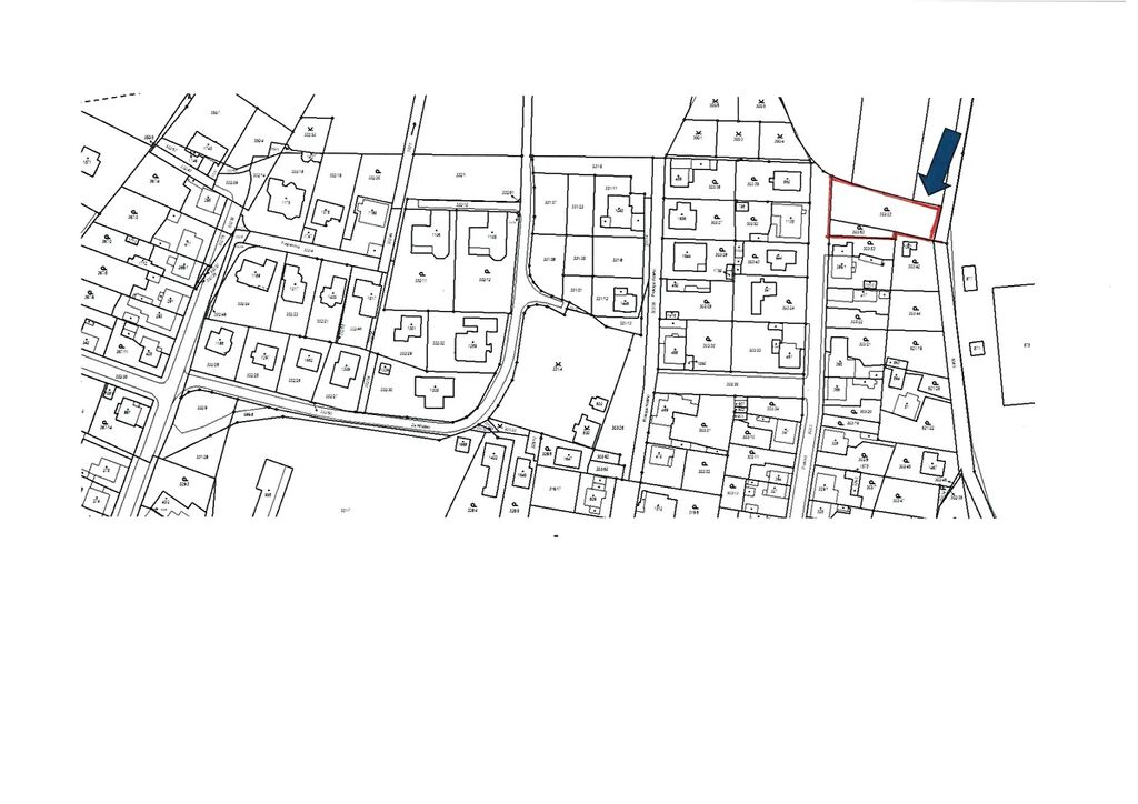
Prodej pozemku pro bydlení, Pardubice, Písková, 1170 m2 (ID: 2481165)

Písková, Pardubice, Rosice

9 500 000 Kč /za nemovitost HYPOTÉKA od 42 459 Kč /za měsíc

(včetně provize, včetně právního servisu)

Doporučené firmy v Pardubicích

Informace k pozemku

Hledáte volný pozemek na stavbu rodinného domu v Pardubicích?
Hledáte takový pozemek u lesa a přesto na slunci?
Hledáte pozemek, který Vám umožní žít v naprostém tichu a klidu?
........a chcete hned stavět a nechcete se roky handrkovat s úřady a sousedy?
V naší realitní kanceláři, která je 35 let na trhu, prodáváme výhradně nemovitosti, o kterých víme, že jejich pořízení je pro zájemce dobře využitou příležitostí. jsme přesvědčeni, že aktuálně v krajském městě Pardubice není na prodej lepší pozemek, se kterým by se vyplatilo spojit své životy.
Kontaktujte nás v případě zájmu o prohlídku!

Parametry pozemku

Cena
9 500 000 Kč /za nemovitost Spočítat hypotéku
Poznámka k ceně
včetně provize, včetně právního servisu
Aktualizováno
21. 11. 2025
Adresa
Písková, Pardubice, Rosice
ID
00147
Plocha pozemku
1170 m2
Elektřina
230V, 400V
Odpad
Veřejná kanalizace
Komunikace
Asfaltová
Doprava
Vlak, Dálnice, Silnice, MHD, Autobus
Voda
Vodovod

Kontaktovat makléře

Máte zájem o tento pozemek?

Tímto, v souladu s nařízením Evropského parlamentu a Rady (EU) 2016/679, v platném znění, prohlašuji, že mi je alespoň 16 let a uděluji tak svůj souhlas se zpracováním zadaných údajů (jméno, telefon, e-mail, ip adresa) společnosti B3 Technology, s.r.o., IČ: 07330600, se sídlem Novostavby 126/23, 435 11 Lom (správce dat), za účelem předání dotazu z tohoto formuláře Vámi vybranému inzerentovi a zpětného kontaktování mé osoby. Osobní údaje bude správce zpracovávat manuálně i automaticky přímo prostřednictvím svých zaměstnanců. Informace předané tímto formulářem budou uloženy v databázi správce maximálně po dobu 10 let. Odvolání souhlasu s uložením a zpracováním poskytnutých dat lze e-mailem na info@bydlisnami.cz. V případě podezření na neoprávněné použití Vámi poskytnutých údajů máte právo předat podnět k šetření Úřadu pro ochranu osobních údajů. Více informací
Chystáte se prodat nemovitost?
Pomůžeme Vám!

Inzerát si prohlédlo 3 lidí

Prodejce

Ing. Jan Jošt

Ing. Jan Jošt

Hlídací pes

Chcete dostávat emailem podobné nabídky prodeje pozemků pro bydlení v Pardubicích?

Podobné nemovitosti