Pronájem bytu 1+kk, Praha - Libeň, Na Rokytce, 25 m2

Na Rokytce, Libeň - Praha 8

11 900 Kč /za měsíc Získejte výhodnou HYPOTÉKU

(vratná jistota Kč, náklady na bydlení 3 349 Kč, poplatek za podnájem)

Doporučené firmy v Praze 8

Stěhovací služby

Výkup a prodej starého nábytku

Informace k bytu

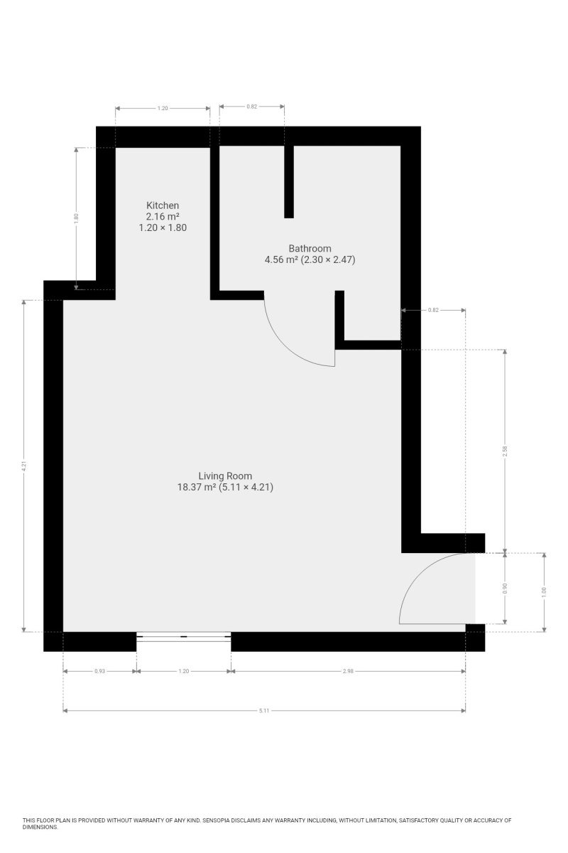
K dlouhodobému podnájmu nabízíme útulný suterénní byt o dispozici 1+kk v oblíbené lokalitě Praha 9 - Libeň. Byt o celkové výměře 25 m² se nachází v suterénu udržovaného bytového domu.

Byt je nabízen částečně vybavený, což dává možnost doladit si interiér podle vlastního vkusu. Kuchyně je vybavena lednicí, elektrickou troubou a mikrovlnnou troubou, varnou deskou a úložným prostorem. Obytná část disponuje barovým posezením a dále také dostatečným prostorem k vybavení sedací soupravou či postelí. Koupelna je vybavena vanou, umyvadlem, pračkou a toaletou.

V okolí domu je kompletní občanská vybavenost – supermarket Albert, restaurace, lékařská péče, pošta, sportovní vyžití. Pro volný čas a odpočinek jsou ideální blízké Thomayerovy sady, vzdálené jen pár minut chůze. Výbornou dopravní dostupnost zajišťují blízké zastávky tramvají a také nedaleká stanice metra B - Palmovka.

Byt je volný k nastěhování ihned.

Energetická třída: G (průkaz nedodán).

Parametry bytu

Cena
11 900 Kč /za měsíc
Poznámka k ceně
vratná jistota Kč, náklady na bydlení 3 349 Kč, poplatek za podnájem
Aktualizováno
21. 11. 2025
Adresa
Na Rokytce, Libeň - Praha 8
ID
N6969
Stavba
Cihlová
Stav objektu
Velmi dobrý
Vybaveno
Částečně
Typ objektu
Patrový
Lokalita objektu
Klidná část obce
Vlastnictví
Osobní
Užitná plocha
25 m2
Podlahová plocha
25 m2
Třída energetické náročnosti
G - Mimořádně nehospodárná
Elektřina
230V
Topení
Lokální elektrické
Doprava
Silnice, MHD, Autobus
Výtah

Kontaktovat makléře

Máte zájem o tento byt?

Tímto, v souladu s nařízením Evropského parlamentu a Rady (EU) 2016/679, v platném znění, prohlašuji, že mi je alespoň 16 let a uděluji tak svůj souhlas se zpracováním zadaných údajů (jméno, telefon, e-mail, ip adresa) společnosti B3 Technology, s.r.o., IČ: 07330600, se sídlem Novostavby 126/23, 435 11 Lom (správce dat), za účelem předání dotazu z tohoto formuláře Vámi vybranému inzerentovi a zpětného kontaktování mé osoby. Osobní údaje bude správce zpracovávat manuálně i automaticky přímo prostřednictvím svých zaměstnanců. Informace předané tímto formulářem budou uloženy v databázi správce maximálně po dobu 10 let. Odvolání souhlasu s uložením a zpracováním poskytnutých dat lze e-mailem na info@bydlisnami.cz. V případě podezření na neoprávněné použití Vámi poskytnutých údajů máte právo předat podnět k šetření Úřadu pro ochranu osobních údajů. Více informací
Chystáte se prodat nemovitost?
Pomůžeme Vám!

Inzerát si prohlédlo 6 lidí

Prodejce

Miloslava Kačerová

Miloslava Kačerová

Hlídací pes

Chcete dostávat emailem podobné nabídky pronájmu bytů 1+kk v Praze 8?

Podobné nemovitosti