Pronájem bytu 1+kk, Praha - Ruzyně, Stočesova, 32 m2

Stočesova, Praha, Ruzyně

18 000 Kč /za měsíc Získejte výhodnou HYPOTÉKU

(+ poplatky)

Doporučené firmy v Praze 6

Stěhovací služby

Výkup a prodej starého nábytku

Informace k bytu

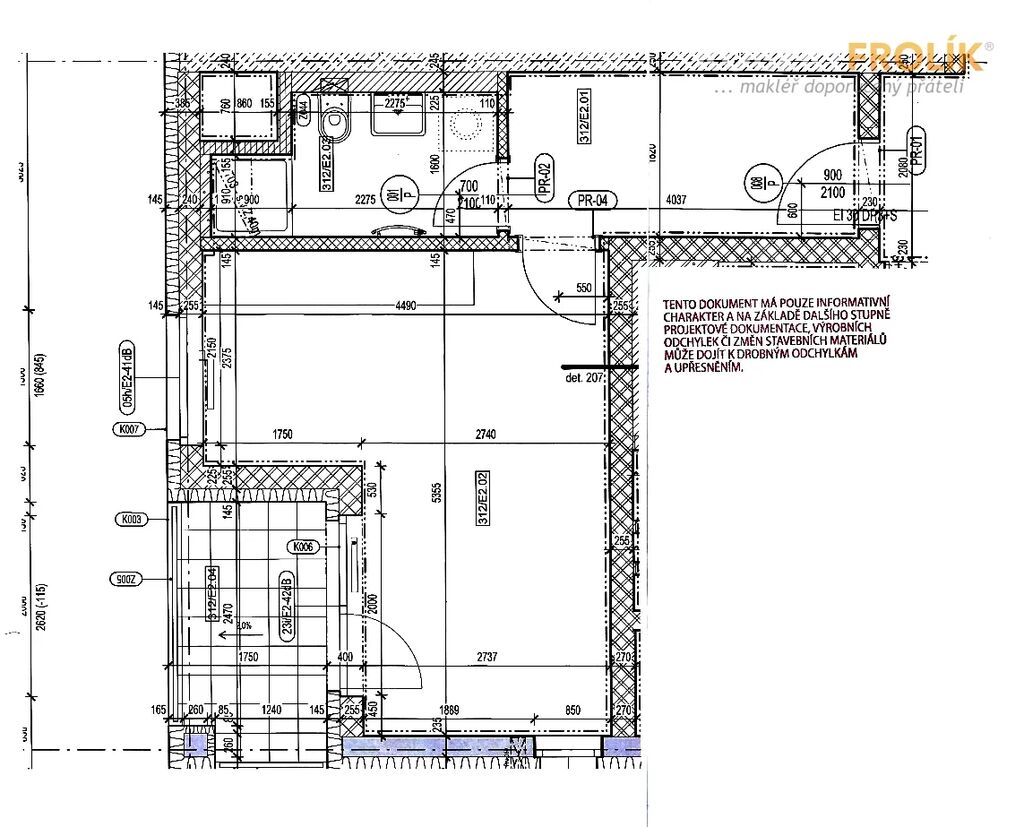
Jste singl (nebo pár) a hledáte pěkný nový byt? Přijďte se podívat na právě dokončované 1+kk s lodžií a garážovým stáním v projektu "Byty u Šárky", v ulici Stočesova, v Praze 6 - Ruzyni. Najdete ho ve 3. patře novostavby z roku 2025.

Byt má výměru cca 32 m2 + cca 5 m2 lodžii. Je celý otočený na západní stranu, směrem k letišti, takže z lodžie můžete u své ranní kávy sledovat třeba letadla. Okna jsou plastová s trojskly a mají elektrické předokenní žaluzie. Pokoj ve tvaru L bude vybavený kuchyňskou linkou s vestavěnými spotřebiči - viz vizualizace. Podlahy budou ve světlém dekoru. Po celé délce chodby bude velká vestavěná skříň s věšákem a botníkem. Koupelna je již dokončená - viz fotografie.

Kuchyně a skříň v chodbě bude hotová do konce ledna, takže byt bude k nastěhování od 1.2.2026. Garážové stání je volitelné, za příplatek. V domě je i společná kolárna a kočárkárna. Tu už budete mít v ceně.

Hned vedle domu je konečná tram, nedaleko je OC Šestka, o kousek níž do Prahy pak koupaliště Džbán a Divoká Šárka.

Projekt je postaven jako družstevní bydlení, jedná se tedy o podnájem.

Kromě podnájemného budete platit zálohy na služby 2.900 Kč/měs.. Pokud si vezmete i garáž, bude za 2.500 Kč/měs. + služby 300 Kč/měs. Elektřina bude převedena na Vás. Podnájemné + služby se hradí na 1 měsíc dopředu, jistota je 2x podnájemné, provize 1x podnájemné.

Byt bude volný od 1.2.2026.

PENB třída B.

Parametry bytu

Cena
18 000 Kč /za měsíc
Poznámka k ceně
+ poplatky
Náklady na bydlení
3 900
Aktualizováno
26. 11. 2025
Adresa
Stočesova, Praha, Ruzyně
ID
RF 0566
Stavba
Cihlová
Stav objektu
Novostavba
Patro
4. z 6
Vybaveno
Ne
Lokalita objektu
Okraj obce
Vlastnictví
Družstevní
Užitná plocha
32 m2
Podlahová plocha
37 m2
Třída energetické náročnosti
B - Velmi úsporná
Ukazatel energetické náročnosti
70 kWh/m2 za rok
Elektřina
230V
Plyn
Plynovod
Odpad
Veřejná kanalizace
Komunikace
Asfaltová
Telekomunikace
Internet
Doprava
Vlak, Dálnice, Silnice, MHD
Voda
Vodovod
Topné těleso
Radiátory
Zdroj topení
Centrální dálkové
Garáž
Lodžie
Výtah
Převod do OV

Kontaktovat makléře

Máte zájem o tento byt?

Tímto, v souladu s nařízením Evropského parlamentu a Rady (EU) 2016/679, v platném znění, prohlašuji, že mi je alespoň 16 let a uděluji tak svůj souhlas se zpracováním zadaných údajů (jméno, telefon, e-mail, ip adresa) společnosti B3 Technology, s.r.o., IČ: 07330600, se sídlem Novostavby 126/23, 435 11 Lom (správce dat), za účelem předání dotazu z tohoto formuláře Vámi vybranému inzerentovi a zpětného kontaktování mé osoby. Osobní údaje bude správce zpracovávat manuálně i automaticky přímo prostřednictvím svých zaměstnanců. Informace předané tímto formulářem budou uloženy v databázi správce maximálně po dobu 10 let. Odvolání souhlasu s uložením a zpracováním poskytnutých dat lze e-mailem na info@bydlisnami.cz. V případě podezření na neoprávněné použití Vámi poskytnutých údajů máte právo předat podnět k šetření Úřadu pro ochranu osobních údajů. Více informací
Chystáte se prodat nemovitost?
Pomůžeme Vám!

Inzerát si prohlédlo 2 lidí

Prodejce

Robert Frolík

Robert Frolík

Hlídací pes

Chcete dostávat emailem podobné nabídky pronájmu bytů 1+kk v Praze 6?

Podobné nemovitosti