Pronájem bytu 1+kk, Praha - Letňany, Pavla Beneše, 42 m2

Pavla Beneše, Praha, Letňany

17 000 Kč /za měsíc Získejte výhodnou HYPOTÉKU

(+3500,- služby a energie)

Doporučené firmy v Praze 9

Stěhovací služby

Výkup a prodej starého nábytku

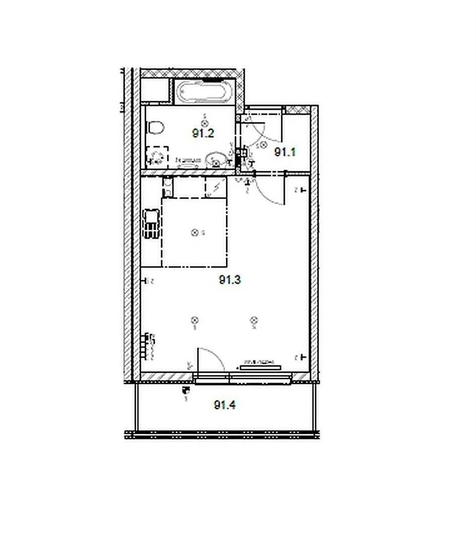
Informace k bytu

Pěkný světlý a tichý byt v novostavbě s velkou lodžií a garážovým stáním 1+kk 42 m2, Praha 9, Letňany, ul. Pavla Beneše. Byt se nachází se 4. patře residenční budovy s výtahem.

Vybavení - moderní kuchyňská linka se všemi elektrospotřebiči (myčka, varná deska, digestoř, lednice s mrazákem), v chodbě prostorná vestavěná skříň na míru. Ve všech oknech žaluzie. V koupelně je pračka, skříňka se zrcadlem, úložná skříňka pod umyvadlem. K bytu náleží garážové stání a prostorný zděný sklep 5 m2.

Příjemná lokalita nedaleko lesoparku Letňany, veškerá občanská vybavenost v blízkém okolí, nedaleko je i nákupní centrum OC Letňany, nebo metro C Letňany. PENB:C

Parametry bytu

Cena
17 000 Kč /za měsíc
Poznámka k ceně
+3500,- služby a energie
Aktualizováno
27. 11. 2025
Adresa
Pavla Beneše, Praha, Letňany
ID
N11892
Stavba
Cihlová
Stav objektu
Velmi dobrý
Patro
5.
Vybaveno
Ne
Vlastnictví
Osobní
Užitná plocha
42 m2
Třída energetické náročnosti
C - Úsporná
Telekomunikace
Internet, Kabelová televize
Balkon
Garáž
Sklep
Lodžie
Výtah

Kontaktovat makléře

Realitní kancelář

HX reality, s.r.o.

Revoluční 724/7, Praha 1

Chystáte se prodat nemovitost?
Pomůžeme Vám!

Máte zájem o tento byt?

Tímto, v souladu s nařízením Evropského parlamentu a Rady (EU) 2016/679, v platném znění, prohlašuji, že mi je alespoň 16 let a uděluji tak svůj souhlas se zpracováním zadaných údajů (jméno, telefon, e-mail, ip adresa) společnosti B3 Technology, s.r.o., IČ: 07330600, se sídlem Novostavby 126/23, 435 11 Lom (správce dat), za účelem předání dotazu z tohoto formuláře Vámi vybranému inzerentovi a zpětného kontaktování mé osoby. Osobní údaje bude správce zpracovávat manuálně i automaticky přímo prostřednictvím svých zaměstnanců. Informace předané tímto formulářem budou uloženy v databázi správce maximálně po dobu 10 let. Odvolání souhlasu s uložením a zpracováním poskytnutých dat lze e-mailem na info@bydlisnami.cz. V případě podezření na neoprávněné použití Vámi poskytnutých údajů máte právo předat podnět k šetření Úřadu pro ochranu osobních údajů. Více informací
Chystáte se prodat nemovitost?
Pomůžeme Vám!

Inzerát si prohlédlo 0 lidí

Prodejce

HX reality

HX reality

Hlídací pes

Chcete dostávat emailem podobné nabídky pronájmu bytů 1+kk v Praze 9?

Podobné nemovitosti