Prodej rodinného domu, Roudnice nad Labem, Dr. Slavíka, 300 m2

Dr. Slavíka, Roudnice nad Labem

14 990 000 Kč /za nemovitost HYPOTÉKA od 66 996 Kč /za měsíc
Doporučené firmy v Roudnici nad Labem

Okna a dveře

Rekonstrukce

Informace k domu

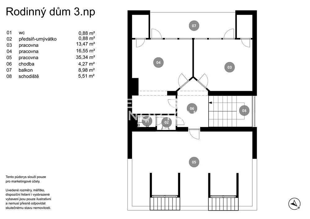
Nabízíme k prodeji prostorný rodinný dům o dispozici 6+1 se zahradou, situovaný v samotném centru Roudnice nad Labem. Nemovitost je v současné době využívána jako sídlo firmy, což dokládá její výbornou připravenost pro podnikání, kanceláře či poskytování služeb. Díky dispozičnímu řešení však dům zároveň nabízí plnohodnotné rodinné bydlení, nebo lze komfortně kombinovat bydlení a firemní zázemí v jednom objektu.


V přízemí domu se nachází garáž pro jedno vozidlo, dále vstupní hala, kde je možné umístění recepce. V přízemí je k dispozici spoustu úložného prostoru, dále také sauna a vstup na přilehlou zahradu. V prvním nadzemním podlaží naleznete prostornou kuchyň, velký obývací pokoj a zimní zahradu, ze které je také možnost vstoupit na zahradu. Ve 2. a 3.NP se nachází celkem 5 pokojů, které mohou být využity jako ložnice nebo kanceláře. Okna v celém domě jsou orientovány do ulice i do zahrady.


V domě je vytápění zařízeno pomocí plynového kotle. V místnostech jsou umístěny zátěžové koberce vhodné pro kancelářský provoz. Na každém patře se nachází samostatná toaleta a koupelna, což poskytuje velkou výhodu pro kombinované využití.


Rekonstrukce vnějších konstrukcí domu je z roku 2025. Na střechu se vztahuje záruka PLUS.


Dům se nachází v klidné části centra města, s výbornou občanskou vybaveností doslova na dosah – obchody, supermarket, restaurace, kavárny, školy i školky jsou v docházkové vzdálenosti. Město má skvělé dopravní spojení, dojezd do centra Prahy je přibližně 30 minut. Plánovaná rychlodráha navíc nabídne v budoucnu přímé spojení na Masarykovo nádraží za přibližně 19 minut, což významně zvýší komfort i hodnotu této lokality.


Dům nabízí velkou variabilitu využití a výjimečné umístění v rámci města.

Parametry domu

Cena
14 990 000 Kč /za nemovitost Spočítat hypotéku
Aktualizováno
6. 12. 2025
Adresa
Dr. Slavíka, Roudnice nad Labem
ID
532879
Stavba
Cihlová
Stav objektu
Dobrý
Vybaveno
Ne
Užitná plocha
300 m2
Plocha pozemku
225 m2
Plocha zahrady
124 m2
Třída energetické náročnosti
G - Mimořádně nehospodárná
Garáž
Sklep
Výtah
Parkování

Kontaktovat makléře

Máte zájem o tento dům?

Tímto, v souladu s nařízením Evropského parlamentu a Rady (EU) 2016/679, v platném znění, prohlašuji, že mi je alespoň 16 let a uděluji tak svůj souhlas se zpracováním zadaných údajů (jméno, telefon, e-mail, ip adresa) společnosti B3 Technology, s.r.o., IČ: 07330600, se sídlem Novostavby 126/23, 435 11 Lom (správce dat), za účelem předání dotazu z tohoto formuláře Vámi vybranému inzerentovi a zpětného kontaktování mé osoby. Osobní údaje bude správce zpracovávat manuálně i automaticky přímo prostřednictvím svých zaměstnanců. Informace předané tímto formulářem budou uloženy v databázi správce maximálně po dobu 10 let. Odvolání souhlasu s uložením a zpracováním poskytnutých dat lze e-mailem na info@bydlisnami.cz. V případě podezření na neoprávněné použití Vámi poskytnutých údajů máte právo předat podnět k šetření Úřadu pro ochranu osobních údajů. Více informací
Chystáte se prodat nemovitost?
Pomůžeme Vám!

Inzerát si prohlédlo 7 lidí

Prodejce

Adéla Bukovská - recepce

Adéla Bukovská - recepce

Hlídací pes

Chcete dostávat emailem podobné nabídky prodeje rodinných domů v Roudnici nad Labem?

Podobné nemovitosti