Pronájem bytu 2+kk, Praha - Staré Město, Na Perštýně, 73 m2 (ID: 2490312)

Na Perštýně, Praha, Staré Město

32 000 Kč /za měsíc Získejte výhodnou HYPOTÉKU

(Poplatky za služby a energie se hradí zvlášť.)

Doporučené firmy v Praze 1

Stěhovací služby

Výkup a prodej starého nábytku

Informace k bytu

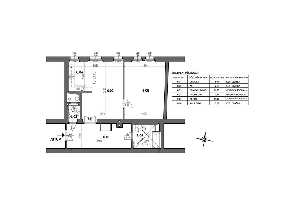
Reprezentativní prostorný byt po rekonstrukci o dispozici 2+kk, s obytnou plochou 73m2, je situovaný v 5.patře reprezentativní budovy s výtahem, v lukrativní lokalitě na Praze 1 Staré Město. Interiér bytu je nezařízený a nabízí velkolepé světlé pokoje s vysokými stropy, dispozičně se sestává ze vstupní chodby s dostatkem úložných prostor v podobě prostorných skříní, se vstupem do obývacího pokoje spojeného s moderní plně zařízenou kuchyní (sporák/trouba, lednice/mrazák, myčka, mikrovlnná trouba), dále navazuje vstup do světlé ložnice vybavené prostornou šatní skříní. Z chodby je vstup do koupelny s vanou, bidetem a toaletou, a další oddělené toalety. Podlahy tvoří kvalitní parkety a dlažba.

Prestižní bydlení v centru města Prahy, vzdálené jenom kousek od promenády u nábřeží Vltavy a historických památek (Národní divadlo, Galerie Mánes, GoetheInstitut, plác Žofín, Tančící dům, romantický Střelecký ostrov, historická část Malá stana a mnoho dalšího), které umožňuje si vychutnat krásná pražská zákoutí. Komfortní bydlení poskytují i množství supermarketů (nákupní centrum Quadrio, Tesco, Albert) a různorodých obchůdků, butiků s nákupní zónou v srdci Prahy. V pěší dostupností se nachází i malebná část park Petřín, Kampa a Malá Strana, Staroměstské náměstí, Václavské náměstí. Lokalita poskytuje sociální vyžití divadlo, koncerty, plesy, a další kulturní akce.
Výborná dopravní dostupnost metrem (Můstek linky A;B/Národní Třída linka B) anebo tramvají (Národní Třída) do veškerých částí Prahy.

Poplatky za služby 1250, Kč/osobu/měsíčně a energie (elektřina a plyn) hradí nájemce přímo dodavatelům. Internet není v ceně, hradí nájemce přímo poskytovali služby. Vratná kauce 2 nájmy. Provize RK.

K dispozici od února 2026. Prohlídky možné po dohodě.

Parametry bytu

Cena
32 000 Kč /za měsíc
Poznámka k ceně
Poplatky za služby a energie se hradí zvlášť.
Aktualizováno
3. 12. 2025
Adresa
Na Perštýně, Praha, Staré Město
ID
970288
Stavba
Smíšená
Stav objektu
Velmi dobrý
Patro
6.
Vybaveno
Ne
Vlastnictví
Osobní
Užitná plocha
73 m2
Podlahová plocha
73 m2
Třída energetické náročnosti
G - Mimořádně nehospodárná
Elektřina
230V
Plyn
Plynovod
Doprava
Silnice, MHD
Voda
Vodovod
Výtah

Kontaktovat makléře

Máte zájem o tento byt?

Tímto, v souladu s nařízením Evropského parlamentu a Rady (EU) 2016/679, v platném znění, prohlašuji, že mi je alespoň 16 let a uděluji tak svůj souhlas se zpracováním zadaných údajů (jméno, telefon, e-mail, ip adresa) společnosti B3 Technology, s.r.o., IČ: 07330600, se sídlem Novostavby 126/23, 435 11 Lom (správce dat), za účelem předání dotazu z tohoto formuláře Vámi vybranému inzerentovi a zpětného kontaktování mé osoby. Osobní údaje bude správce zpracovávat manuálně i automaticky přímo prostřednictvím svých zaměstnanců. Informace předané tímto formulářem budou uloženy v databázi správce maximálně po dobu 10 let. Odvolání souhlasu s uložením a zpracováním poskytnutých dat lze e-mailem na info@bydlisnami.cz. V případě podezření na neoprávněné použití Vámi poskytnutých údajů máte právo předat podnět k šetření Úřadu pro ochranu osobních údajů. Více informací
Chystáte se prodat nemovitost?
Pomůžeme Vám!

Inzerát si prohlédlo 0 lidí

Prodejce

Eva Cinculová

Eva Cinculová

Hlídací pes

Chcete dostávat emailem podobné nabídky pronájmu bytů 2+kk v Praze 1?

Podobné nemovitosti