Pronájem obchodního prostoru, Benátky nad Jizerou - Benátky nad Jizerou I, Husovo náměstí, 161 m2

Husovo náměstí, Benátky nad Jizerou I

45 000 Kč /za měsíc Získejte výhodnou HYPOTÉKU
Doporučené firmy v Benátkách nad Jizerou

Informace k nemovitosti

Pronájem obchod a služby v Benátkách nad Jizerou, ul. Husovo

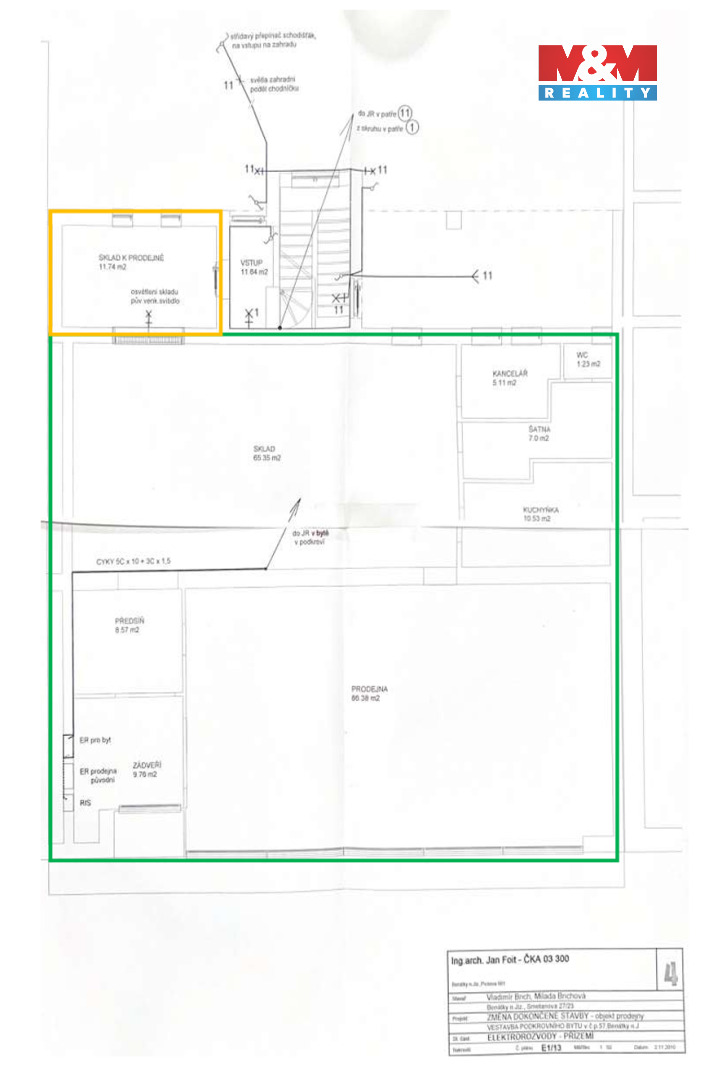
Nabízíme k pronájmu prostorný komerční objekt v centru obce Benátky nad Jizerou, katastrální území Nové Benátky. Tento prostor se nachází v 1. nadzemním podlaží cihlové stavby a nabízí celkem 9 místností o užitné ploše 161 m². Objekt je v dobrém stavu a je ideální pro různé typy obchodních a služebních aktivit, od kanceláří, dětského centra, prodejnu či kavárnu. Díky své strategické poloze v centru obce je dobře dostupný a nabízí výbornou viditelnost. V blízkosti je základní škola, která zaručuje velkou fluktuaci místních obyvatel. Využijte této jedinečné příležitosti pro rozšíření nebo založení vašeho podnikání. Pro více informací a prohlídku nás neváhejte kontaktovat.

Parametry nemovitosti

Cena
45 000 Kč /za měsíc
Aktualizováno
11. 12. 2025
Adresa
Husovo náměstí, Benátky nad Jizerou I
ID
927294
Stavba
Cihlová
Stav objektu
Dobrý
Vybaveno
Ne
Lokalita objektu
Centrum obce
Vlastnictví
Osobní
Užitná plocha
161 m2

Kontaktovat makléře

Realitní kancelář

Logo M&M reality

M&M reality

ulice Krakovská 583/9, Praha

Chystáte se prodat nemovitost?
Pomůžeme Vám!

Máte zájem o tuto nemovistost?

Tímto, v souladu s nařízením Evropského parlamentu a Rady (EU) 2016/679, v platném znění, prohlašuji, že mi je alespoň 16 let a uděluji tak svůj souhlas se zpracováním zadaných údajů (jméno, telefon, e-mail, ip adresa) společnosti B3 Technology, s.r.o., IČ: 07330600, se sídlem Novostavby 126/23, 435 11 Lom (správce dat), za účelem předání dotazu z tohoto formuláře Vámi vybranému inzerentovi a zpětného kontaktování mé osoby. Osobní údaje bude správce zpracovávat manuálně i automaticky přímo prostřednictvím svých zaměstnanců. Informace předané tímto formulářem budou uloženy v databázi správce maximálně po dobu 10 let. Odvolání souhlasu s uložením a zpracováním poskytnutých dat lze e-mailem na info@bydlisnami.cz. V případě podezření na neoprávněné použití Vámi poskytnutých údajů máte právo předat podnět k šetření Úřadu pro ochranu osobních údajů. Více informací
Chystáte se prodat nemovitost?
Pomůžeme Vám!

Inzerát si prohlédlo 5 lidí

Prodejce

Ondřej Batěk

Ondřej Batěk

Hlídací pes

Chcete dostávat emailem podobné nabídky pronájmu obchodních prostor v Benátkách nad Jizerou?

Podobné nemovitosti