Pronájem bytu 2+kk, Pohořelice, 47 m2

Pohořelice

17 900 Kč /za měsíc Získejte výhodnou HYPOTÉKU

(+ 3.600, Kč zálohy na služby, + vratná kauce + provize RK)

Doporučené firmy v Pohořelicích

Informace k bytu

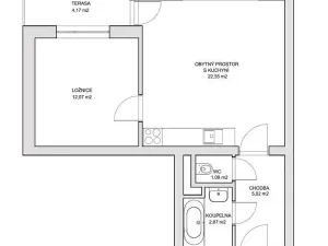
Byt dispozice 2+kk, celková výměra 47,28 m2 + venkovní parkovací stání 13 m2. Nabízený byt se nachází ve 2. NP s výtahem. Součástí je balkon a sklep.
Tato nabídka je určená pro náročné zájemce jenž požadují kompletní zařízení.
Dispozice a výměry bytu:
obývací pokoj s kuchyňským koutem (22,5 m2), vybavení: kuchyňská linka, kombinovaná lednice s mrazákem, elektrická vestavěná trouba, sklokeramická varná deska, digestoř s vývodem do komína, myčka na nádobí, jídelní stůl, 4x židle, sedací souprava, skříňka pod televizi.
ložnice (12,07 m2) vybavena manželskou postelí, vestavěnou skříní, 2x noční stolek.
koupelna ( 2,91 m2) osazená vanou, umyvadlo, automatická pračka.
samostatné WC (1,13 m2).
vstupní chodba (4,88 m2) s věšákem, botníkem, zrcadlem a lavicí.
balkon ( 3,16 m2).
sklep (2,04 m).
Na podlaze v pokojích jsou instalovány laminátové materiály. V koupelně a na WC keramické obklady.
Plastová okna jsou osazeny venkovními elektricky ovládanými žaluziemi.
Město Pohořelice nabízí veškerou občanskou vybavenost. Pár kroků od domu je nákupní centrum (Lídl). V okolí domu je dětské hřiště a spousta ploch pro volnočasové využití.
Byt je koncipován pro pár, popřípadě + jedno díte.
Majitel od nájemníka požaduje uzavřenou osobní odpovědnostní pojistku.
Po domluvě s uvedeným makléřem vám rádi zprostředkujeme prohlídku bytu.

Parametry bytu

Cena
17 900 Kč /za měsíc
Poznámka k ceně
+ 3.600, Kč zálohy na služby, + vratná kauce + provize RK
Aktualizováno
4. 12. 2025
Adresa
Pohořelice
ID
971746
Stavba
Cihlová
Stav objektu
Novostavba
Patro
2. z 5
Vybaveno
Ano
Vlastnictví
Osobní
Užitná plocha
47 m2
Podlahová plocha
45 m2
Třída energetické náročnosti
B - Velmi úsporná
Elektřina
230V
Plyn
Plynovod
Komunikace
Asfaltová
Doprava
Silnice, Autobus
Voda
Vodovod
Topné těleso
Radiátory
Zdroj topení
Plynový kotel
Balkon
Sklep
Výtah
Parkování

Kontaktovat makléře

Realitní kancelář

Minimal reality

Štefánikova 131/61, Brno

Chystáte se prodat nemovitost?
Pomůžeme Vám!

Máte zájem o tento byt?

Tímto, v souladu s nařízením Evropského parlamentu a Rady (EU) 2016/679, v platném znění, prohlašuji, že mi je alespoň 16 let a uděluji tak svůj souhlas se zpracováním zadaných údajů (jméno, telefon, e-mail, ip adresa) společnosti B3 Technology, s.r.o., IČ: 07330600, se sídlem Novostavby 126/23, 435 11 Lom (správce dat), za účelem předání dotazu z tohoto formuláře Vámi vybranému inzerentovi a zpětného kontaktování mé osoby. Osobní údaje bude správce zpracovávat manuálně i automaticky přímo prostřednictvím svých zaměstnanců. Informace předané tímto formulářem budou uloženy v databázi správce maximálně po dobu 10 let. Odvolání souhlasu s uložením a zpracováním poskytnutých dat lze e-mailem na info@bydlisnami.cz. V případě podezření na neoprávněné použití Vámi poskytnutých údajů máte právo předat podnět k šetření Úřadu pro ochranu osobních údajů. Více informací
Chystáte se prodat nemovitost?
Pomůžeme Vám!

Inzerát si prohlédlo 0 lidí

Prodejce

Radek Mazura

Radek Mazura

Hlídací pes

Chcete dostávat emailem podobné nabídky pronájmu bytů 2+kk v Pohořelicích (okr. Brno-venkov)?

Podobné nemovitosti