Pronájem bytu 2+kk, Praha - Vinohrady, 49 m2 (ID: 2492284)

Praha, Vinohrady

Cena na vyžádání /za měsíc Získejte výhodnou HYPOTÉKU
Doporučené firmy v Praze 1

Stěhovací služby

Výkup a prodej starého nábytku

Informace k bytu

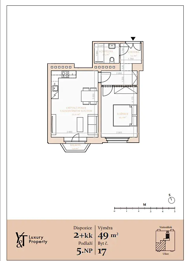
Nabízíme k pronájmu světlý byt 2+kk o velikosti 48,7 m² s balkonem ve zrekonstruovaném historizujícím činžovním domě s prvky neorenezance a rané secese z roku 1890 v noblesní lokalitě Prahy. Tento byt se nachází v 5. nadzemním podlaží s orientací do ulice a je vybaven hotovou koupelnou a kuchyňským koutem.

Celý dům prošel v roce 2025 kompletní rekonstrukcí – byl instalován nový výtah, kompletně vyměněny rozvody elektřiny a topení, zrenovována okna a dveře a opravená fasáda z ulice i dvora. Bytové jednotky jsou provedeny ve vysokém standardu, s důrazem na kvalitu použitých materiálů a designových prvků. Součástí vybavení jsou umyvadla značky Mereo, vodovodní baterie Vigour a toalety Vitra.

Interiér je navržen v moderním skandinávském stylu s důrazem na světlé barvy, přírodní materiály a precizní zpracování. Dubové parkety v rybinovém vzoru, velkoformátová dlažba s betonovým vzhledem a šedo-zelené truhlářské detaily podtrhují klidnou eleganci severského designu.

Tato elegantní část města nabízí klidné a příjemné prostředí s bohatými možnostmi kulturního i společenského vyžití. V blízkosti domu se nachází park s kavárnou – ideální místo pro odpočinek i sportovní aktivity. Jen pár minut chůze odsud najdete kino, divadlo a širokou nabídku útulných kaváren, stylových bister a vyhlášených restaurací, které dotvářejí jedinečnou atmosféru této oblíbené čtvrti.

Dopravní dostupnost je vynikající – tramvajová i autobusová zastávka se nachází jen několik minut chůze a zajišťuje rychlé spojení do centra Prahy.

K nastěhování od února 2026.

Energetická třída B.

*Některé z použitých fotografií jsou vizualizace.

Parametry bytu

Cena
Cena na vyžádání
Aktualizováno
31. 1. 2026
Adresa
Praha, Vinohrady
Stavba
Cihlová
Stav objektu
Po rekonstrukci
Patro
5.
Vlastnictví
Osobní
Užitná plocha
49 m2
Třída energetické náročnosti
B - Velmi úsporná
Balkon
Výtah

Kontaktovat makléře

Máte zájem o tento byt?

Tímto, v souladu s nařízením Evropského parlamentu a Rady (EU) 2016/679, v platném znění, prohlašuji, že mi je alespoň 16 let a uděluji tak svůj souhlas se zpracováním zadaných údajů (jméno, telefon, e-mail, ip adresa) společnosti B3 Technology, s.r.o., IČ: 07330600, se sídlem Novostavby 126/23, 435 11 Lom (správce dat), za účelem předání dotazu z tohoto formuláře Vámi vybranému inzerentovi a zpětného kontaktování mé osoby. Osobní údaje bude správce zpracovávat manuálně i automaticky přímo prostřednictvím svých zaměstnanců. Informace předané tímto formulářem budou uloženy v databázi správce maximálně po dobu 10 let. Odvolání souhlasu s uložením a zpracováním poskytnutých dat lze e-mailem na info@bydlisnami.cz. V případě podezření na neoprávněné použití Vámi poskytnutých údajů máte právo předat podnět k šetření Úřadu pro ochranu osobních údajů. Více informací
Chystáte se prodat nemovitost?
Pomůžeme Vám!

Inzerát si prohlédlo 11 lidí

Prodejce

Lukáš Hájek

Lukáš Hájek

Hlídací pes

Chcete dostávat emailem podobné nabídky pronájmu bytů 2+kk v Praze 1?

Podobné nemovitosti