Prodej rodinného domu, České Budějovice, České Vrbné, 117 m2 (ID: 2492461)

České Vrbné, České Budějovice 2

9 820 000 Kč /za nemovitost HYPOTÉKA od 43 889 Kč /za měsíc
Doporučené firmy v Českých Budějovicích

Informace k domu

Ve výhradním zastoupení vlastníka nabízíme je koupi koncový řadový rodinný dům situovaný v uzavřené lokalitě komunitního bydlení v městské části České Vrbné v Českých Budějovicích. Objekt je stavebně oddělná koncová část troj-domu, výstavba / kolaudace v roce 2006 která nebyla dosud obydlena, zděná konstrukce, objekt není podsklepený a má dvě nadzemní obytná podlaží. Umístění domu v klidné lokalitě -uzavřený oplocený soubor 10ti rodinných domů s vlastní příjezdovou komunikací.
Tento rodinný dům je ideální volbou pro ty, kteří hledají bydlení v klidné bezpečné zástavbě v rámci Českých Budějovic a nechtějí řešit neustálé projíždění skrz ucpané město směr Písek / Praha.
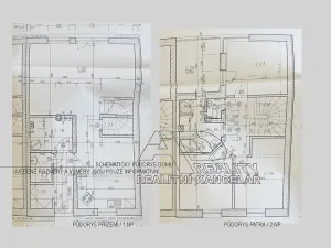
Dispozice a rozdělení objektu RD:
Přízemí (1.NP): zádveří a chodba [4,00m2], obývací pokoj včetně schodiště [31,70m2] s přímým vstupem na zahradu, kuchyně s jídelnou [17m2], šatna [2m2], WC [2,50m2] technická místnost / komora [5,50m2], komora pod schody [1,90m2]. Podlahová plocha podlaží [65m2]. Do patra pak vede z obývacího pokoje interiérové schodiště s dřevěným obkladem.
Patro (2.NP): hala se schodištěm [5,40m2], ložnice [12,70m2] s přístupem na terasu [9,10m2], dětský pokoj [12,60m2], dětský pokoj [12m2], koupelna s vanou i WC [7,40m2] a samostatné WC [1,40m2]. Podlahová plocha podlaží [52m2] + terasa [9,10m2]
Inženýrské sítě: přípojka obecní vodovod, přípojka obecní kanalizace, přípojka zemní plyn, elektrika EL 220V/EL 380V, ústřední plynové topení.
Energetická náročnost budovy – [G] (aktuální hodnota bude doložena v rámci nově zpracovaného energetického auditu).
Bilance ploch:
Zastavěná plocha celkem [83m2], nezastavěné plochy [87m2], pozemky (podle KN) celkem [170m2]. Stavba je umístěna na pozemcích obdélníkového tvaru o rozměru cca 7,3m x 23,5m o celkové výměře [170m2] včetně zastavěné plochy. Zahrada (nezastavěné pozemky) za domem jsou zatravněné, oplocené. K domu patří zatravněná předzahrádka [22m2] ze které je vstup do domu.
Přístup / příjezd: Vjezd do oploceného areálu z veřejné komunikace (z ulice). Součástí prodeje domu je prodej podílu na přístupové cestě včetně umístění parkovacích míst, příjezd je možný 24/7 automatickou branou na dálkové ovládání. Komunikace vede až k domu, parkování (2x kryté parkovací místo) je možné na vyhrazených stáních v rámci areálu.
Vlastnictví: Uvedené pozemky o celkové výměře [170m2] a rodinný dům – vlastnictví zapsáno v katastru. Dále pak spoluvlastnický podíl ve výši 1/10 na přístupových komunikacích – spoluvlastnictví zapsáno v katastru.
Financování: Koupi nemovitosti lze financovat hypotékou či stavebním spořením.
Veřejná doprava: Kompletní občanská vybavenost a služby včetně MHD v rámci Českých Budějovic, zastávka MHD ve vzdálenosti cca 230m.
Aktuální cena: 9.820.000,-Kč je kompletní cenou včetně provize RK a majetkoprávního servisu spojeného s koupí nemovitosti.
Na nemovitosti neváznou žádná zástavní práva či exekuce, či jiná práva třetích osob.
Pro bližší informace a termíny prohlídky volejte makléře (Jindřich DVOŘÁK, Dipl.Tech.).
Nemovitost je nabízena výhradně v nabídce realitní kanceláře AD-REALITY České Budějovice

Parametry domu

Cena
9 820 000 Kč /za nemovitost Spočítat hypotéku
Aktualizováno
5. 12. 2025
Adresa
České Vrbné, České Budějovice 2
ID
AD-2741-2025
Stavba
Cihlová
Stav objektu
Novostavba
Druh objektu
Rohový
Lokalita objektu
Klidná část obce
Užitná plocha
117 m2
Zastavěná plocha
83 m2
Plocha pozemku
170 m2
Plocha zahrady
87 m2
Třída energetické náročnosti
G - Mimořádně nehospodárná
Elektřina
230V
Plyn
Plynovod
Odpad
Veřejná kanalizace
Komunikace
Dlážděná, Asfaltová
Telekomunikace
Internet
Doprava
Vlak, Dálnice, Silnice, MHD, Autobus
Voda
Vodovod
Topné těleso
Radiátory
Zdroj topení
Plynový kondenzační kotel
Zdroj teplé vody
Plynový kotel
Sklep
Bezbarierový přístup
Parkování

Kontaktovat makléře

Realitní kancelář

AD reality CB

Dr. Stejskala 108/7, České Budějovice

Chystáte se prodat nemovitost?
Pomůžeme Vám!

Máte zájem o tento dům?

Tímto, v souladu s nařízením Evropského parlamentu a Rady (EU) 2016/679, v platném znění, prohlašuji, že mi je alespoň 16 let a uděluji tak svůj souhlas se zpracováním zadaných údajů (jméno, telefon, e-mail, ip adresa) společnosti B3 Technology, s.r.o., IČ: 07330600, se sídlem Novostavby 126/23, 435 11 Lom (správce dat), za účelem předání dotazu z tohoto formuláře Vámi vybranému inzerentovi a zpětného kontaktování mé osoby. Osobní údaje bude správce zpracovávat manuálně i automaticky přímo prostřednictvím svých zaměstnanců. Informace předané tímto formulářem budou uloženy v databázi správce maximálně po dobu 10 let. Odvolání souhlasu s uložením a zpracováním poskytnutých dat lze e-mailem na info@bydlisnami.cz. V případě podezření na neoprávněné použití Vámi poskytnutých údajů máte právo předat podnět k šetření Úřadu pro ochranu osobních údajů. Více informací
Chystáte se prodat nemovitost?
Pomůžeme Vám!

Inzerát si prohlédlo 0 lidí

Prodejce

Jindřich DVOŘÁK, Dipl.Tech.

Jindřich DVOŘÁK, Dipl.Tech.

Hlídací pes

Chcete dostávat emailem podobné nabídky prodeje rodinných domů v Českých Budějovicích?

Podobné nemovitosti