Pronájem obchodního prostoru, Plzeň, Papírnická, 168 m2

Papírnická, Plzeň, Východní Předměstí

Prodáno
55 000 Kč /za měsíc Získejte výhodnou HYPOTÉKU

(Cena je bez DPH, k ceně budou přičteny ještě měsíčně energie a služby.)

Doporučené firmy v Plzni

Podlahy

Stěhovací služby

Informace k nemovitosti

Naše společnost BC Real a.s. dokončila jako developer na konci roku 2019 stavbu bytového domu na adrese Papírnická 10, Plzeň. Součástí bytového domu jsou i nebytové jednotky. Předmětem pronájmu je nebytová jednotka umístěná v 1.P.P. na jižní straně domu orientovaná směrem ke staré papírně. Nebytová jednotka byla od počátku tj. zpracování architektonické studie koncipovaná jako bistro s pekárnou.
Již od počátku návrhu provozu bistra jsme spolupracovali s paní Kateřinou Frágnerovou, která jako profesionál v oboru a gastro byla naší konzultantkou a spoluautorkou záměru. Snahou bylo, aby byl podnik od počátku správně nastaven svým gastro zaměřením, cílové klientele a především místu ve kterém je realizován.
Poloha nebytové jednotky má velký potencionál vzhledem k velké frekvenci lidí, kteří prochází z městské části Slovany směrem na Doudlevce nebo využívají spodní cyklostezku podél řeky. Místo je doslova křižovatka pěších tras, která je frekventovaná i o víkendu. V místě je řada firem, úřadů, budova pojišťovny Kooperativa i naše nové firemní sídlo umístěné rovněž v objektu bytového domu Papírnická 10. V současné době je v okolí velice omezená možnost stravování. Další velký potenciál je budoucí okolní nová výstavba v areálu papírny. Naše společnost BC Real realizuje záměr výstavby bytů v areálu staré Papírny, kde bude v příštích letech realizováno cca 2000 bytů.
Vzhledem k tomu, že byl záměr připravován jako rodinná investice, tak se od počátku spolupracovalo s profesionály. K návrhu interiéru byla přizvána Ing. arch. Tereza Nová, která má zkušenosti s podobnými projekty.

Velkou výhodou tohoto prostoru je to, že už do prostorů nemusíte investovat další peníze a složitě vymýšlet technická řešení. Objekt je maximálně technicky promyšlený a vybavený, že své podnikání můžete rozjet naplno ihned po koupi a tak i začít vydělávat okamžitě.

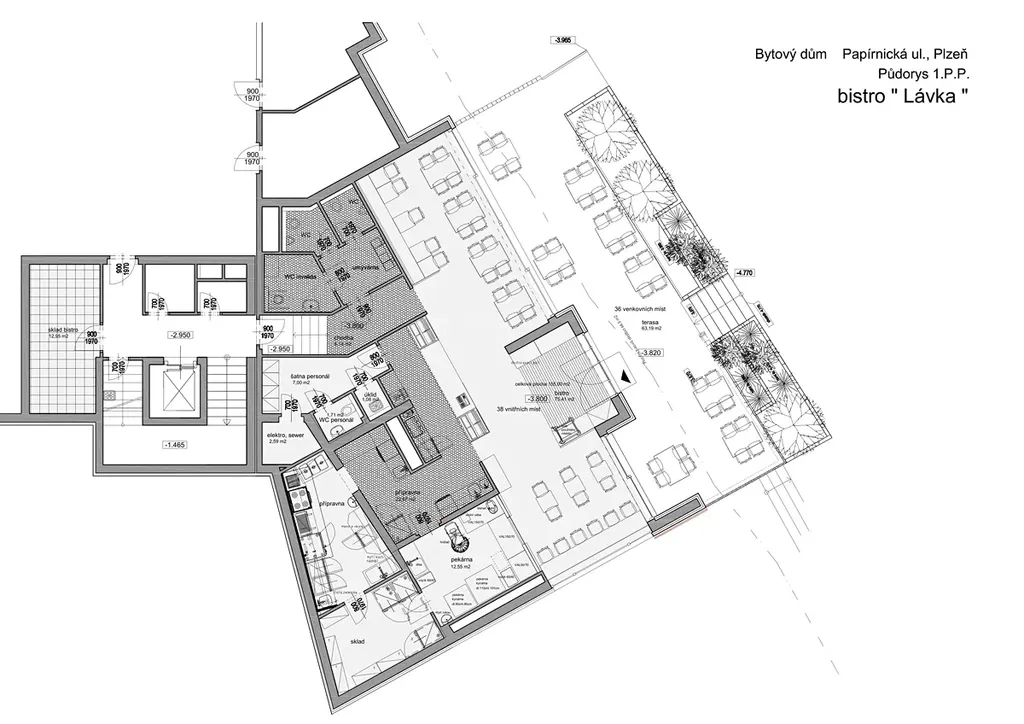
Popis provozu ( dispozice )
Vstup do nebytové jednotky je přes venkovní terasu, která je přímo napojena na pěší chodník. Venkovní terasa má kapacitu cca 36 venkovních míst. V horní části je terasa připojena na chodník bezbariérově a proti vstupním dveřím do nebytové jednotky je terasa připojena k chodníku předsazeným schodištěm. Zásobování je možné přímo z ulice přes vstupní dveře nebo přes zadní dveře vedoucí do halové garáže bytového domu. Nebytový prostor je napojen zadním vstupem do schodiště bytového domu v 1. podzemním podlaží. Dle potřeby je možné zadní vstup ponechat v provozní době otevřený, aby si mohli rezidenti bydlící v bytovém domu přímo projít „ suchou nohou “ do nebytové jednotky zadním vchodem.
Vchodem z ulice je vstup do hlavní komerční plochy ( sezení ) cca 66,30 m2. Tato plocha je rozdělena na dvě možné plochy sezení. První sezení blíže průchodu pod domem bylo v návrhu uvažováno jako zvýšené barové sezení s kapacitou cca 14 míst. Zadní sezení blíže záchodům bylo v návrhu interiéru uvažováno jako klasické sezení s kapacitou 25 míst. Ve vstupní zóně byl uvažován dochucovací pult, šatní tyč s ramínky a box na odložení použitého nádobí.
Proti vstupním dveřím byl navržen obslužný pult s kasou, skleněnými vitrínami atd. V zápultí bylo uvažováno s umístěním pípy na točené pivo a kávovar. Provozní zázemí se skládá z přední přípravny navazující na obslužný pult a zadní kuchyně. Do hlavního sezení byla orientována i pekárna, kde se uvažovalo ponechat provoz otevřený směrem do sezení s oddělením skleněnou příčkou navazující na spodní pevnou stěnu. V zadní části pekárny a kuchyně navazuje sklad.
V zápultí provozu je vchod do zázemí personálu šatna, wc personál, úklidová komora, technická místnost s rozvaděčem elektro a měření a regulace.
Z hlavního sezení navazuje otevřená chodba s předsazeným schodištěm vedoucím ke schodišti s výtahem do úrovně 1. podzemního podlaží. Z této podesty před výtahem je vstup do halové garáže bytového domu a zároveň i vstup do zadního skladu, který je součástí nebytové jednotky. Vnitřní chodbou v nebytové jednotce je vstup do sociálního zázemí pro návštěvníky. Ze společné umývárny je vstup do prvního WC s pisoárem a mísou ( muži + ženy ), dále do druhého WC s pisoárem a mísou ( muži + ženy ) a třetího WC s mísou ( ženy + invalida + přebalovací pult ).

Parametry nemovitosti

Stav
Prodáno
Cena
55 000 Kč /za měsíc
Poznámka k ceně
Cena je bez DPH, k ceně budou přičteny ještě měsíčně energie a služby.
Aktualizováno
10. 12. 2025
Adresa
Papírnická, Plzeň, Východní Předměstí
Stavba
Skeletová
Stav objektu
Velmi dobrý
Patro
1.
Vybaveno
Částečně
Lokalita objektu
Centrum obce
Užitná plocha
168 m2
Plocha zahrady
99 m2
Třída energetické náročnosti
B - Velmi úsporná
Plyn
Plynovod
Odpad
Veřejná kanalizace
Komunikace
Asfaltová
Telekomunikace
Telefon, Internet
Doprava
Vlak, Silnice, MHD
Voda
Vodovod
Topné těleso
Podlahové vytápění
Bezbarierový přístup

Kontaktovat makléře

Realitní kancelář

BC Real, a.s.

Papírnická 2809/10, Plzeň

Chystáte se prodat nemovitost?
Pomůžeme Vám!

Máte zájem o tuto nemovistost?

Tímto, v souladu s nařízením Evropského parlamentu a Rady (EU) 2016/679, v platném znění, prohlašuji, že mi je alespoň 16 let a uděluji tak svůj souhlas se zpracováním zadaných údajů (jméno, telefon, e-mail, ip adresa) společnosti B3 Technology, s.r.o., IČ: 07330600, se sídlem Novostavby 126/23, 435 11 Lom (správce dat), za účelem předání dotazu z tohoto formuláře Vámi vybranému inzerentovi a zpětného kontaktování mé osoby. Osobní údaje bude správce zpracovávat manuálně i automaticky přímo prostřednictvím svých zaměstnanců. Informace předané tímto formulářem budou uloženy v databázi správce maximálně po dobu 10 let. Odvolání souhlasu s uložením a zpracováním poskytnutých dat lze e-mailem na info@bydlisnami.cz. V případě podezření na neoprávněné použití Vámi poskytnutých údajů máte právo předat podnět k šetření Úřadu pro ochranu osobních údajů. Více informací
Chystáte se prodat nemovitost?
Pomůžeme Vám!

Inzerát si prohlédlo 0 lidí

Prodejce

Lenka Nová1

Lenka Nová1

Hlídací pes

Chcete dostávat emailem podobné nabídky pronájmu obchodních prostor v Plzni?

Podobné nemovitosti