Pronájem bytu 1+kk, Praha - Uhříněves, Ke kříži, 33 m2

Ke kříži, Uhříněves - Praha 22

16 000 Kč /za měsíc Získejte výhodnou HYPOTÉKU

(vratná jistota, náklady na bydlení 3.400 Kč/měsíc vč. elektřiny, poplatek za podnájem)

Doporučené firmy v Praze 10

Stěhovací služby

Výkup a prodej starého nábytku

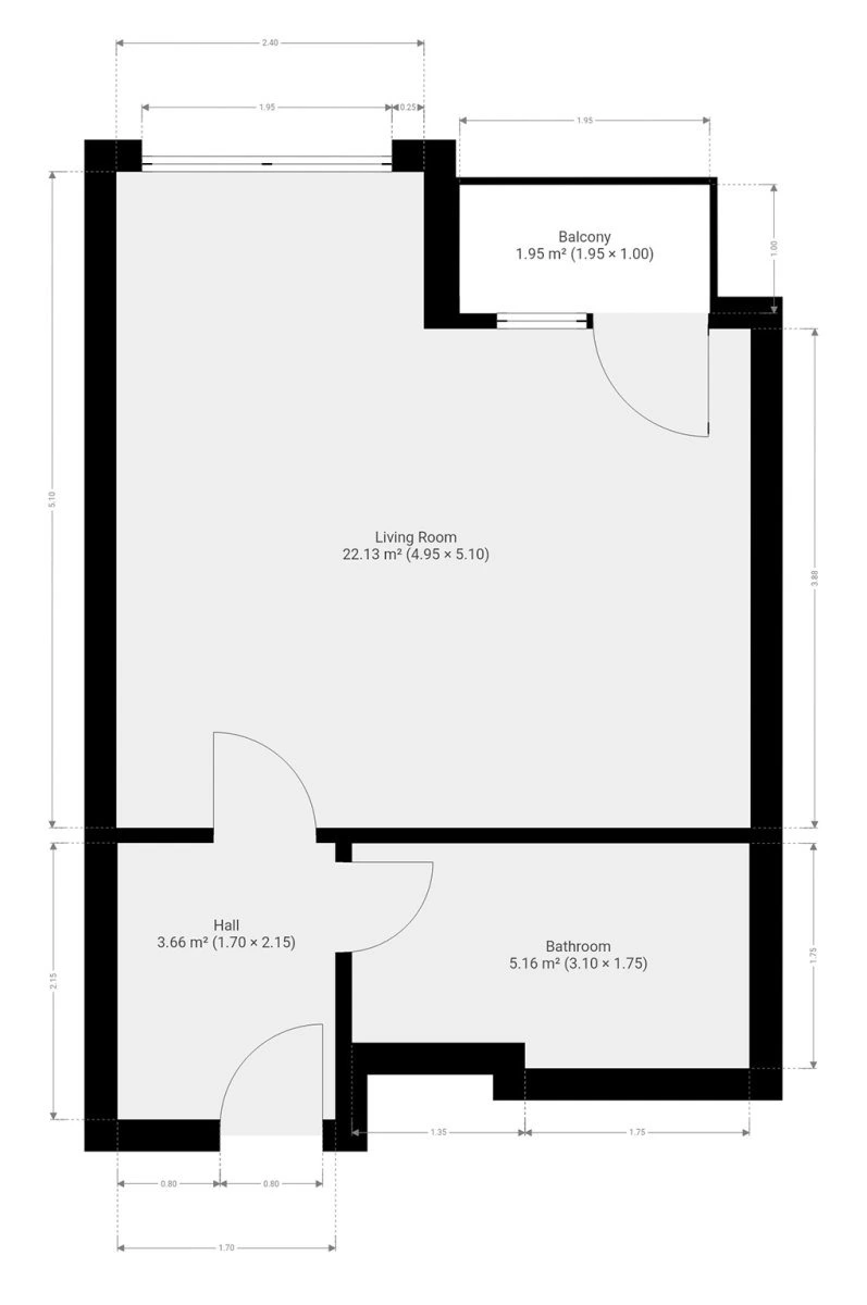
Informace k bytu

K dlouhodobému podnájmu nabízíme moderní byt o dispozici 1+kk v oblíbené lokalitě Praha - Uhříněves. Byt s rekuperací o celkové výměře 33 m2 se nachází v 5. podlaží novostavby s výtahem. K bytu patří lodžie. V rámci domu je možné využít kočárkárnu/kolárnu. V bytě doposud nikdo nebydlel, budete tak první podnájemníci.

Byt se nabízí částečně vybavený. Kuchyně disponuje lednicí, myčkou, elektrickou troubou, indukční deskou, mikrovlnnou troubou a digestoří. Obývací část je vybavena jídelním stolem s židlemi a skříní. Další skříň nalezneme v předsíni, odkud se vchází do koupelny. V koupelně je vana , umyvadlo, toaleta a pračka.

V okolí domu najdeme veškerou občanskou vybavenost - restaurace, supermarket Billa, lékaře, lékárnu atd. Hned u domu se nachází autobusová zastávka, odkud jezdí autobusy k metu "C" Háje a "A" Depo Hostivař. Pouhých 10 minut chůze od domu je vlakové nádraží, odkud se pohodlně dostanete do centra Prahy.

Majitel preferuje zájemce bez domácích mazlíčků.
Byt je volný k nastěhování od 1. 3. 2026.

Byt pronajímá Ideální nájemce - služba, se kterou budete bydlet bezstarostně a za férových podmínek. Když se něco přihodí, k dispozici jsou správci, kteří s vámi vše vyřeší. Pomůžeme s veškerou administrativou, s nastavením plateb a zajistíme vám speciální pojištění. Pojďte bydlet s námi!

Parametry bytu

Cena
16 000 Kč /za měsíc
Poznámka k ceně
vratná jistota, náklady na bydlení 3.400 Kč/měsíc vč. elektřiny, poplatek za podnájem
Aktualizováno
10. 12. 2025
Adresa
Ke kříži, Uhříněves - Praha 22
ID
N3515
Stavba
Smíšená
Stav objektu
Novostavba
Patro
5. z 6
Vybaveno
Částečně
Typ objektu
Patrový
Lokalita objektu
Klidná část obce
Vlastnictví
Osobní
Užitná plocha
33 m2
Podlahová plocha
33 m2
Třída energetické náročnosti
B - Velmi úsporná
Elektřina
230V
Topení
Ústřední dálkové
Balkon
Lodžie
Výtah

Kontaktovat makléře

Máte zájem o tento byt?

Tímto, v souladu s nařízením Evropského parlamentu a Rady (EU) 2016/679, v platném znění, prohlašuji, že mi je alespoň 16 let a uděluji tak svůj souhlas se zpracováním zadaných údajů (jméno, telefon, e-mail, ip adresa) společnosti B3 Technology, s.r.o., IČ: 07330600, se sídlem Novostavby 126/23, 435 11 Lom (správce dat), za účelem předání dotazu z tohoto formuláře Vámi vybranému inzerentovi a zpětného kontaktování mé osoby. Osobní údaje bude správce zpracovávat manuálně i automaticky přímo prostřednictvím svých zaměstnanců. Informace předané tímto formulářem budou uloženy v databázi správce maximálně po dobu 10 let. Odvolání souhlasu s uložením a zpracováním poskytnutých dat lze e-mailem na info@bydlisnami.cz. V případě podezření na neoprávněné použití Vámi poskytnutých údajů máte právo předat podnět k šetření Úřadu pro ochranu osobních údajů. Více informací
Chystáte se prodat nemovitost?
Pomůžeme Vám!

Inzerát si prohlédlo 2 lidí

Prodejce

Miloslava Kačerová

Miloslava Kačerová

Hlídací pes

Chcete dostávat emailem podobné nabídky pronájmu bytů 1+kk v Praze 10?

Podobné nemovitosti