Remax Monarcha

Prodej bytu 3+kk, Olomouc, Loudova, 80 m2 (ID: 2498301)

Loudova, Olomouc

8 837 000 Kč /za nemovitost HYPOTÉKA od 39 496 Kč /za měsíc

(včetně provize)

Doporučené firmy v Olomouci

Informace k bytu

Z pověření developera Vám realitní kancelář ALLE reality&development s.r.o. v exkluzivním zastoupení nabízí již V. etapu úspěšného projektu na ulici Loudova v Olomouci, jež navazuje prodejem – budovy B. Projekt umožňuje svým rezidentům dostupné bydlení v příjemné a klidné lokalitě města Olomouce. Více informací najdete na webových stránkách alle.
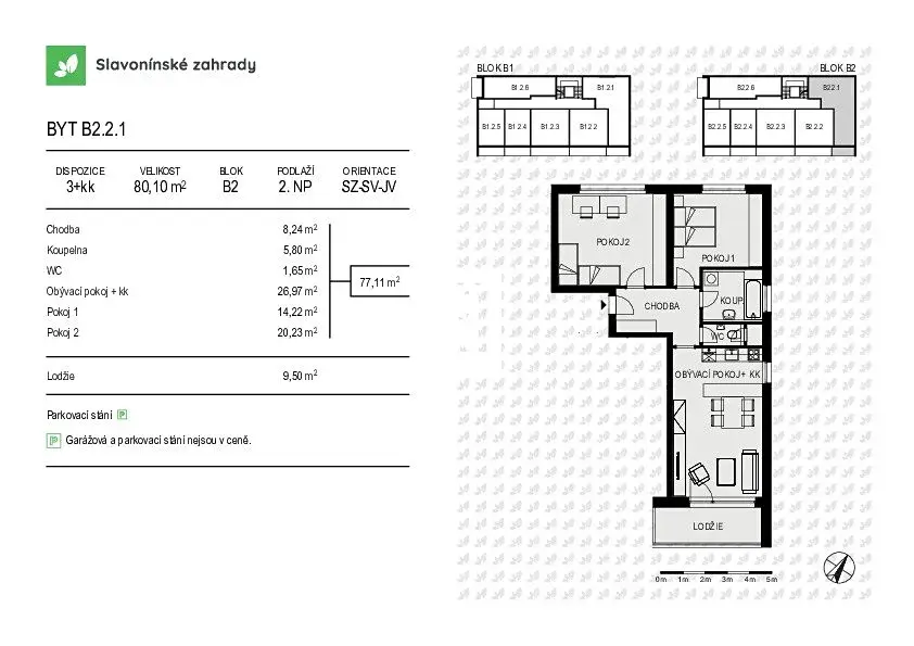
Byt B2.2.1 o dispozici 3+kk má podlahovou plochu 80,1 m², terasa o velikosti 9,5 m² a nachází se ve 2.NP bytového domu s nízkým počtem bytových jednotek.
Velkou předností lokality je dostatek zeleně, odpočinková zóna kolem přírodního rybníku Hamrys, cyklistická stezka, to vše pro čas odpočinku. Skvělá občanská vybavenost, vynikající dostupnost MHD včetně nově prodloužené tramvajové tratě, a bezproblémový výjezd na dálnici naopak usnadní pracovní část dne.
Vysoký komfort bydlení je zajištěn moderním standardním vybavením: podlahové vytápění po celé ploše jednotek, obložkové zárubně, vinylové podlahy, keramické obklady - vše dle volby klienta a také základní příprava pro venkovní žaluzie. Garážová stání a komory k dokoupení jsou samozřejmostí. Vyberte si své vysněné bydlení včas!
Klient hradí nad rámec kupní ceny poplatek za právní a administrativní servis.

Parametry bytu

Cena
8 837 000 Kč /za nemovitost Spočítat hypotéku
Poznámka k ceně
včetně provize
Aktualizováno
27. 1. 2026
Adresa
Loudova, Olomouc
ID
00897
Stavba
Cihlová
Stav objektu
Novostavba
Patro
2. z 4
Lokalita objektu
Klidná část obce
Vlastnictví
Osobní
Užitná plocha
80 m2
Třída energetické náročnosti
B - Velmi úsporná
Ukazatel energetické náročnosti
143 kWh/m2 za rok
Elektřina
230V
Odpad
Veřejná kanalizace
Komunikace
Asfaltová
Doprava
Vlak, Dálnice, Silnice, MHD, Autobus
Voda
Vodovod
Terasa
Výtah
Bezbarierový přístup

Kontaktovat makléře

Máte zájem o tento byt?

Tímto, v souladu s nařízením Evropského parlamentu a Rady (EU) 2016/679, v platném znění, prohlašuji, že mi je alespoň 16 let a uděluji tak svůj souhlas se zpracováním zadaných údajů (jméno, telefon, e-mail, ip adresa) společnosti B3 Technology, s.r.o., IČ: 07330600, se sídlem Novostavby 126/23, 435 11 Lom (správce dat), za účelem předání dotazu z tohoto formuláře Vámi vybranému inzerentovi a zpětného kontaktování mé osoby. Osobní údaje bude správce zpracovávat manuálně i automaticky přímo prostřednictvím svých zaměstnanců. Informace předané tímto formulářem budou uloženy v databázi správce maximálně po dobu 10 let. Odvolání souhlasu s uložením a zpracováním poskytnutých dat lze e-mailem na info@bydlisnami.cz. V případě podezření na neoprávněné použití Vámi poskytnutých údajů máte právo předat podnět k šetření Úřadu pro ochranu osobních údajů. Více informací
Chystáte se prodat nemovitost?
Pomůžeme Vám!

Inzerát si prohlédlo 14 lidí

Prodejce

Lenka Nerušilová

Lenka Nerušilová

Hlídací pes

Chcete dostávat emailem podobné nabídky prodeje bytů 3+kk v Olomouci?

Podobné nemovitosti