Pronájem obchodního prostoru, Hranice - Hranice I-Město, Masarykovo náměstí, 66 m2

Masarykovo náměstí, Hranice I-Město

6 000 Kč /za měsíc Získejte výhodnou HYPOTÉKU

(+ služby a provize ve výši jednoho nájmu)

Doporučené firmy v Hranicích

Informace k nemovitosti

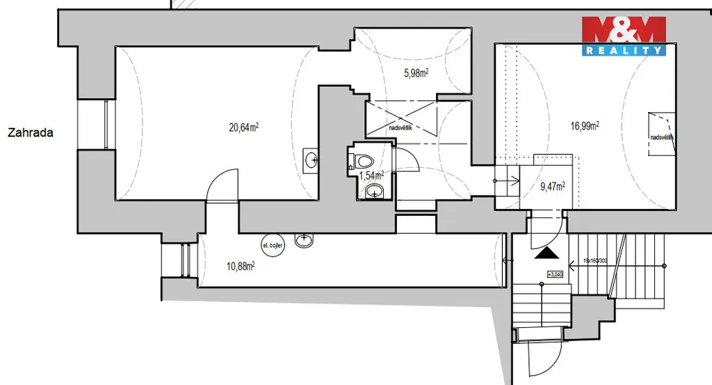
Pronájem obchod a služby, 66 m², Hranice, ul. Masarykovo nám

Nabízíme k pronájmu krásný zrekonstruovaný prostor o velikosti 66,7 m² vhodný pro obchod, služby či kanceláře, situovaný v centru obce Hranice I-Město. Nemovitost se nachází v 2NP cihlové budovy a je ve velmi dobrém stavu. Dispozice zahrnuje dvě místnosti, které lze flexibilně upravit dle potřeb vašeho podnikání. Hlavní místnost s pěkným výhledem je orientována do zahrady, vstupní prostor je bez denního světla.

Atraktivní poloha v centru města zajišťuje vysokou frekvenci zákazníků a výbornou dostupnost pěšky i autem. V okolí je kompletní občanská vybavenost. Prostory jsou k dispozici od března, případně dříve po dohodě. Nyní jsou zkolaudovány jako provozovna péče o tělo – kadeřnictví.

Nájemné činí 6.000 Kč + 1.900 Kč zálohy na služby. Nepropásněte příležitost podnikat v žádané lokalitě. Pro více informací a sjednání prohlídky nás neváhejte kontaktovat.

Parametry nemovitosti

Cena
6 000 Kč /za měsíc
Poznámka k ceně
+ služby a provize ve výši jednoho nájmu
Aktualizováno
17. 12. 2025
Adresa
Masarykovo náměstí, Hranice I-Město
ID
928498
Stavba
Cihlová
Stav objektu
Dobrý
Vybaveno
Částečně
Lokalita objektu
Centrum obce
Vlastnictví
Osobní
Užitná plocha
66 m2

Kontaktovat makléře

Realitní kancelář

Logo M&M reality

M&M reality

ulice Krakovská 583/9, Praha

Chystáte se prodat nemovitost?
Pomůžeme Vám!

Máte zájem o tuto nemovistost?

Tímto, v souladu s nařízením Evropského parlamentu a Rady (EU) 2016/679, v platném znění, prohlašuji, že mi je alespoň 16 let a uděluji tak svůj souhlas se zpracováním zadaných údajů (jméno, telefon, e-mail, ip adresa) společnosti B3 Technology, s.r.o., IČ: 07330600, se sídlem Novostavby 126/23, 435 11 Lom (správce dat), za účelem předání dotazu z tohoto formuláře Vámi vybranému inzerentovi a zpětného kontaktování mé osoby. Osobní údaje bude správce zpracovávat manuálně i automaticky přímo prostřednictvím svých zaměstnanců. Informace předané tímto formulářem budou uloženy v databázi správce maximálně po dobu 10 let. Odvolání souhlasu s uložením a zpracováním poskytnutých dat lze e-mailem na info@bydlisnami.cz. V případě podezření na neoprávněné použití Vámi poskytnutých údajů máte právo předat podnět k šetření Úřadu pro ochranu osobních údajů. Více informací
Chystáte se prodat nemovitost?
Pomůžeme Vám!

Inzerát si prohlédlo 0 lidí

Prodejce

Monika Cábová

Monika Cábová

Hlídací pes

Chcete dostávat emailem podobné nabídky pronájmu obchodních prostor v Hranicích (okr. Přerov)?

Podobné nemovitosti