Prodej bytu 3+1, Brno - Starý Lískovec, Dunajská, 66 m2

Dunajská, Brno, Starý Lískovec

5 950 000 Kč /za nemovitost HYPOTÉKA od 26 593 Kč /za měsíc

(Cena včetně provize RK.)

Doporučené firmy v Brně

Informace k bytu

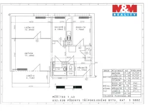
Prodej bytu 3+1, 66 m², Brno, ul. Dunajská

Nabízíme k prodeji byt o dispozici 3+1 se zasklenou lodžií a sklepem, který je umístěný v 5. NP revitalizovaného panelového domu s výtahem.
Celková plocha bytu činí 66 m², z toho lodžie 6 m². K bytu náleží také sklepní kóje o velikosti 2 m².
Byt je v původním stavu, určený ke kompletní rekonstrukci, čímž se novému majiteli otevírá prostor pro úpravu interiéru podle svého vkusu.

Dispoziční řešení a orientace: ložnice, kuchyně a pokoj jsou orientovány na sever, obývací pokoj se zasklenou lodžií a klimatizační jednotkou je orientován na jih, v chodbě se nachází spíž, kterou lze přetvořit na praktickou šatnu.
Dům je po revitalizaci, s rekonstruovaným výtahem.
Okolí nabízí nejen parkovací místa a plnou občanskou vybavenost, ale také dětská a workoutová hřiště. Zastávka MHD 3 min. chůze, 20 min. do centra.
Tento byt je vhodný jak pro vlastní bydlení, tak jako investiční příležitost.
Zavolejte si pro více informací nebo si rovnou domluvte prohlídku.

Parametry bytu

Cena
5 950 000 Kč /za nemovitost Spočítat hypotéku
Poznámka k ceně
Cena včetně provize RK.
Aktualizováno
17. 12. 2025
Adresa
Dunajská, Brno, Starý Lískovec
ID
928729
Stavba
Panelová
Stav objektu
Před rekonstrukcí
Vybaveno
Ne
Lokalita objektu
Klidná část obce
Vlastnictví
Osobní
Užitná plocha
66 m2
Lodžie

Kontaktovat makléře

Realitní kancelář

Logo M&M reality

M&M reality

ulice Krakovská 583/9, Praha

Chystáte se prodat nemovitost?
Pomůžeme Vám!

Máte zájem o tento byt?

Tímto, v souladu s nařízením Evropského parlamentu a Rady (EU) 2016/679, v platném znění, prohlašuji, že mi je alespoň 16 let a uděluji tak svůj souhlas se zpracováním zadaných údajů (jméno, telefon, e-mail, ip adresa) společnosti B3 Technology, s.r.o., IČ: 07330600, se sídlem Novostavby 126/23, 435 11 Lom (správce dat), za účelem předání dotazu z tohoto formuláře Vámi vybranému inzerentovi a zpětného kontaktování mé osoby. Osobní údaje bude správce zpracovávat manuálně i automaticky přímo prostřednictvím svých zaměstnanců. Informace předané tímto formulářem budou uloženy v databázi správce maximálně po dobu 10 let. Odvolání souhlasu s uložením a zpracováním poskytnutých dat lze e-mailem na info@bydlisnami.cz. V případě podezření na neoprávněné použití Vámi poskytnutých údajů máte právo předat podnět k šetření Úřadu pro ochranu osobních údajů. Více informací
Chystáte se prodat nemovitost?
Pomůžeme Vám!

Inzerát si prohlédlo 17 lidí

Prodejce

Ing. Lenka Urban

Ing. Lenka Urban

Hlídací pes

Chcete dostávat emailem podobné nabídky prodeje bytů 3+1 v Brně?

Podobné nemovitosti