Prodej rodinného domu, Soběslav, 206 m2 (ID: 2516171)

Soběslav

Prodáno
4 390 000 Kč /za nemovitost HYPOTÉKA od 19 621 Kč /za měsíc

(PRODÁNO)

Doporučené firmy v Soběslavi

Výkup a prodej starého nábytku

Informace k domu

Rodinný dům se nachází ve vyhledávané oblasti historické části města u náměstí v Soběslavi, jedná se o zděný dům, který byl v 80 letech rekonstruován – byla provedena nástavba prvního patra se zřízením druhé bytové jednotky (stropy z I nosičů a hurdisek, cihelné zdivo, podlahy, rozvody ZTI, elektro, ÚT, dvouramenné schodiště), dům je částečně podsklepený (cca 30 m2), vstup do domu z ulice je zajištěn přes uzavřený průjezd (34 m2) z něhož je dále přístup na uzavřený dvůr, vstup do bytových jednotek v přízemí a v patře přes společnou vstupní halu. V roce 2010 byla všechna okna v domě vyměněna za plastová (SALAMANDR).
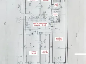
Celková obytná plocha je 205 m2. Bytová jednotka v přízemí je dispozičně řešena jako 3+1 – 89,4 m2 (pokoj 20 m2, pokoj 17,6 m2, pokoj 12,5 m2, kuchyně 13,3 m2, koupelna 4 m2, spíž 3 m2, hala se schodištěm do patra 19 m2).
Bytová jednotka v patře je dispozičně řešena jako 4+1 – 115,6 m2 (pokoj 36,2 m2, pokoj 20 m2, pokoj 19,5 m2, pokoj s jídelnou 15,7 m2, kuchyně 7,8 m2, koupelna 6,6 m2, samostatné WC 1 m2, chodba 8,8 m2).
Dům je napojen na obecní vodovod, odpadní vody jsou svedeny přímo do veřejné kanalizace, vytápění domu je zajištěno ústředním topením (kotel na plyn umístěn ve sklepě), TÚV – bojler pro každý byt, elektro 230/400.
Součástí domu je uzavřený dvůr kde se nachází zděný sklad (16 m2) a zděná kolna (5 m2), celková plocha pozemku je 245 m2 (ZP domu 163 m2, dvůr 82 m2), užitná plocha domu je 269 m2, v obci veškerá občanská vybavenost, koupaliště, v docházkové vzdálenosti škola, školka, gymnázium, autobusové a vlakové nádraží, kino, sportovní areál, poliklinika, obchody, nedaleko dálnice D3 (Praha – České Budějovice), v okolí krásná příroda, lesy, rybníky, řeka Lužnice, cyklostezky, PENB nebyl proveden, proto uváděna tř. G.

Parametry domu

Stav
Prodáno
Cena
4 390 000 Kč /za nemovitost Spočítat hypotéku
Poznámka k ceně
PRODÁNO
Aktualizováno
9. 1. 2026
Adresa
Soběslav
Stavba
Cihlová
Stav objektu
Dobrý
Vybaveno
Ano
Druh objektu
V bloku
Lokalita objektu
Centrum obce
Užitná plocha
206 m2
Zastavěná plocha
164 m2
Podlahová plocha
261 m2
Plocha pozemku
246 m2
Elektřina
230V
Plyn
Plynovod
Odpad
Veřejná kanalizace
Komunikace
Asfaltová
Doprava
Vlak, Dálnice, Autobus
Voda
Vodovod
Topné těleso
Radiátory
Zdroj topení
Plynový kotel
Zdroj teplé vody
Bojler - elektro
Sklep

Kontaktovat makléře

Realitní kancelář

INREKA

Nábřeží Otakara Ostrčila 275/2, Soběslav

Chystáte se prodat nemovitost?
Pomůžeme Vám!

Máte zájem o tento dům?

Tímto, v souladu s nařízením Evropského parlamentu a Rady (EU) 2016/679, v platném znění, prohlašuji, že mi je alespoň 16 let a uděluji tak svůj souhlas se zpracováním zadaných údajů (jméno, telefon, e-mail, ip adresa) společnosti B3 Technology, s.r.o., IČ: 07330600, se sídlem Novostavby 126/23, 435 11 Lom (správce dat), za účelem předání dotazu z tohoto formuláře Vámi vybranému inzerentovi a zpětného kontaktování mé osoby. Osobní údaje bude správce zpracovávat manuálně i automaticky přímo prostřednictvím svých zaměstnanců. Informace předané tímto formulářem budou uloženy v databázi správce maximálně po dobu 10 let. Odvolání souhlasu s uložením a zpracováním poskytnutých dat lze e-mailem na info@bydlisnami.cz. V případě podezření na neoprávněné použití Vámi poskytnutých údajů máte právo předat podnět k šetření Úřadu pro ochranu osobních údajů. Více informací
Chystáte se prodat nemovitost?
Pomůžeme Vám!

Inzerát si prohlédlo 1 lidí

Prodejce

Mgr. Petra Šilhová

Mgr. Petra Šilhová

Hlídací pes

Chcete dostávat emailem podobné nabídky prodeje rodinných domů v Soběslavi?

Podobné nemovitosti