Pronájem bytu 1+kk, Praha - Záběhlice, Choceradská, 39 m2

Choceradská, Praha 4

18 500 Kč /za měsíc Získejte výhodnou HYPOTÉKU

(+ 2.700,- poplatky za společné domovní služby, topení, teplou a studenou vodu. Elektřina bude převedena na nájemce.)

Doporučené firmy v Praze 4

Stěhovací služby

Výkup a prodej starého nábytku

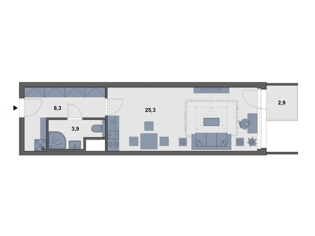
Informace k bytu

Nový byt s východní orientací, vyhřívanou podlahou v celém bytě a francouzskými okny s výhledem na rybník. Dům je novostavba s výtahem, součástí projektu je kočárkárna a venkovní dětské hřiště.

Dispozice a vybavení:
• Předsíň 8,3 m² (místo na vestavnou skříň + pračku)
• Koupelna 3,9 m² se sprchou a WC, otopný žebřík
• Obývací pokoj s kuchyňskou linkou 25,3 m², vstup na balkon 3 m² (pokoj cca 7,63 × 3,25 m)
• Kuchyň: vestavná trouba se sklokeramickou deskou, digestoř, lednice s mrazákem, myčka, mikrovlnná trouba
• Podlahy: laminát, v koupelně a na balkonu dlažba
• Topení: ústřední (společná kotelna v 1. PP), bytový domovní telefon
• Okna plastová s trojskly a s vnitřními žaluziemi.

Lokalita & doprava:
1 min chůze MHD bus (rychlé spojení do centra), metro Roztyly cca 1,5 km. V blízkém okolí kompletní občanská vybavenost (školy, školky, lékař, obchody, parky). Rychlý nájezd na magistrálu, Jižní spojku i dálnice.

Náklady:
• Nájemné: 18 500 Kč/měs.
• Zálohy na služby: 2 700 Kč/měs. (zahrnuje společné domovní služby, topení, teplou a studenou vodu)
• Elektřina: bude převedena na nájemce
• Vratná jistota 2 měsíce: 42 400 Kč (lze ve 2 splátkách)
• Provize RK: 18 500 Kč + DPH

Podmínky:
• Minimální doba nájmu: 12 měsíců
• Byt není vhodný pro domácí mazlíčky
• Nekuřácký byt

Prohlídka / zájemci:
Pro naplánování prohlídky prosím pošli: jaké je Vaše zaměstnání, kolik členů má domácnost, zda kouříte, jestli máte domácí zvířata a od kdy chcete byt pronajmout.

Parametry bytu

Cena
18 500 Kč /za měsíc
Poznámka k ceně
+ 2.700,- poplatky za společné domovní služby, topení, teplou a studenou vodu. Elektřina bude převedena na nájemce.
Aktualizováno
13. 1. 2026
Adresa
Choceradská, Praha 4
ID
Choceradská_2
Stavba
Cihlová
Stav objektu
Novostavba
Patro
6. z 10
Vybaveno
Částečně
Lokalita objektu
Klidná část obce
Vlastnictví
Osobní
Užitná plocha
39 m2
Podlahová plocha
42 m2
Třída energetické náročnosti
B - Velmi úsporná
Elektřina
230V
Odpad
Veřejná kanalizace
Komunikace
Asfaltová
Telekomunikace
Telefon, Internet
Doprava
Vlak, Dálnice, Silnice, MHD, Autobus
Voda
Vodovod
Balkon
Garáž
Výtah

Kontaktovat makléře

Máte zájem o tento byt?

Tímto, v souladu s nařízením Evropského parlamentu a Rady (EU) 2016/679, v platném znění, prohlašuji, že mi je alespoň 16 let a uděluji tak svůj souhlas se zpracováním zadaných údajů (jméno, telefon, e-mail, ip adresa) společnosti B3 Technology, s.r.o., IČ: 07330600, se sídlem Novostavby 126/23, 435 11 Lom (správce dat), za účelem předání dotazu z tohoto formuláře Vámi vybranému inzerentovi a zpětného kontaktování mé osoby. Osobní údaje bude správce zpracovávat manuálně i automaticky přímo prostřednictvím svých zaměstnanců. Informace předané tímto formulářem budou uloženy v databázi správce maximálně po dobu 10 let. Odvolání souhlasu s uložením a zpracováním poskytnutých dat lze e-mailem na info@bydlisnami.cz. V případě podezření na neoprávněné použití Vámi poskytnutých údajů máte právo předat podnět k šetření Úřadu pro ochranu osobních údajů. Více informací
Chystáte se prodat nemovitost?
Pomůžeme Vám!

Inzerát si prohlédlo 1 lidí

Prodejce

Sergej Gončarov

Sergej Gončarov

Hlídací pes

Chcete dostávat emailem podobné nabídky pronájmu bytů 1+kk v Praze 4?

Podobné nemovitosti