Pronájem obchodního prostoru, Želetava, Pražská, 188 m2

Pražská, Želetava

20 000 Kč /za měsíc Získejte výhodnou HYPOTÉKU
Doporučené firmy v Želetavě

Informace k nemovitosti

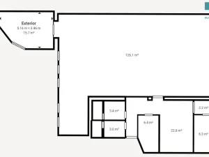
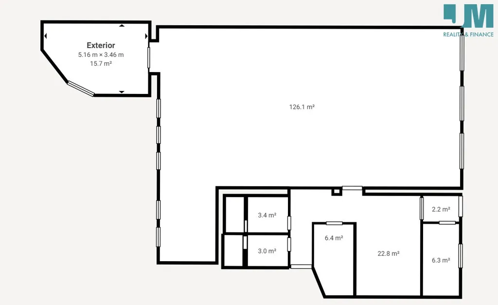
Naše společnost Vám zprostředkuje pronájem nebytových prostor v těsné blízkosti autobusové zastávky v Želetavě. Prostory mají svůj samostatný vstup z ulice (zádveří 15m²), dále je hlavní prostor o rozloze 126m² kde se nachází také klimatizační jednotka. Součástí je také toaleta a místnost s možností vybudování umyvadla a koupelny. V prostorách jsou také další menší místnosti které lze využít například jako kanceláře. Tyto komerční prostory mají také dveře do zadní části domu, kde je možný příjezd až ke dveřím (například pro zásobování). Před domem je možné parkování až 3 aut.
Vytápění prostor je řešeno kondenzačním kotlem, který se stará také o ohřev vody. Elektrika je v mědi a je zde jak 230V, tak i 400V. V objektu je nainstalované bezpečnostní zařízení. Prostory lze využívat jako prodejnu, případně k jinému typu podnikání.
Majitelé žádají pouze zájemce o dlouhodobý pronájem.
Samozřejmostí u naší realitní kanceláře je virtuální prohlídka nemovitosti.

Parametry nemovitosti

Cena
20 000 Kč /za měsíc
Aktualizováno
18. 2. 2026
Adresa
Pražská, Želetava
ID
01928
Stavba
Smíšená
Stav objektu
Dobrý
Patro
1.
Vybaveno
Ne
Typ objektu
Přízemní
Druh objektu
Rohový
Lokalita objektu
Rušná část obce
Užitná plocha
188 m2
Třída energetické náročnosti
G - Mimořádně nehospodárná
Elektřina
230V, 400V
Plyn
Plynovod
Odpad
Veřejná kanalizace
Topení
Ústřední plynové
Komunikace
Asfaltová
Doprava
Silnice, Autobus
Voda
Vodovod
Výtah
Bezbarierový přístup
Parkování

Kontaktovat makléře

Máte zájem o tuto nemovistost?

Tímto, v souladu s nařízením Evropského parlamentu a Rady (EU) 2016/679, v platném znění, prohlašuji, že mi je alespoň 16 let a uděluji tak svůj souhlas se zpracováním zadaných údajů (jméno, telefon, e-mail, ip adresa) společnosti B3 Technology, s.r.o., IČ: 07330600, se sídlem Novostavby 126/23, 435 11 Lom (správce dat), za účelem předání dotazu z tohoto formuláře Vámi vybranému inzerentovi a zpětného kontaktování mé osoby. Osobní údaje bude správce zpracovávat manuálně i automaticky přímo prostřednictvím svých zaměstnanců. Informace předané tímto formulářem budou uloženy v databázi správce maximálně po dobu 10 let. Odvolání souhlasu s uložením a zpracováním poskytnutých dat lze e-mailem na info@bydlisnami.cz. V případě podezření na neoprávněné použití Vámi poskytnutých údajů máte právo předat podnět k šetření Úřadu pro ochranu osobních údajů. Více informací
Chystáte se prodat nemovitost?
Pomůžeme Vám!

Inzerát si prohlédlo 6 lidí

Prodejce

Josef Mejzlík

Josef Mejzlík

Hlídací pes

Chcete dostávat emailem podobné nabídky pronájmu obchodních prostor v Želetavě?

Podobné nemovitosti