Prodej rodinného domu, Křemže, 117 m2 (ID: 2520941)

Křemže, Chlum

7 700 000 Kč /za nemovitost HYPOTÉKA od 34 414 Kč /za měsíc

(včetně DPH, včetně provize)

Doporučené firmy v Křemži

Výkup a prodej starého nábytku

Informace k domu

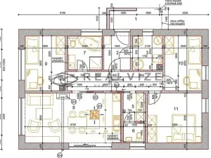
Předmětem prodeje je stavba moderního RD v Chlumu u Křemže, malebné obci pod Kletí. Nemovitost o 117 m2 se nachází na pozemku o výměře 958 m2 a její součástí je zděná stavba o 35 m2, využitelná po menší rekonstrukci jako samostatný obytný domek např. k budoucímu pronájmu.
V domě je plánovaný prostorný obývací pokoj spojený s kuchyní. Praktické rozložení místností zahrnuje také samostatnou ložnici, dva další pokoje a dvě toalety (1x s koupelnou) a technickou místnost. Dům je napojen na inženýrské sítě kromě plynu. Vytápění je řešeno přes teplovodní podlahové topení napojené na tepelné čerpadlo. V obývacím pokoji krbová kamna. En. náročnost budovy: A mimořádně úsporná.
Na pozemku se nachází také kopaná studna s užitkovou vodou.
K úplnému dokončení domu zbývají následující dostavby:
Vnitřní dveře
Stropy, půdní schody
Podlahy (vinyl, stěrka)
Obložení koupelny, toalety, TM + sanita, vnitřní parapety
Izolace stropu
Zámková dlažba a stání:
Elektrika, kompletace
ZTI, kompletace
Tepelné čerpadlo Panasonic split (vzduch/voda ) o nominálním výkonu 7 kW s frekvenčním řízením výkonu kompresoru a dálkového ovládání SMART CLOUD je již nainstalováno a je započteno v celkové ceně. Dům je v současné době nepřetržitě temperován.
Kompletní dostavbu domu je možné realizovat firmou, která dosud stavbu prováděla s tím, že dokončovací práce budou dle požadavků budoucího majitele. Majitel stavby rád pomůže i s vyřízením kolaudace na Stavebním úřadě v Křemži.
Veškerá občanská vybavenost v obci Křemže – školka, škola, zdrav. zařízení, obchody, pošta a další.
Majitel je ochotem o konečné ceně jedenat v případě faktického zájmu.
Pro více informací popř. prohlídku nemovitosti kontaktujte makléře této zajímavé nabídky.

Parametry domu

Cena
7 700 000 Kč /za nemovitost Spočítat hypotéku
Poznámka k ceně
včetně DPH, včetně provize
Aktualizováno
5. 2. 2026
Adresa
Křemže, Chlum
ID
00635
Stavba
Cihlová
Stav objektu
Ve výstavbě
Druh objektu
Samostatný
Užitná plocha
117 m2
Podlahová plocha
154 m2
Plocha pozemku
993 m2
Třída energetické náročnosti
A - Mimořádně úsporná
Ukazatel energetické náročnosti
62 kWh/m2 za rok
Komunikace
Asfaltová
Doprava
Silnice

Kontaktovat makléře

Realitní kancelář

Realvize - realitní kancelář

Staroměstská 1504/1, České Budějovice

Chystáte se prodat nemovitost?
Pomůžeme Vám!

Máte zájem o tento dům?

Tímto, v souladu s nařízením Evropského parlamentu a Rady (EU) 2016/679, v platném znění, prohlašuji, že mi je alespoň 16 let a uděluji tak svůj souhlas se zpracováním zadaných údajů (jméno, telefon, e-mail, ip adresa) společnosti B3 Technology, s.r.o., IČ: 07330600, se sídlem Novostavby 126/23, 435 11 Lom (správce dat), za účelem předání dotazu z tohoto formuláře Vámi vybranému inzerentovi a zpětného kontaktování mé osoby. Osobní údaje bude správce zpracovávat manuálně i automaticky přímo prostřednictvím svých zaměstnanců. Informace předané tímto formulářem budou uloženy v databázi správce maximálně po dobu 10 let. Odvolání souhlasu s uložením a zpracováním poskytnutých dat lze e-mailem na info@bydlisnami.cz. V případě podezření na neoprávněné použití Vámi poskytnutých údajů máte právo předat podnět k šetření Úřadu pro ochranu osobních údajů. Více informací
Chystáte se prodat nemovitost?
Pomůžeme Vám!

Inzerát si prohlédlo 8 lidí

Prodejce

Hynek Ira

Hynek Ira

Hlídací pes

Chcete dostávat emailem podobné nabídky prodeje rodinných domů v Křemži?

Podobné nemovitosti