Molík reality

Pronájem bytu 3+1, Most, Česká, 62 m2

Česká, Most

12 600 Kč /za měsíc Získejte výhodnou HYPOTÉKU
Doporučené firmy v Mostě

Okna a dveře

Rekonstrukce

Informace k bytu

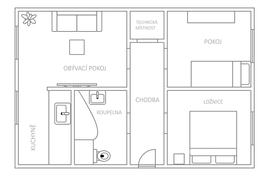
Ráda bych vám nabídla k dlouhodobému podnájmu hezký byt 3+kk o výměře 62 m² v ulici Česká v Mostě.

Jakmile vstoupíme do chodby, máme po pravé straně dvě samostatné místnosti. V ložnici je skříň. Vlevo se nachází koupelna s rohovou vanou, umyvadlem a toaletou. Naproti vstupním dveřím je technická místnost, kde je možné uložit velké množství věcí. Vedle této místnosti je velký světlý obývací pokoj s kuchyňským koutem. V kuchyni je kromě kuchyňské linky s elektrickým sporákem i lednice. V obýváku je konferenční stolek.
V celém bytě jsou nové dveře a osvětlení.
Dům je čistý a udržovaný.
Pokoje jsou na fotografiích i vizualizovány pro lepší představu jak by mohly zařízené vypadat.

Byt je volný, ihned k nastěhování. Náklady na bydlení jsou ve výši 12 600 Kč nájemné + služby 2 300, Kč/ osoba (další osoba + 700,Kč). Elektřina a plyn budou přepsány na nájemníka. Při podpisu nájemní smlouvy je požadována vratná kauce ve výši 15 000, Kč. Dále se skládá rezervační poplatek při podpisu rezervační smlouvy ve výši 12 600 + DPH). Nabídka platí pouze pro zájemce s pracovní smlouvou. V případě zájmu o prohlídku nebo o více informací kontaktujte, prosím, makléřku.

Parametry bytu

Cena
12 600 Kč /za měsíc
Aktualizováno
20. 1. 2026
Adresa
Česká, Most
ID
973351
Stavba
Panelová
Stav objektu
Dobrý
Patro
3. z 8
Vlastnictví
Družstevní
Užitná plocha
62 m2
Podlahová plocha
62 m2
Třída energetické náročnosti
G - Mimořádně nehospodárná
Elektřina
230V
Výtah
Převod do OV

Kontaktovat makléře

Máte zájem o tento byt?

Tímto, v souladu s nařízením Evropského parlamentu a Rady (EU) 2016/679, v platném znění, prohlašuji, že mi je alespoň 16 let a uděluji tak svůj souhlas se zpracováním zadaných údajů (jméno, telefon, e-mail, ip adresa) společnosti B3 Technology, s.r.o., IČ: 07330600, se sídlem Novostavby 126/23, 435 11 Lom (správce dat), za účelem předání dotazu z tohoto formuláře Vámi vybranému inzerentovi a zpětného kontaktování mé osoby. Osobní údaje bude správce zpracovávat manuálně i automaticky přímo prostřednictvím svých zaměstnanců. Informace předané tímto formulářem budou uloženy v databázi správce maximálně po dobu 10 let. Odvolání souhlasu s uložením a zpracováním poskytnutých dat lze e-mailem na info@bydlisnami.cz. V případě podezření na neoprávněné použití Vámi poskytnutých údajů máte právo předat podnět k šetření Úřadu pro ochranu osobních údajů. Více informací
Chystáte se prodat nemovitost?
Pomůžeme Vám!

Inzerát si prohlédlo 0 lidí

Prodejce

Ing. Martina Wohlová

Ing. Martina Wohlová

Hlídací pes

Chcete dostávat emailem podobné nabídky pronájmu bytů 3+1 v Mostě?

Podobné nemovitosti