Prodej bytu 3+1, Bedřichov, 177 m2

Bedřichov

13 900 000 Kč /za nemovitost HYPOTÉKA od 62 125 Kč /za měsíc
Doporučené firmy v Bedřichově

Rekonstrukce

Úklidové služby

Informace k bytu

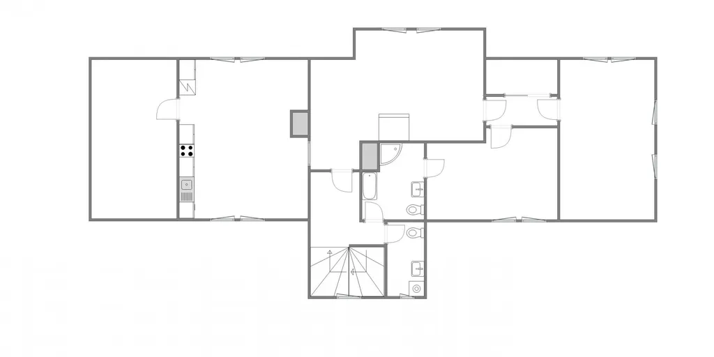
Exkluzivně nabízíme k prodej kompletně zařízeného bytu o dispozici 3+1 a celkové rozloze 141,9 m2 (obytná plocha 123,7 m2) jehož příslušenství tvoří terasa 34,3 m2 a sklep o rozloze 35,6 m2 v klidné části obce Bedřichov. Příjezd po zpevněné silnici, vlastní parkoviště pro rezidenty. Výměry místností: pokoj s jídelnou a kuchyní 65,4m2, dětský pokoj 25,1 m2, ložnice 19,3 m2, koupelna s WC 8,5 m2, prádelna s druhým WC 5,4 m2, chodba a schodiště 10,8 m2, chodba 7,4 m2 a dále sklep přístupný ze zahrady 35,6 m2 /sklep je sdílený a možné je využívat jej z jedné poloviny/ a privátní terasa 34,3 m2). Vstup do bytu se nachází ve druhém nadzemním podlaží a v tomto podlaží se nachází pouze předsíň se schodištěm do 3.podlaží ve kterém se nachází celý byt (velmi klidný podkrovní byt bez přímých sousedů). Z inženýrských sítí je k dispozici přípojka elektřiny, vodovod, kanalizace. Topení zajištěno kombinací vlastního elektrokotle s etážovým rozvodem a krbových kamen, ohřev vody zajištěn vlastním elektrickým 150 litrovým bojlerem. Připojení k internetu 02 nebo wifi síť místních poskytovatelů. Měsíční náklady .ve výši 3.900,-Kč z čehož je 2.485,-Kč fond oprav + elektřina, dle spotřeby - dodavatel ČEZ + internet. Energetická náročnost budovy nebyla doložena a z toho důvodu je uvedena hodnota G. Dům byl kompletně rekonstruován v roce 2007 a v roce 2010 byla dokončena výstavba předmětného bytu. Společenství vlastníků nemá žádné dluhy a na jaře bude probíhat oprava hydroizolace terasy a dále budou opraveny/vyměněny okapové žlaby. Úklid společných částí domu, úklid sněhu zajištěn správní firmou. V obci Bedřichov je možné realizovat širokou škálu aktivit, jako je například sjezdové lyžování, vyhlášené běžecké lyžování, snowboarding a v létě je místo ideální pro turistiku, cykloturistiku a mnoho dalších aktivit. V případě únavy se v blízkém okolí nachází wellness resort poskytující veškerý servis. Výborná dostupnost Jablonce nad Nisou, Liberce a díky dálnici je dobře dostupné hlavní město Praha. Pro více informací či se zájmem o prohlídku nás neváhejte kontaktovat.

Parametry bytu

Cena
13 900 000 Kč /za nemovitost Spočítat hypotéku
Aktualizováno
29. 1. 2026
Adresa
Bedřichov
ID
MN57
Stavba
Cihlová
Stav objektu
Dobrý
Patro
3. z 3
Vybaveno
Ano
Typ objektu
Patrový
Vlastnictví
Osobní
Užitná plocha
177 m2
Podlahová plocha
141 m2
Třída energetické náročnosti
G - Mimořádně nehospodárná
Elektřina
230V, 400V
Odpad
Veřejná kanalizace
Topení
Ústřední elektrické
Komunikace
Asfaltová, Dlážděná
Telekomunikace
Internet
Doprava
Silnice, Autobus
Voda
Vodovod
Topné těleso
Radiátory, Krb
Zdroj topení
Elektrokotel
Bezbarierový přístup
Parkování

Kontaktovat makléře

Máte zájem o tento byt?

Tímto, v souladu s nařízením Evropského parlamentu a Rady (EU) 2016/679, v platném znění, prohlašuji, že mi je alespoň 16 let a uděluji tak svůj souhlas se zpracováním zadaných údajů (jméno, telefon, e-mail, ip adresa) společnosti B3 Technology, s.r.o., IČ: 07330600, se sídlem Novostavby 126/23, 435 11 Lom (správce dat), za účelem předání dotazu z tohoto formuláře Vámi vybranému inzerentovi a zpětného kontaktování mé osoby. Osobní údaje bude správce zpracovávat manuálně i automaticky přímo prostřednictvím svých zaměstnanců. Informace předané tímto formulářem budou uloženy v databázi správce maximálně po dobu 10 let. Odvolání souhlasu s uložením a zpracováním poskytnutých dat lze e-mailem na info@bydlisnami.cz. V případě podezření na neoprávněné použití Vámi poskytnutých údajů máte právo předat podnět k šetření Úřadu pro ochranu osobních údajů. Více informací
Chystáte se prodat nemovitost?
Pomůžeme Vám!

Inzerát si prohlédlo 0 lidí

Prodejce

Michal Němeček

Michal Němeček

Hlídací pes

Chcete dostávat emailem podobné nabídky prodeje bytů 3+1 v Bedřichově (okr. Jablonec nad Nisou)?

Podobné nemovitosti