Pronájem bytu 2+kk, Praha - Dejvice, Paťanka, 70 m2

Paťanka, Praha, Dejvice

27 000 Kč /za měsíc Získejte výhodnou HYPOTÉKU

(+ zálohy 5.000Kč včetně elektřiny, vody a tepla, včetně DPH, bez poplatků, + provize RK)

Doporučené firmy v Praze 6

Stěhovací služby

Výkup a prodej starého nábytku

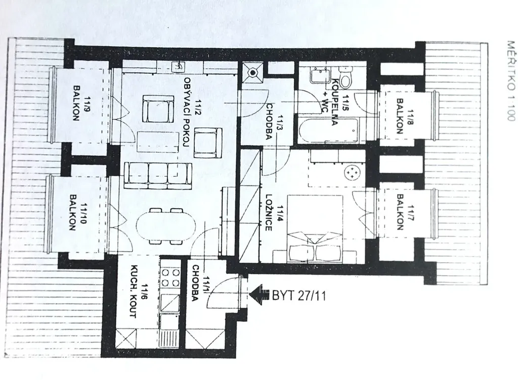
Informace k bytu

Jedinečná příležitost k pronájmu nádherného slunného bytu 2+kk s výhledy se 4 balkóny, který se nachází v žádané lokalitě Dejvic obklopené přírodou i občanskou vybaveností, připravený na okamžité bydlení.

Tento světlý byt 2+kk je situován v moderním bytovém domě, který se může pochlubit dokonale udržovanými společnými prostory a bezpečnostním systémem. Při vstupu do bytu vás uvítá prostorný obývací pokoj s kompletně vybaveným kuchyňským koutem - varnou deskou, vestavnou myčkou, vestavnou troubou, vestavnou lednicí s mrazákem a nádobím. Z obývacího pokoje je přímý přístup velkými francouzskými okny na 2 balkony, který slouží jako dokonalé místo pro relaxaci po dlouhém dni. V obývacím pokoji je skříňka s TV, rozkládací sofa a moderní jídelní stůl se 4 židlemi, dekorační komoda z antikvariátu.
Ložnice je dostatečně prostorná, s velkou postelí, 2 šatními skříněmi, skřínkou a křeslem. Z ložnice je opět výstup francouzským oknem na další balkón.
Koupelna je vybavena vanou, WC a moderními sanitárními prvky. Balkon je rovněž součástí koupelny.
Pračka je rovněž přenechaná novým nájemníkům k dispozici.
Celý byt je navržen s důrazem na funkčnost a estetiku, s využitím kvalitních materiálů a stavebních prvků. Nesdílnou součástí jsou bezpečnostní dveře a videokamera.

Byt se nachází v dynamické a dobře dostupné lokalitě s výbornou občanskou vybaveností. V blízkosti naleznete školy, školky, Kaufland a další obchody, restaurace, kavárny a kulturní zařízení. Pro milovníky přírody a sportu je v okolí dostatek zeleně a sportovišť. Dopravní spojení s ostatními částmi města je rychlé a efektivní, ať už využijete městskou hromadnou dopravu (M-Dejvická, bus/tramvaj) nebo vlastní auto - k dispozici je možnost pronajmutí garážového stání.

Co byt nabízí:
- Plně vybavená kuchyňská linka s moderními spotřebiči
- Prostorná ložnice s postelí a šatními skříněmi s balkonem
- Moderní koupelna s vanou, WC s balkonem
- Útulný obývací pokoj s TV s dostatkem denního světla se 2 balkony
- Jídelní stůl se 4 židlemi
- Pračka
- Mobilní klimatizace
- Přípojka na internet
- Bezpečnostní dveře
- Videotelefon

Cena: 27.000,- Kč + poplatky 5.000kč včetně tepla, vody a elektřiny + provize RK
- Předpokládaná doba pronájmu: minimálně 1 rok s možností prodloužení na dlouhodobý pronájem
- Byt je ideální pro jednotlivce nebo pár
- Domácí zvířata nejsou povolena
- Jedná se o nekuřácký byt

Pokud hledáte byt, který kombinuje pohodlí, styl a výbornou lokalitu, neváhejte se na mě obrátit pro další informace nebo domluvení prohlídky. Těším se na vaši odpověď.

Děkuji za váš zájem a těším se na vaši návštěvu tohoto krásného bytu.

Parametry bytu

Cena
27 000 Kč /za měsíc
Poznámka k ceně
+ zálohy 5.000Kč včetně elektřiny, vody a tepla, včetně DPH, bez poplatků, + provize RK
Aktualizováno
30. 1. 2026
Adresa
Paťanka, Praha, Dejvice
ID
29598
Stavba
Smíšená
Stav objektu
Velmi dobrý
Patro
6. z 6
Vybaveno
Ano
Vlastnictví
Osobní
Užitná plocha
70 m2
Třída energetické náročnosti
G - Mimořádně nehospodárná
Doprava
Silnice, MHD, Autobus
Voda
Vodovod
Zdroj teplé vody
Centrální dálkový ohřev
Balkon
Výtah
Bezbarierový přístup

Kontaktovat makléře

Máte zájem o tento byt?

Tímto, v souladu s nařízením Evropského parlamentu a Rady (EU) 2016/679, v platném znění, prohlašuji, že mi je alespoň 16 let a uděluji tak svůj souhlas se zpracováním zadaných údajů (jméno, telefon, e-mail, ip adresa) společnosti B3 Technology, s.r.o., IČ: 07330600, se sídlem Novostavby 126/23, 435 11 Lom (správce dat), za účelem předání dotazu z tohoto formuláře Vámi vybranému inzerentovi a zpětného kontaktování mé osoby. Osobní údaje bude správce zpracovávat manuálně i automaticky přímo prostřednictvím svých zaměstnanců. Informace předané tímto formulářem budou uloženy v databázi správce maximálně po dobu 10 let. Odvolání souhlasu s uložením a zpracováním poskytnutých dat lze e-mailem na info@bydlisnami.cz. V případě podezření na neoprávněné použití Vámi poskytnutých údajů máte právo předat podnět k šetření Úřadu pro ochranu osobních údajů. Více informací
Chystáte se prodat nemovitost?
Pomůžeme Vám!

Inzerát si prohlédlo 1 lidí

Prodejce

Ing. Marcela Bartáková

Ing. Marcela Bartáková

Hlídací pes

Chcete dostávat emailem podobné nabídky pronájmu bytů 2+kk v Praze 6?

Podobné nemovitosti