Pronájem bytu 2+kk, Praha - Řeporyje, Ořešská, 45 m2 (ID: 2536793)

Ořešská, Praha 5 - Řeporyje

18 000 Kč /za měsíc Získejte výhodnou HYPOTÉKU

(měsíční poplatky 4 600 Kč)

Doporučené firmy v Praze 5

Stěhovací služby

Výkup a prodej starého nábytku

Informace k bytu

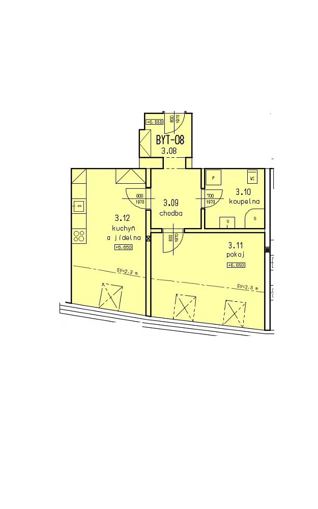
Nabízíme k pronájmu byt 2kk 45m²

K dispozici Od 1.4.2026 Nabízíme k pronájmu byt 2kk 45m² v cihlovém domě na Praze 5 Řeporyje - ul. Ořešská dlouhodobý pronájem bytu včetně 1.parkovacího místa Bytová jednotka o dispozicí: 2kk - kuchyň s obyv. pokojem , ložnice , koupelna spr.kout , Byt je zařízen pouze kuchyňskou linkou sporákem se sklokeramická deska a el troubou .Byt je v cihlovém domě v 2NP po kompletní rekonstrukci prohlídky jsou možné po do dohodě. Nabídka je pouze k dlouhodobému pronájmu, vhodné pro 1. max. pro 2 osoby - bez domácích mazlíčků - není vhodné pro rodinu ... jinak bez zařízení ! Nájem je 18.000,- Kč plus zálohy pro 2.osoby 4460,- ,- Kč . služby pro 1 osobu 3100,- Kč / Náklady na elektřinu si nájemník převede na sebe- není v ceně . K NASTĚHOVÁNÍ od 1.4.2026 případně po dohodě - podmínkou je kauce což je 2.měsíční nájemné, pokud budete reagovat na inzerát připište prosíme na sebe tel. kontakt a email . RK prosíme NEVOLAT !!
více ifo na: pbytovasprava@email.cz
mob. Kontakt: 607964990

Parametry bytu

Cena
18 000 Kč /za měsíc
Poznámka k ceně
měsíční poplatky 4 600 Kč
Aktualizováno
2. 2. 2026
Adresa
Ořešská, Praha 5 - Řeporyje
ID
123456
Stavba
Cihlová
Vybaveno
Částečně
Lokalita objektu
Okraj obce
Vlastnictví
Osobní
Užitná plocha
45 m2
Třída energetické náročnosti
G - Mimořádně nehospodárná

Kontaktovat makléře

Máte zájem o tento byt?

Tímto, v souladu s nařízením Evropského parlamentu a Rady (EU) 2016/679, v platném znění, prohlašuji, že mi je alespoň 16 let a uděluji tak svůj souhlas se zpracováním zadaných údajů (jméno, telefon, e-mail, ip adresa) společnosti B3 Technology, s.r.o., IČ: 07330600, se sídlem Novostavby 126/23, 435 11 Lom (správce dat), za účelem předání dotazu z tohoto formuláře Vámi vybranému inzerentovi a zpětného kontaktování mé osoby. Osobní údaje bude správce zpracovávat manuálně i automaticky přímo prostřednictvím svých zaměstnanců. Informace předané tímto formulářem budou uloženy v databázi správce maximálně po dobu 10 let. Odvolání souhlasu s uložením a zpracováním poskytnutých dat lze e-mailem na info@bydlisnami.cz. V případě podezření na neoprávněné použití Vámi poskytnutých údajů máte právo předat podnět k šetření Úřadu pro ochranu osobních údajů. Více informací
Chystáte se prodat nemovitost?
Pomůžeme Vám!

Inzerát si prohlédlo 2 lidí

Prodejce

BYTOVÁ SPRÁVA

BYTOVÁ SPRÁVA

Hlídací pes

Chcete dostávat emailem podobné nabídky pronájmu bytů 2+kk v Praze 5?

Podobné nemovitosti