Prodej rodinného domu, Tmaň, Prof. Krbce, 294 m2

Prof. Krbce, Tmaň, okres beroun

19 900 000 Kč /za nemovitost HYPOTÉKA od 88 941 Kč /za měsíc

(Cena je uvedena včetně provize a kompletního právního servisu včetně advokátní úschovy kupní ceny, Disclaimer: Uvedené výměry jsou orientační. V případě více zájemců bude nemovitost prodána nejlepší nabídce a majitel si vyhrazuje právo vybrat kupujícího n)

Doporučené firmy v Tmani

Informace k domu

Nabízíme k prodeji výjimečný moderní rodinný dům kolaudovaný v roce 2023, situovaný v obci Tmaň, velice blízko města Králův Dvůr, v klidném prostředí s dostatkem soukromí a dobrou dostupností do Berouna i Prahy. Dům o celkové vnitřní užitné ploše 294 m² je umístěn na pozemcích o celkové výměře 1 634 m², které poskytují nadstandardní prostor pro rodinné bydlení, relaxaci i další rozvoj. Z domu a pozemku se otevírají jedinečné, ničím nerušené panoramatické výhledy na ikonické dominanty Českého krasu – masiv Kotýzu, vrch Zlatý kůň a skalní útvar Aksamitova brána, které dodávají místu výjimečnou atmosféru a prestiž.
Nemovitost představuje kombinaci kvalitní architektury, moderních technologií a vysokého uživatelského komfortu. V domě je instalováno teplovodní podlahové vytápění s tepelným čerpadlem Vaillant se systémem země/voda. Ohřev vody je řešen kombinací bojleru a tepelného čerpadla. Dům je vybaven inteligentním systémem chytré domácnosti ABB včetně střešní meteostanice. Komfort v letních měsících může zajišťovat klimatizační systém instalovaný v přízemí i patře domu s centrální jednotkou na střeše objektu; po dokončení interiérových jednotek umožní plnohodnotnou regulaci teploty v jednotlivých obytných místnostech dle preferencí nového majitele. Samozřejmostí je zavedená datová přípojka pro vysokorychlostní internet a TV.
Po kolaudaci byly provedeny terénní úpravy pozemku. Dešťové vody jsou svedeny do retenční nádrže, v dolní části pozemku je vybudován závlahový systém travního porostu a k dispozici je vlastní vrt studny se silným, vydatným pramenem. Parkování je aktuálně řešeno na zpevněné štěrkové ploše před zastřešenou terasou domu s kapacitou pro dvě vozidla.
Součástí pozemku jsou rozestavěné venkovní stavby určené k dokončení, konkrétně bazén a technický domek, oba ve fázi hrubé stavby. K dispozici je rovněž projekt samostatné garáže jako solitérní stavby v příjezdové části pozemku, se stavbou dosud nebylo započato. Pozemek je zčásti oplocen, zbývající oplocení je v gesci sousedního pozemku.
Lokalita nabízí velmi dobrou dopravní dostupnost. Napojení na dálnici D5 (exit Králův Dvůr) je vzdáleno přibližně 5 km, s dojezdovým časem zhruba 10 minut. Do centra Berouna na Husovo náměstí je to 11 km, tedy cca 12 minut jízdy autem. Do Prahy na Zličín lze dojet za 35 minut, vzdálenost činí zhruba 32 km.
Součástí prodeje je kuchyňská linka včetně vestavěných spotřebičů, kompletní koupelny a sociální zařízení včetně příslušenství a vestavěný nábytek, zejména šatna ve vstupní hale. Případné ponechání dalšího mobiliáře je možné po individuální dohodě.
Nemovitost je vhodná pro klienty, kteří hledají reprezentativní, technologicky vyspělé bydlení s velkorysým pozemkem, vysokou mírou soukromí a možností finální personalizace exteriéru v klidné lokalitě s výjimečnými výhledy a výbornou dostupností do Berouna i Prahy.
Pokud máte zájem o prohlídku nebo více informací, neváhejte nás kontaktovat.

Parametry domu

Cena
19 900 000 Kč /za nemovitost Spočítat hypotéku
Poznámka k ceně
Cena je uvedena včetně provize a kompletního právního servisu včetně advokátní úschovy kupní ceny, Disclaimer: Uvedené výměry jsou orientační. V případě více zájemců bude nemovitost prodána nejlepší nabídce a majitel si vyhrazuje právo vybrat kupujícího n
Aktualizováno
20. 3. 2026
Adresa
Prof. Krbce, Tmaň, okres beroun
ID
973723
Stavba
Cihlová
Stav objektu
Novostavba
Vybaveno
Částečně
Typ objektu
Patrový
Druh objektu
Samostatný
Vlastnictví
Osobní
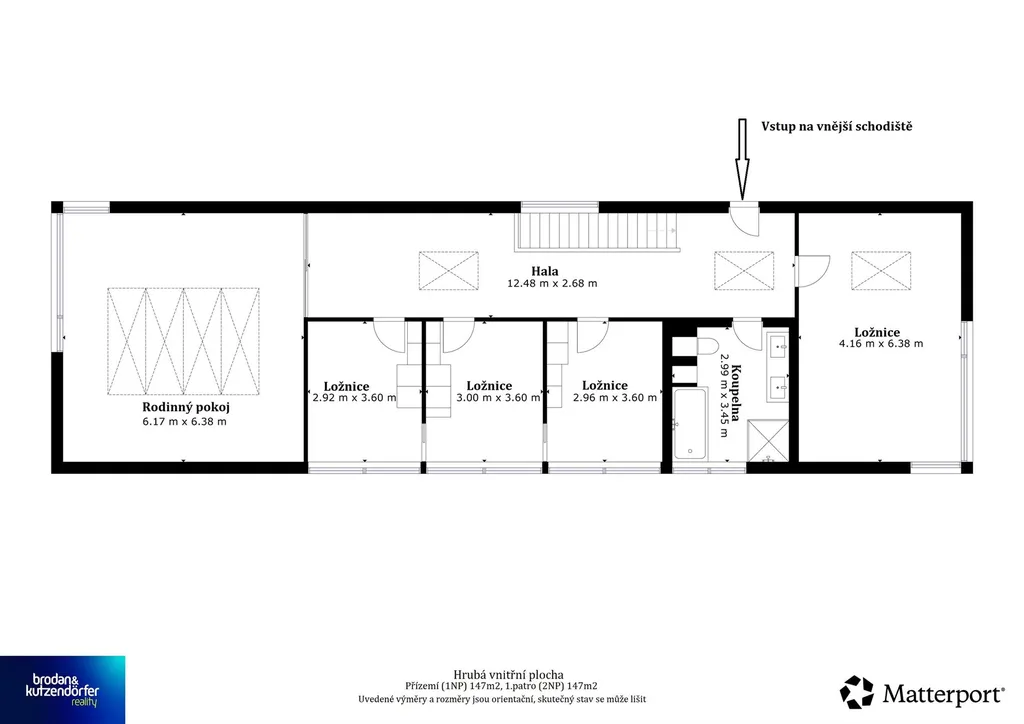
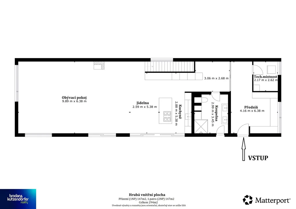
Užitná plocha
294 m2
Zastavěná plocha
168 m2
Podlahová plocha
294 m2
Plocha pozemku
1634 m2
Třída energetické náročnosti
B - Velmi úsporná
Ukazatel energetické náročnosti
552 kWh/m2 za rok
Elektřina
230V
Odpad
Veřejná kanalizace
Topení
Jiné
Telekomunikace
Internet
Doprava
Silnice, MHD, Autobus
Voda
Vodovod
Terasa
Výtah
Parkování

Kontaktovat makléře

Máte zájem o tento dům?

Tímto, v souladu s nařízením Evropského parlamentu a Rady (EU) 2016/679, v platném znění, prohlašuji, že mi je alespoň 16 let a uděluji tak svůj souhlas se zpracováním zadaných údajů (jméno, telefon, e-mail, ip adresa) společnosti B3 Technology, s.r.o., IČ: 07330600, se sídlem Novostavby 126/23, 435 11 Lom (správce dat), za účelem předání dotazu z tohoto formuláře Vámi vybranému inzerentovi a zpětného kontaktování mé osoby. Osobní údaje bude správce zpracovávat manuálně i automaticky přímo prostřednictvím svých zaměstnanců. Informace předané tímto formulářem budou uloženy v databázi správce maximálně po dobu 10 let. Odvolání souhlasu s uložením a zpracováním poskytnutých dat lze e-mailem na info@bydlisnami.cz. V případě podezření na neoprávněné použití Vámi poskytnutých údajů máte právo předat podnět k šetření Úřadu pro ochranu osobních údajů. Více informací
Chystáte se prodat nemovitost?
Pomůžeme Vám!

Inzerát si prohlédlo 5 lidí

Prodejce

Patrik Brodan

Patrik Brodan

Hlídací pes

Chcete dostávat emailem podobné nabídky prodeje rodinných domů v Tmani?

Podobné nemovitosti