Prodej rodinného domu, Hluboká nad Vltavou, 120 m2 (ID: 2538591)

Hluboká nad Vltavou, Purkarec

8 990 000 Kč /za nemovitost HYPOTÉKA od 40 180 Kč /za měsíc

(Cena je uvedená včetně advokátních a RK služeb)

Doporučené firmy v Hluboké nad Vltavou

Výkup a prodej starého nábytku

Informace k domu

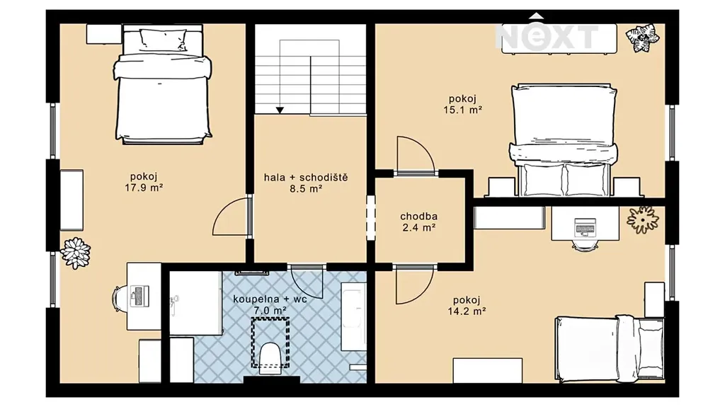
Rodinný dům 4KK se zahradou 258 m2 v obci Purkarec s výhledem na Vltavu – nadstandardní bydlení na dosah přírody. Nabízíme vám jedinečný rodinný dům v obci Purkarec, pouhých 10 minut od Hluboké nad Vltavou. Dům zaujme svou polohou s výhledem na Vltavu, přístaviště a okolní přírodu. Je ideální pro ty, kteří hledají klidné bydlení s výbornou dostupností a moderním vybavením. Dům má dispozici 4KK s užitnou plochou 120 m². Interiér si můžete doladit podle vlastních představ, nebo se inspirovat připravenou vizualizací. V domě najdete prostorný obývací pokoj s kuchyňským koutem a výstupem na terasu s výhledem na Vltavu. Dále dům nabízí tři samostatné ložnice, technickou místnost a dvě koupelny, kde si můžete zvolit mezi vanou a sprchovým koutem. Moderní technologie a nadstandardní vybavení zahrnují vytápění tepelným čerpadlem s podlahovým rozvodem, elektrické ovládání střešních oken a přípravu na předokenní žaluzie. Všude jsou instalována trojskla, obývací pokoj má velké portálové okno, které zajišťuje dostatek denního světla. Dům je vybaven klimatizací, bezpečnostními prvky a retenční nádrží na dešťovou vodu. Architektonický koncept ve tvaru písmene L zajišťuje maximální soukromí a minimalizuje kontakt mezi jednotlivými jednotkami. Každý dům má své dvě parkovací stání a bránu pro příjezd do zahrady. Akusticky oddělené stěny přispívají ke klidnému bydlení. Dům je napojen na veřejný vodovod a kanalizaci, přičemž dešťová voda je sbírána do retenční nádrže. Tento dům kombinuje moderní technologie, komfortní bydlení a jedinečné přírodní okolí. Přijďte se přesvědčit sami – rádi vám poskytneme více informací a domluvíme prohlídku! Pro komunikaci uvádějte evidenční číslo zakázky N112197.

Parametry domu

Cena
8 990 000 Kč /za nemovitost Spočítat hypotéku
Poznámka k ceně
Cena je uvedená včetně advokátních a RK služeb
Aktualizováno
4. 2. 2026
Adresa
Hluboká nad Vltavou, Purkarec
ID
N112197
Stavba
Cihlová
Stav objektu
Velmi dobrý
Vybaveno
Ne
Druh objektu
Řadový
Lokalita objektu
Klidná část obce
Užitná plocha
120 m2
Plocha pozemku
258 m2
Třída energetické náročnosti
G - Mimořádně nehospodárná
Bezbarierový přístup
Parkování

Kontaktovat makléře

Máte zájem o tento dům?

Tímto, v souladu s nařízením Evropského parlamentu a Rady (EU) 2016/679, v platném znění, prohlašuji, že mi je alespoň 16 let a uděluji tak svůj souhlas se zpracováním zadaných údajů (jméno, telefon, e-mail, ip adresa) společnosti B3 Technology, s.r.o., IČ: 07330600, se sídlem Novostavby 126/23, 435 11 Lom (správce dat), za účelem předání dotazu z tohoto formuláře Vámi vybranému inzerentovi a zpětného kontaktování mé osoby. Osobní údaje bude správce zpracovávat manuálně i automaticky přímo prostřednictvím svých zaměstnanců. Informace předané tímto formulářem budou uloženy v databázi správce maximálně po dobu 10 let. Odvolání souhlasu s uložením a zpracováním poskytnutých dat lze e-mailem na info@bydlisnami.cz. V případě podezření na neoprávněné použití Vámi poskytnutých údajů máte právo předat podnět k šetření Úřadu pro ochranu osobních údajů. Více informací
Chystáte se prodat nemovitost?
Pomůžeme Vám!

Inzerát si prohlédlo 0 lidí

Prodejce

Michaela Waloszková

Michaela Waloszková

Hlídací pes

Chcete dostávat emailem podobné nabídky prodeje rodinných domů v Hluboké nad Vltavou?

Podobné nemovitosti